• Property Type
  • Single Family Residence, Residential
  • 3
  • Bedrooms
  • 2
  • Bathrooms
  • 2
  • Garages
  • 1503 Sqft
  • Area Size
3245 W Longbranch Drive, Monrovia, IN 46157
  • $296,185
  • $296,185

Description

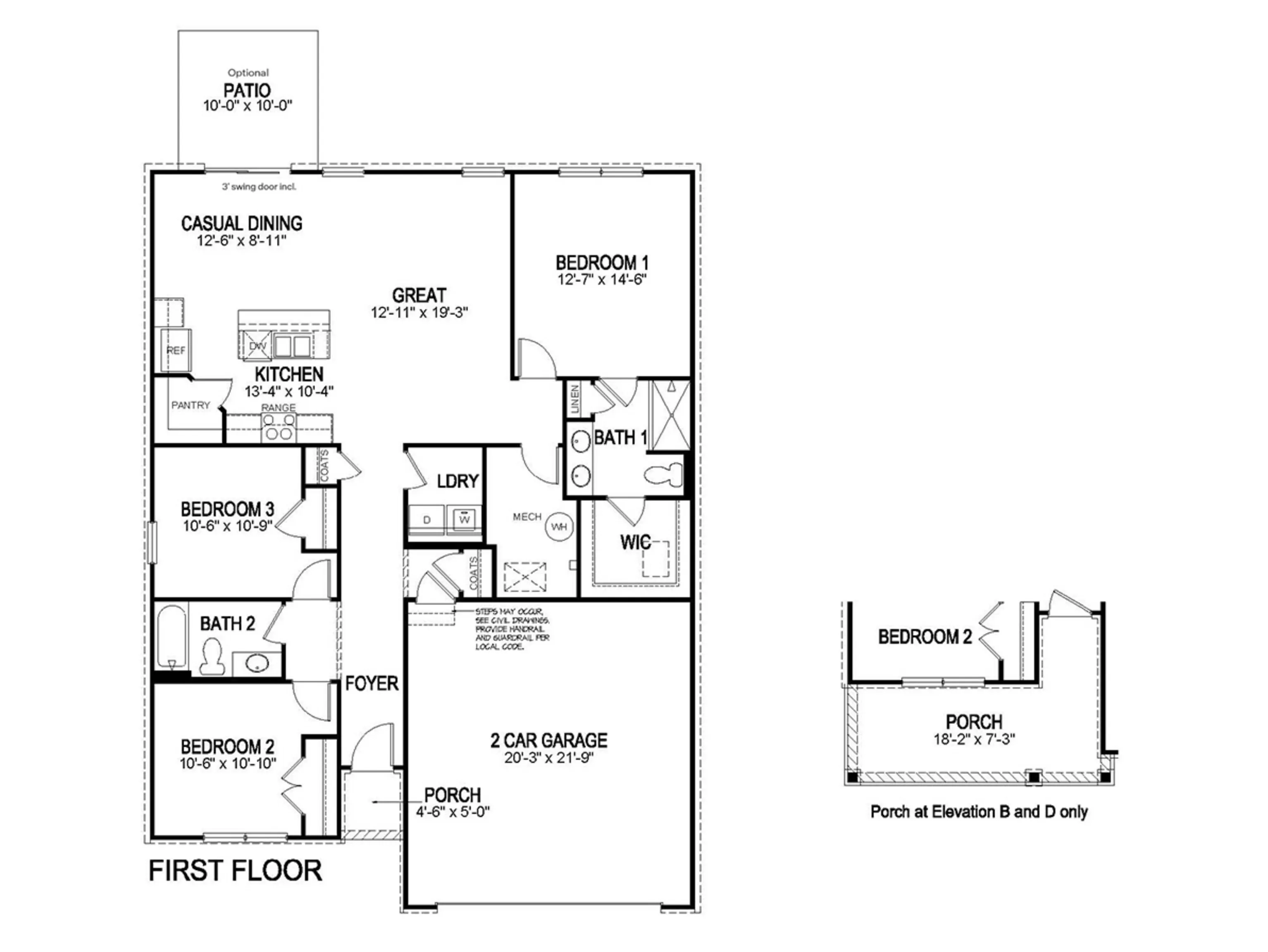
New Quick Move-In by D.R. Horton! Welcome to the Harmony in Homestead. This home design provides 3 bedrooms and 2 full baths in a single-level, open living space. Two large bedrooms are situated in the front of the home and another bedroom, which features a large walk-in closet and luxury bath, is situated in the back of the home for privacy. Enjoy entertaining in the spacious kitchen with a large built-in island and beautiful cabinets. The entry from the garage has a conveniently located closet for coats and jackets. Homestead offers a serene country-like setting with all daily conveniences and major roads nearby. This community is set apart from all others with its family-friendly pool, park, playground, clubhouse and trails. Home includes America’s Smart Home Technology featuring a smart video doorbell, smart Honeywell thermostat, Amazon Echo Pop, smart door lock, Deako plug ‘n play light switches and more.

  • Address: 3245 W Longbranch Drive
  • City: Monrovia
  • State/county: IN
  • Zip/Postal Code: 46157
  • Area: Homestead

Details

Updated on November 26, 2024 at 9:31 pm
  • Property ID 22007097
  • Price $296,185
  • Property Size 1503 Sqft
  • Land Area 0.14 Acres
  • Bedrooms 3
  • Rooms 6
  • Bathrooms 2
  • Garages 2
  • Garage Size x x
  • Year Built 2024
  • Property Type Single Family Residence, Residential
  • Property Status Closed

Additional details

  • Association Fee 475
  • Cooling Central Electric
  • Heating Gas
  • County Morgan
  • Property Type Residential
  • Parking Attached
  • Elementary School Monrovia Elementary School
  • Middle School Monrovia Middle School
  • High School Monrovia High School
  • Architectural Style Ranch

Mortgage Calculator

Contact Information

View Listings
Preeti Chaggar

Enquire About This Property

0 Review

Sort by:
Leave a Review

Leave a Review

Compare listings

Compare