• Property Type
  • Duplex, Residential Income
  • Sqft
  • Area Size
4814 Norwaldo Avenue, Indianapolis, IN 46205
  • $499,000
  • $525,000

Description

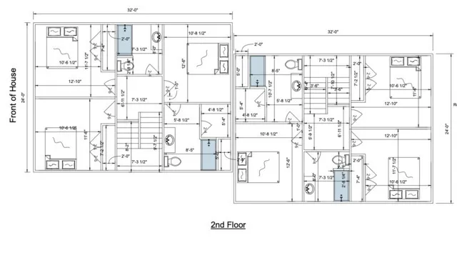
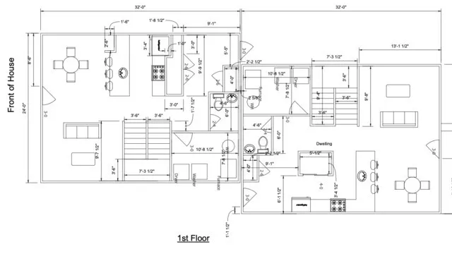
Awesome “house hack” or rental portfolio property in SoBro – this proposed new construction duplex from Evolved Builders features 3 bedrooms, 2.5 baths and a spacious 1,536sf per unit. Buyer can make selections such as paint, flooring, cabinets, and other finishes to customize for their exact tastes. Excellent floorplan without the “shotgun” feel of most duplexes. Rapidly appreciating neighborhood that attracts great tenants. Estimated rents of $2,100 per unit. Your choice to rent both units or live in one and have most of your mortgage paid by the other.

  • Address: 4814 Norwaldo Avenue
  • City: Indianapolis
  • State/county: IN
  • Zip/Postal Code: 46205
  • Area: Bellaire

Details

Updated on October 2, 2024 at 10:01 pm
  • Property ID 21961105
  • Price $499,000
  • Land Area 0.13 Acres
  • Garage Size x x
  • Year Built 2024
  • Property Type Duplex, Residential Income
  • Property Status Closed

Additional details

  • County Marion
  • Property Type Residential Income

Mortgage Calculator

Contact Information

View Listings
Preeti Chaggar

Enquire About This Property

0 Review

Sort by:
Leave a Review

Leave a Review

Compare listings

Compare