• Property Type
  • Duplex, Residential Income
  • Sqft
  • Area Size
2939 N Park Avenue, Indianapolis, IN 46205
  • $450,000
  • $450,000

Description

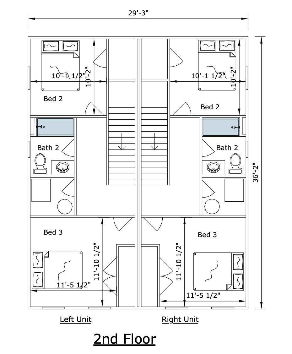
Perfect “house hack” or rental portfolio property in Mapleton Fall Creek – this proposed new construction duplex from Evolved Builders features 3 bedrooms, 2 baths and 1,235sf per side. Buyer can make selections such as paint, flooring, cabinets, and other finishes to customize for their exact tastes. Booming neighborhood with many other new construction houses. Your choice to rent both units or live in one and have most of your mortgage paid by the other. Builder warranty included for peace of mind.

  • Address: 2939 N Park Avenue
  • City: Indianapolis
  • State/county: IN
  • Zip/Postal Code: 46205

Details

Updated on February 12, 2025 at 10:01 pm
  • Property ID 21961208
  • Price $450,000
  • Land Area 0.13 Acres
  • Garage Size x x
  • Year Built 2024
  • Property Type Duplex, Residential Income
  • Property Status Closed

Additional details

  • County Marion
  • Property Type Residential Income

Mortgage Calculator

Contact Information

View Listings
Preeti Chaggar

Enquire About This Property

0 Review

Sort by:
Leave a Review

Leave a Review

Compare listings

Compare