• Property Type
  • Single Family Residence, Residential
  • 5
  • Bedrooms
  • 4
  • Bathrooms
  • 3
  • Garages
  • 3062 Sqft
  • Area Size
100 Hobbs Drive, Whiteland, IN 46184
  • $439,000
  • $445,000

Description

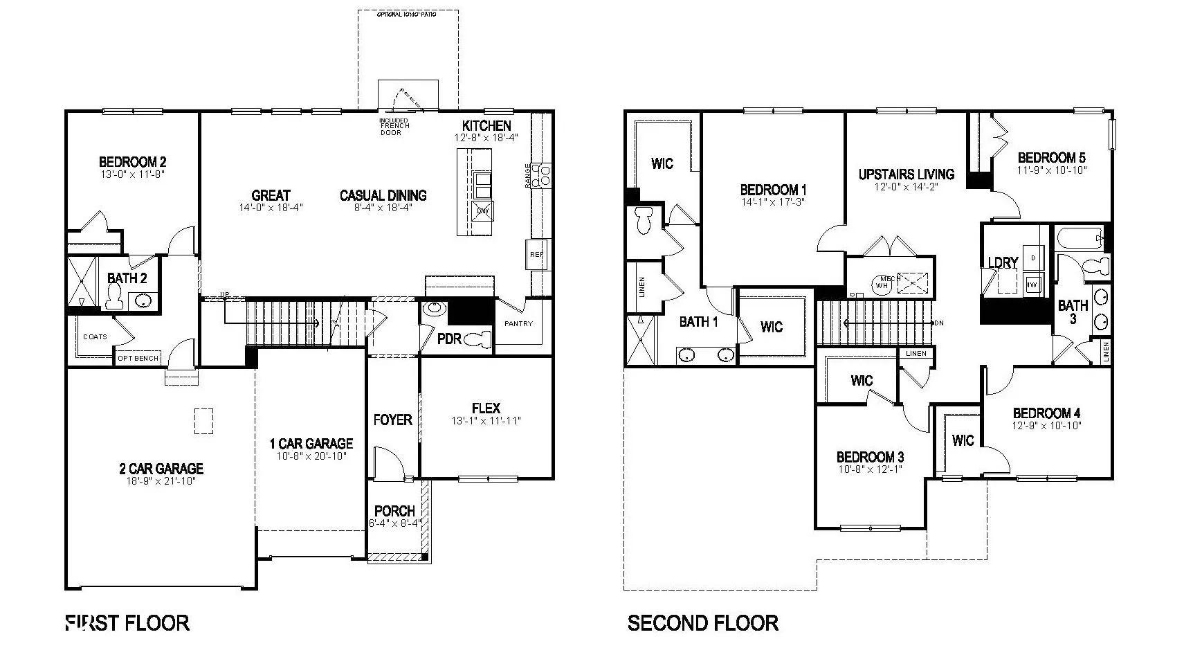
New Quick Move-In by D.R. Horton. Welcome to the Johnstown; a brand-new plan in Saddlebrook Farms. This home offers everything you need and more with five bedrooms, three and a half bathrooms, a three-car garage, and laminate flooring. On the first floor, you’ll find a spacious bedroom, a large great room, dining area, and den / flex room. The kitchen is the shining star of the home, with lots of cabinet space, a large central island, quartz countertops, stainless steel appliances, ample prep space, and a large corner pantry. Upstairs, discover the spacious primary bedroom, along with an ensuite bathroom and two walk-in closets. Three additional bedrooms, a loft space, and a laundry room complete the upstairs. Take some time out to enjoy the community walking trails and playground, or venture out to nearby shops, local eateries and parks in this ideal southside location. Saddlebrook Farms offers the peacefulness of a small town and the convenience of living near major road thoroughfares for easy commutes. The charming town of Whiteland has much to offer such as the Johnson County Public Library, Whiteland Raceway Park and more! Home includes America’s Smart Home Technology featuring a smart video doorbell, smart Honeywell thermostat, Amazon Echo Pop, smart door lock, Deako plug ‘n play light switches and more.

  • Address: 100 Hobbs Drive
  • City: Whiteland
  • State/county: IN
  • Zip/Postal Code: 46184
  • Area: Saddlebrook Farms

Details

Updated on September 13, 2024 at 2:16 pm
  • Property ID 21983930
  • Price $439,000
  • Property Size 3062 Sqft
  • Land Area 0.2 Acres
  • Bedrooms 5
  • Rooms 10
  • Bathrooms 4
  • Garages 3
  • Garage Size x x
  • Year Built 2024
  • Property Type Single Family Residence, Residential
  • Property Status Closed

Additional details

  • Association Fee 360
  • Cooling Central Electric
  • Heating Gas
  • County Johnson
  • Property Type Residential
  • Parking Attached
  • Elementary School Whiteland Elementary School
  • Middle School Clark Pleasant Middle School
  • High School Whiteland Community High School
  • Architectural Style TraditonalAmerican

Mortgage Calculator

Contact Information

View Listings
Preeti Chaggar

Enquire About This Property

0 Review

Sort by:
Leave a Review

Leave a Review

Compare listings

Compare