5814 Aleppo Lane, Greenwood, IN 46143
  • $358,000
  • $360,000

Description

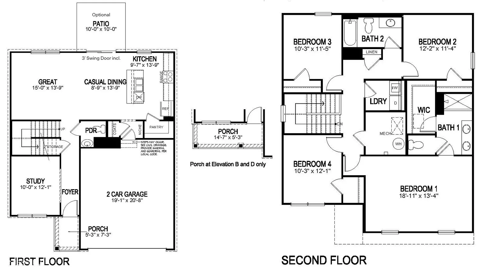
D.R. Horton, America’s Builder, presents the Bellamy, move-in ready home in Greenwood. This open concept, two-story home features 4 large bedrooms and 2.5 baths. The main level has 9-foot ceilings with a living area offers solid surface flooring throughout for easy maintenance. The home features a turnback staircase situated away from the foyer for convenience and privacy, as well as a wonderful study that can be used as the perfect office space! The kitchen offers beautiful cabinetry, quartz countertops, a large pantry and a built-in island with ample seating space, perfect for entertaining. The oversized, upstairs bedroom is the star of the home and features a deluxe bath with ample storage in the walk-in closet. The remaining 3 bedrooms and laundry room round out the rest of the upper level. The home includes America’s Smart Home Technology featuring a smart video doorbell, smart Honeywell thermostat, Amazon Echo Pop, smart door lock, Deako light switches and more. Enjoy a comfortable and convenient lifestyle in Lone Pine Farms as you meander along the community walking trails or gather at the recreational area with pavilion.

  • Address: 5814 Aleppo Lane
  • City: Greenwood
  • State/county: IN
  • Zip/Postal Code: 46143
  • Area: Lone Pine Farms

Details

Updated on December 18, 2024 at 4:04 pm
  • Property ID 21986586
  • Price $358,000
  • Property Size 2053 Sqft
  • Land Area 0.16 Acres
  • Bedrooms 4
  • Rooms 8
  • Bathrooms 3
  • Garages 2
  • Garage Size x x
  • Year Built 2024
  • Property Type Single Family Residence, Residential
  • Property Status Closed

Additional details

  • Association Fee 575
  • Cooling Central Electric
  • Heating Gas
  • County Johnson
  • Property Type Residential
  • Parking Attached
  • Elementary School Maple Grove Elementary School
  • Middle School Center Grove Middle School Central
  • High School Center Grove High School
  • Architectural Style TraditonalAmerican

Mortgage Calculator

Video

360° Virtual Tour

Contact Information

View Listings
Preeti Chaggar

Enquire About This Property

0 Review

Sort by:
Leave a Review

Leave a Review

Compare listings

Compare