9967 Pine Grove Court, Indianapolis, IN 46234
  • $325,000
  • $325,000

Description

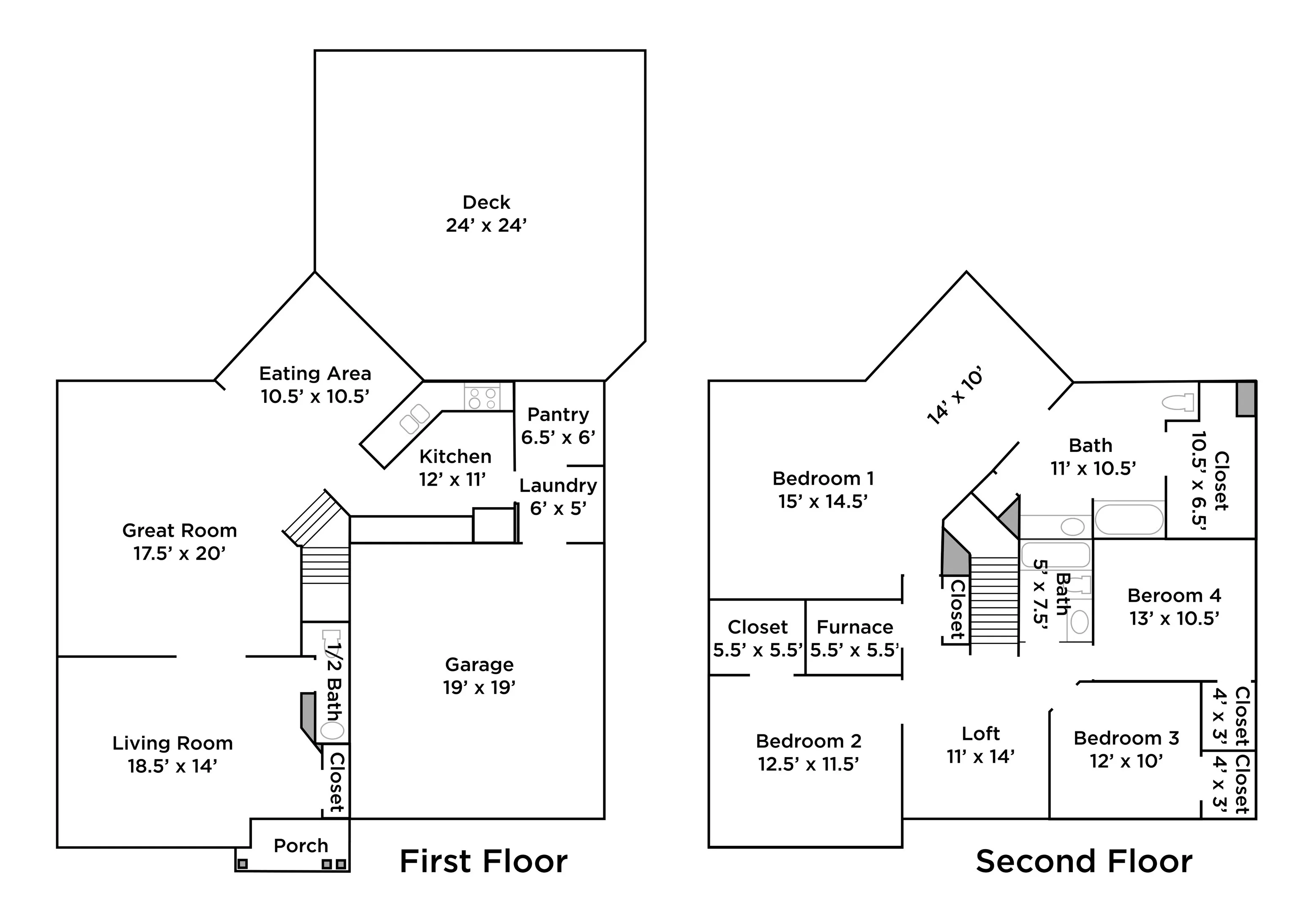
Don’t miss out on this beautiful home in the highly sought after Brownsburg school district. The property offers a perfect blend of comfort, convenience, and nature, making it the ultimate retreat. With four bedrooms and 3 bathrooms, which all include a walk in closet, there’s plenty of space for all your needs. The extremely large primary bedroom boasts a private ensuite bathroom, offering a relaxing retreat. Enjoy outdoor living at its finest on the very large 24×24 deck, complete with a gas valve for your grill or gas fire pit, perfect for entertaining year round. The backyard includes a wooden play set and a stone fire pit for cozy evenings under the stars. The property backs onto a nature reserve with walking trails that connect straight to your backyard, leading down to a serene creek. The open floor plan creates a seamless flow between the living, dining and kitchen areas, ideal for hosting. Spacious two car garage with additional storage space. This home offers easy access to top rated schools, shopping, dining, and recreational activities. All while the neighborhood offers 2 swimming pools, kiddie pools, multiple playgrounds, dog park, outdoor fitness center, picnic shelters, outdoor chapel, baseball and soccer fields. This home has everything you need!

  • Address: 9967 Pine Grove Court
  • City: Indianapolis
  • State/county: IN
  • Zip/Postal Code: 46234

Details

Updated on October 14, 2024 at 5:05 pm
  • Property ID 21989834
  • Price $325,000
  • Property Size 2348 Sqft
  • Land Area 0.23 Acres
  • Bedrooms 4
  • Rooms 9
  • Bathrooms 3
  • Garages 2
  • Garage Size x x
  • Year Built 2003
  • Property Type Single Family Residence, Residential
  • Property Status Closed

Additional details

  • Association Fee 450
  • Utilities Cable Available,Electricity Connected,Sewer Connected,Water Connected
  • Cooling Central Electric
  • Heating Gas
  • County Hendricks
  • Property Type Residential
  • Parking Attached
  • Community Features Clubhouse,Fitness Center,Playground,Pool
  • Architectural Style TraditonalAmerican

Mortgage Calculator

Contact Information

View Listings
Preeti Chaggar

Enquire About This Property

0 Review

Sort by:
Leave a Review

Leave a Review

Compare listings

Compare