212 S 12th Avenue, Beech Grove, IN 46107
  • $275,000
  • $275,000

Description

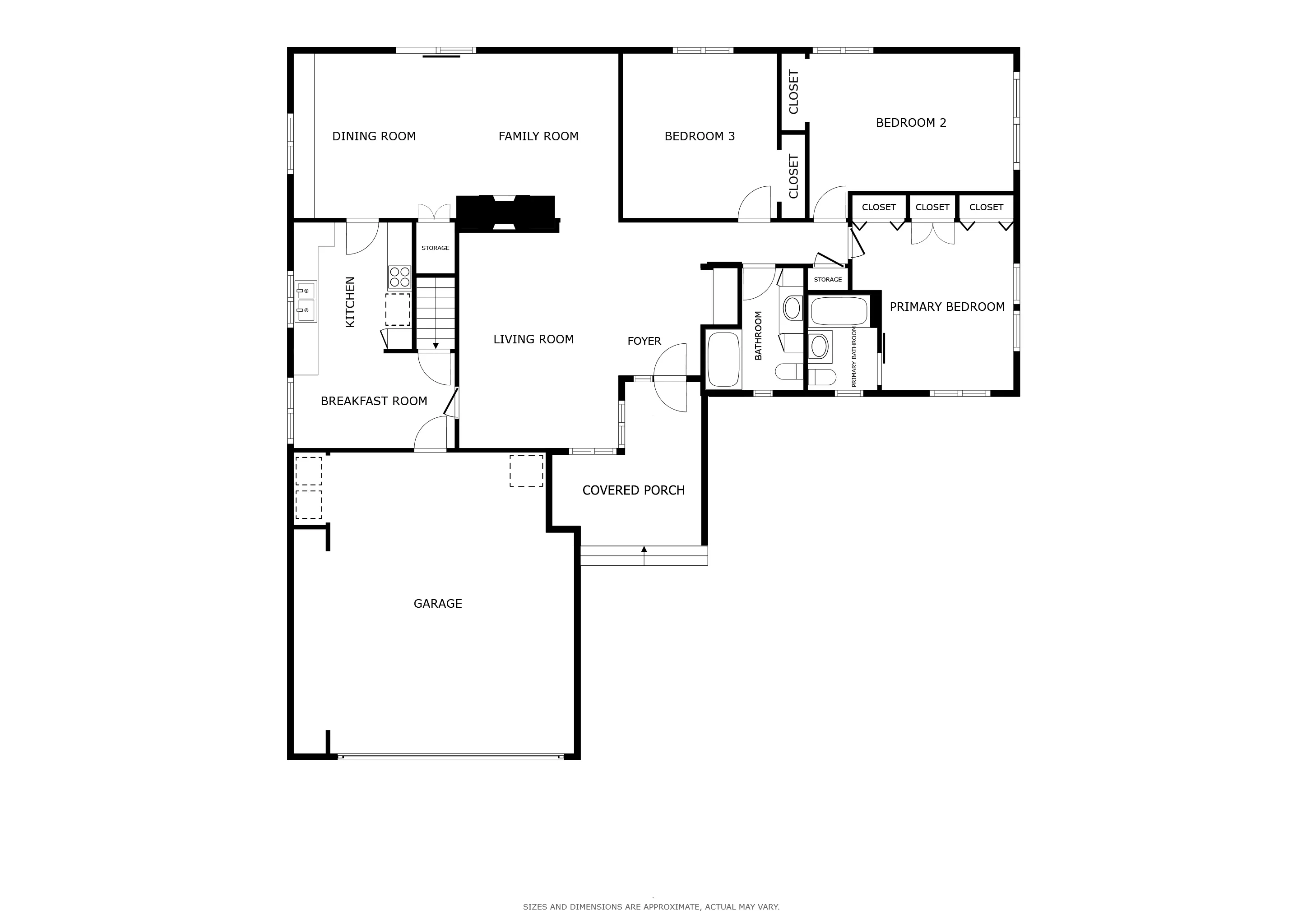
Classic design features and modern upgrades make this beautiful 3 bedroom, brick ranch with a basement the perfect Beech Grove home! Explore this home via interactive 3D home tour, complete with floor plans, video & more. A charming, covered porch welcomes you into the home. Step inside to the living room with a gorgeous 2-sided fireplace, shared with the open concept family room/dining room. The kitchen features a tile backsplash, stainless steel appliances, and abundant cabinetry offering plenty of storage space. Primary bedroom with dual closets, original hardwood flooring, and updated full bathroom with stylish sliding door. Finished basement includes a multi-functional rec room with a wood-burning, brick fireplace. Walk out your back door, through the privacy-fenced backyard, and straight onto Sarah T Bolton Park! Peace of mind is offered by the many recent updates including new roof (2019), kitchen appliances (2022), HVAC system (2021), plumbing (2023), water softener (2023), and tankless water heater (2023)!

  • Address: 212 S 12th Avenue
  • City: Beech Grove
  • State/county: IN
  • Zip/Postal Code: 46107

Details

Updated on November 20, 2024 at 10:04 pm
  • Property ID 21994476
  • Price $275,000
  • Property Size 2834 Sqft
  • Land Area 0.31 Acres
  • Bedrooms 3
  • Rooms 11
  • Bathrooms 3
  • Garages 2
  • Garage Size x x
  • Year Built 1959
  • Property Type Single Family Residence, Residential
  • Property Status Closed

Additional details

  • Utilities Gas
  • Cooling Central Electric
  • Heating Forced Air,Gas
  • County Marion
  • Property Type Residential
  • Parking Attached,Concrete,Garage Door Opener
  • High School Beech Grove Sr High School
  • Architectural Style TraditonalAmerican

Mortgage Calculator

Video

360° Virtual Tour

Contact Information

View Listings
Preeti Chaggar

Enquire About This Property

0 Review

Sort by:
Leave a Review

Leave a Review

Compare listings

Compare