7888 Magnolia Street, New Palestine, IN 46163
  • $359,900
  • $369,900

Description

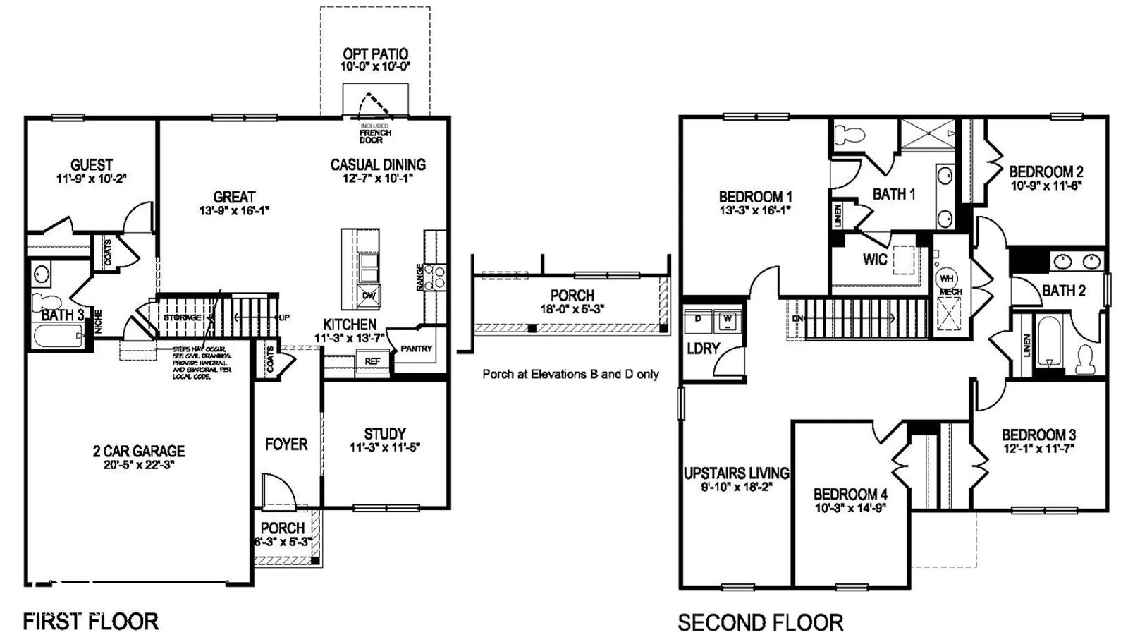
D.R. Horton, America’s Builder, presents the Henley in Fields at Sugar Creek. Nestled in a quiet community just minutes from the heart of the city, this home blends convenience with comfort. This two-story home provides 5 large bedrooms and three full baths. The main level offers 9′ ceilings and solid surface flooring throughout for easy maintenance. The staircase enters from the family room for convenience and privacy. The kitchen offers beautiful gray cabinetry, quartz countertops and a large pantry and a built-in island with ample seating space. Also on the main level, you’ll find a spacious study, perfect for an office space. Upstairs, you’ll find 4 additional bedrooms, including one that features a walk-in closet, as well as a loft/2nd living space that can be used as a great entertainment area. All D.R. Horton Indianapolis homes include our America’s Smart Home Technology featuring a smart video doorbell, smart Honeywell thermostat, Amazon Echo Pop, smart door lock, Deako light switches and more. Fields at Sugar Creek is conveniently located just off of South Carroll Road and Highway 52. This area in Sugar Creek Township features Southern Hancock County Schools. Planned biking and walking paths throughout the town and the community’s proximity to the Hancock County Wellness Center, fantastic parks, the Whispering Pines Golf Course and a short commute to downtown Indianapolis are sure to make this the perfect place to call home.

  • Address: 7888 Magnolia Street
  • City: New Palestine
  • State/county: IN
  • Zip/Postal Code: 46163

Details

Updated on April 23, 2026 at 12:48 pm
  • Property ID 22003305
  • Price $359,900
  • Property Size 2600 Sqft
  • Land Area 0.32 Acres
  • Bedrooms 5
  • Rooms 10
  • Bathrooms 3
  • Garages 2
  • Garage Size x x
  • Year Built 2024
  • Property Type Single Family Residence, Residential
  • Property Status Active

Additional details

  • Association Fee 465
  • Cooling Central Air
  • Heating Natural Gas
  • County Hancock
  • Property Type Residential
  • Parking Attached,Garage Faces Side
  • Elementary School New Palestine Elementary School
  • Middle School New Palestine Jr High School
  • High School New Palestine High School
  • Architectural Style Traditional

Mortgage Calculator

Video

360° Virtual Tour

Contact Information

View Listings
Preeti Chaggar

Enquire About This Property

0 Review

Sort by:
Leave a Review

Leave a Review

Compare listings

Compare