• Property Type
  • Commercial Land, Land
  • Sqft
  • Area Size
2130 E Michigan Street, Indianapolis, IN 46201
  • $299,000
  • $349,000

Description

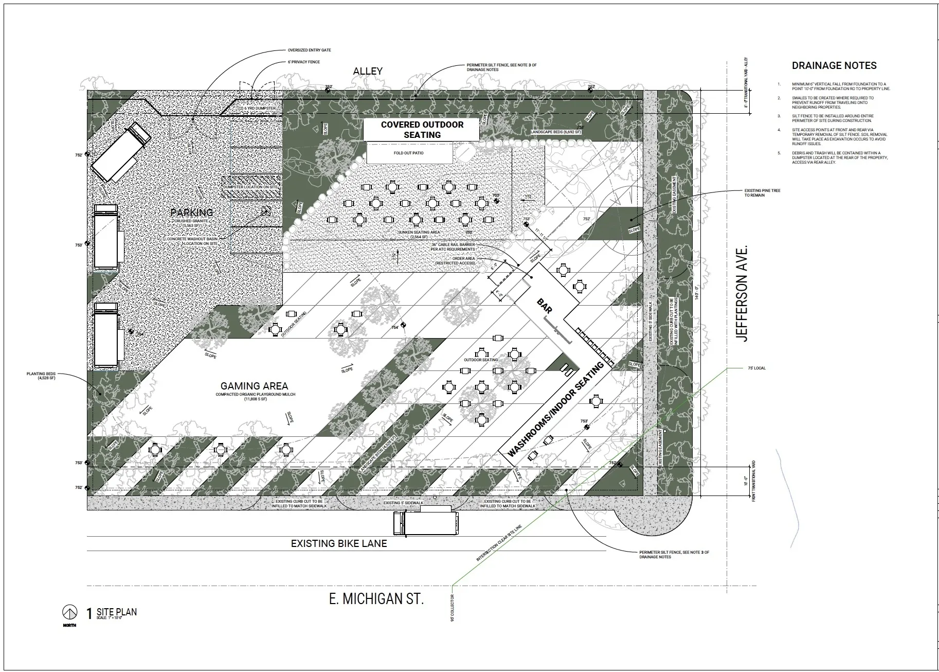
Prime commercial lot located on the Near-Eastside of downtown Indianapolis. At just over 1/2 acre, this expansive lot is zoned C3 which allows for a variety of uses, including neighborhood shopping centers, retail stores, and personal and professional services. A prominent corner lot, perfectly situated on a well-trafficked thoroughfare in the heart of St. Clair Place neighborhood. Located minutes to Mass Ave and downtown Indy. Benefit from high exposure to both pedestrian and vehicular traffic, ensuring maximum visibility for your retail venture. Versatile zoning, the C3 zoning classification allows for a wide range of retail uses, including but not limited to restaurants, service businesses, and specialty shops. With over 1/2 acre at your disposal, you have plenty of room to design your dream retail space, complete with parking and outdoor areas. Easily accessible from major roads and highways, the property offers excellent connectivity for customers and suppliers alike. Located near established neighborhoods, schools, and other commercial establishments, this property attracts a diverse clientele and ensures a steady flow of customers. This is a rare opportunity to invest in a prime piece of commercial real estate in a growing area. With the potential for significant return on investment, this property is perfect for both seasoned investors and new entrepreneurs looking to establish their brand. The current owner has secured approved plans for a large beer garden and entertainment venue, providing an exciting opportunity to create a vibrant social hub. Imagine hosting live music events, craft beer tastings, and community gatherings in a beautifully designed outdoor area that will attract patrons year-round (renderings and design plans available upon request.) Additional proposed uses could include a mid-rise apartment/condo/retail development, townhouse development, or subdivide to single family buildable lots.

  • Address: 2130 E Michigan Street
  • City: Indianapolis
  • State/county: IN
  • Zip/Postal Code: 46201

Details

Updated on January 13, 2025 at 6:06 am
  • Property ID 22007748
  • Price $299,000
  • Land Area 0.62 Acres
  • Garage Size x x
  • Property Type Commercial Land, Land
  • Property Status Expired

Additional details

  • Listing Terms Not Applic
  • Sewer Municipal Sewer Near
  • County Marion
  • Property Type Land

Mortgage Calculator

Contact Information

View Listings
Preeti Chaggar

Enquire About This Property

0 Review

Sort by:
Leave a Review

Leave a Review

Compare listings

Compare