4325 Hamilton Run, Zionsville, IN 46077
  • $1,189,000
  • $1,199,000

Description

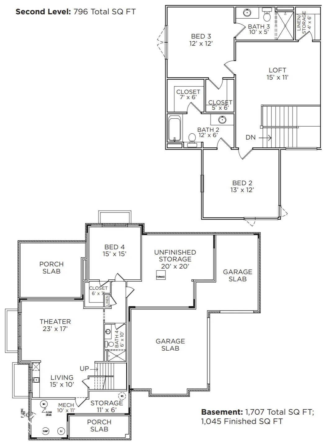
Experience resort-style living in this stunning, one-of-a-kind home built by Old Town Design Group. Nestled within the Hamilton Run section of the prestigious Holliday Farms community, this contemporary residence boasts 4 spacious bedrooms and 4.5 bathrooms spanning over 4,200 total square feet, offering comfort and luxury at every turn. The main level features a luxurious primary suite with a vaulted cathedral ceilings (complete with ceiling beams), guaranteeing a private retreat. Primary bath offers an oversized walk-in shower and an impressive primary walk-in closet with direct access to the laundry room, offering both convenience and functionality. Step inside an open concept great room / dining / kitchen. Designated study off the entry boasts floor to ceiling built-ins. Off the great room is a charming outdoor porch with duel sliding doors, complete with a cozy fireplace, perfect for relaxing or entertaining year-round. The upper level entails a large loft along with bedrooms 2 and 3, each complete with WICs and private baths. Thoughtful design follows into the basement with a spacious theater, wet bar, additional bed and bath, and an abundance of storage space. Designed for modern living, the home includes a 3-car garage and is a true masterpiece blending timeless elegance with contemporary convenience. Don’t miss the opportunity to own this beautiful home in one of the area’s most sought-after neighborhoods! Enjoy all that Holliday Farms has to offer with their sport & social membership and utilize, the premier Pete Dye championship 9-hole executive golf course, golf practice facilities, state-of-the-art two-story fitness center, indoor and outdoor swimming pools, tennis and pickleball courts, basketball gym, bowling alley, and more! Live like you are on vacation year round. Homeowners will have the option to purchase the Premier Golf Membership to access the 18-hole Pete Dye course.

  • Address: 4325 Hamilton Run
  • City: Zionsville
  • State/county: IN
  • Zip/Postal Code: 46077
  • Area: Holliday Farms

Details

Updated on June 28, 2025 at 10:52 pm
  • Property ID 22010895
  • Price $1,189,000
  • Property Size 4210 Sqft
  • Land Area 0.24 Acres
  • Bedrooms 4
  • Rooms 13
  • Bathrooms 5
  • Garages 3
  • Garage Size x x
  • Year Built 2024
  • Property Type Single Family Residence, Residential
  • Property Status Closed

Additional details

  • Association Fee 1400
  • Utilities Cable Available,Electricity Connected,Sewer Connected,Water Connected
  • Cooling Zoned
  • Heating Electric,Forced Air,Natural Gas,High Efficiency (90%+ AFUE )
  • County Boone
  • Property Type Residential
  • Parking Attached,Concrete,Garage Door Opener,Side Load Garage,Storage
  • Elementary School Zionsville Pleasant View Elem Sch
  • Middle School Zionsville Middle School
  • High School Zionsville Community High School
  • Architectural Style Contemporary

Mortgage Calculator

Video

Contact Information

View Listings
Preeti Chaggar

Enquire About This Property

0 Review

Sort by:
Leave a Review

Leave a Review

Compare listings

Compare