9225 Kavanaugh Drive, Indianapolis, IN 46239
  • $367,155
  • $369,000

Description

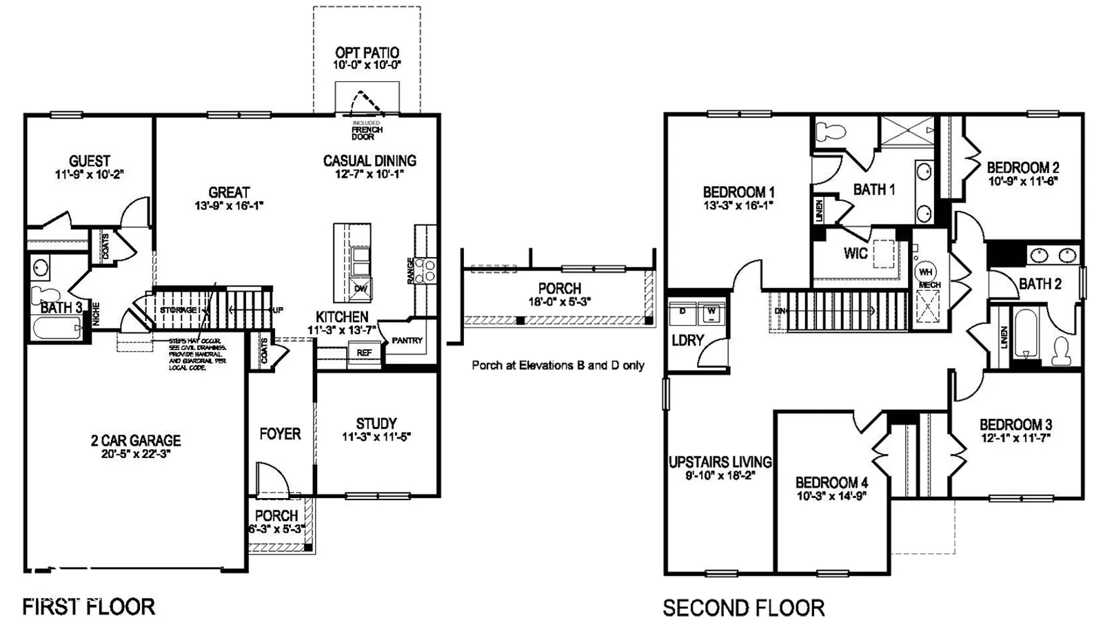
The Henley plan by D.R. Horton, America’s Builder, offers a spacious and functional two-story layout. This home features 5 generously sized bedrooms and 3 full bathrooms, providing ample space for families. The main floor showcases solid surface flooring throughout, making maintenance a breeze. The family room, with a convenient staircase entry, ensures privacy and accessibility. The kitchen is designed with beautiful cabinetry, a large pantry, and a built-in island that provides plenty of seating. Additionally, the main floor includes a versatile study, ideal for an office, and a bedroom for added convenience. Upstairs, you’ll find four more bedrooms, including one with a walk-in closet, and a second living area perfect for entertaining or relaxation. To top it all off, the Henley plan offers stunning pond views, making it the perfect retreat for peaceful living. All D.R. Horton in Indianapolis homes are equipped with America’s Smart Home Technology, allowing you to control your home from anywhere using your smartphone, tablet, or computer. This modern convenience ensures you can manage your home hands-free. Spend time connecting with neighbors and staying active at the community playground, at the covered pavilion or along the serene walking paths.

  • Address: 9225 Kavanaugh Drive
  • City: Indianapolis
  • State/county: IN
  • Zip/Postal Code: 46239
  • Area: Fields At New Bethel

Details

Updated on February 28, 2025 at 8:57 pm
  • Property ID 22011666
  • Price $367,155
  • Property Size 2600 Sqft
  • Land Area 0.24 Acres
  • Bedrooms 5
  • Rooms 10
  • Bathrooms 3
  • Garages 2
  • Garage Size x x
  • Year Built 2024
  • Property Type Single Family Residence, Residential
  • Property Status Closed

Additional details

  • Association Fee 200
  • Cooling Central Electric
  • Heating Gas
  • County Marion
  • Property Type Residential
  • Parking Attached
  • Elementary School South Creek Elementary
  • Middle School Franklin Central Junior High
  • High School Franklin Central High School
  • Architectural Style TraditonalAmerican

Mortgage Calculator

Video

360° Virtual Tour

Contact Information

View Listings
Preeti Chaggar

Enquire About This Property

0 Review

Sort by:
Leave a Review

Leave a Review

Compare listings

Compare