• Property Type
  • Single Family Residence, Residential
  • 1
  • Bathroom
  • 2
  • Garages
  • 1531 Sqft
  • Area Size
4763 E Shadowbrook Drive, Camby, IN 46113
  • $319,999
  • $324,999

Description

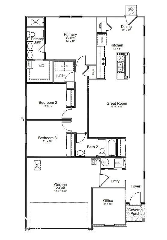
MLS#22014630 REPRESENTATIVE PHOTOS ADDED. New Construction – Built by Taylor Morrison – March Completion! Step into the Simplicity 1531 in Allison Estates, a thoughtfully designed floor plan that blends comfort and functionality. Just off the foyer, you’ll find a versatile office space and easy access to your two-car garage. Two secondary bedrooms and a full bath sit across from a spacious great room, which flows effortlessly into the kitchen, complete with an island and charming breakfast nook. Retreat to the tucked-away primary suite, featuring a generous walk-in closet and a spa-like bathroom with a dual sink vanity, walk-in shower, and stylish finishes-perfect for relaxation. Structural options added include: walk-in shower to the primary bathroom.

  • Address: 4763 E Shadowbrook Drive
  • City: Camby
  • State/county: IN
  • Zip/Postal Code: 46113

Details

Updated on April 16, 2025 at 10:21 pm
  • Property ID 22014630
  • Price $319,999
  • Property Size 1531 Sqft
  • Land Area 0.24 Acres
  • Rooms 5
  • Bathroom 1
  • Garages 2
  • Garage Size x x
  • Year Built 2025
  • Property Type Single Family Residence, Residential
  • Property Status Closed

Additional details

  • Association Fee 410
  • Heating Forced Air
  • County Morgan
  • Property Type Residential
  • Parking Attached,Concrete,Garage Door Opener,Storage
  • Elementary School Neil Armstrong Elementary School
  • Middle School Paul Hadley Middle School
  • High School Mooresville High School
  • Architectural Style TraditonalAmerican

Mortgage Calculator

Contact Information

View Listings
Preeti Chaggar

Enquire About This Property

0 Review

Sort by:
Leave a Review

Leave a Review

Compare listings

Compare