5208 Nob Lane, Indianapolis, IN 46226
  • $279,000
  • $279,000

Description

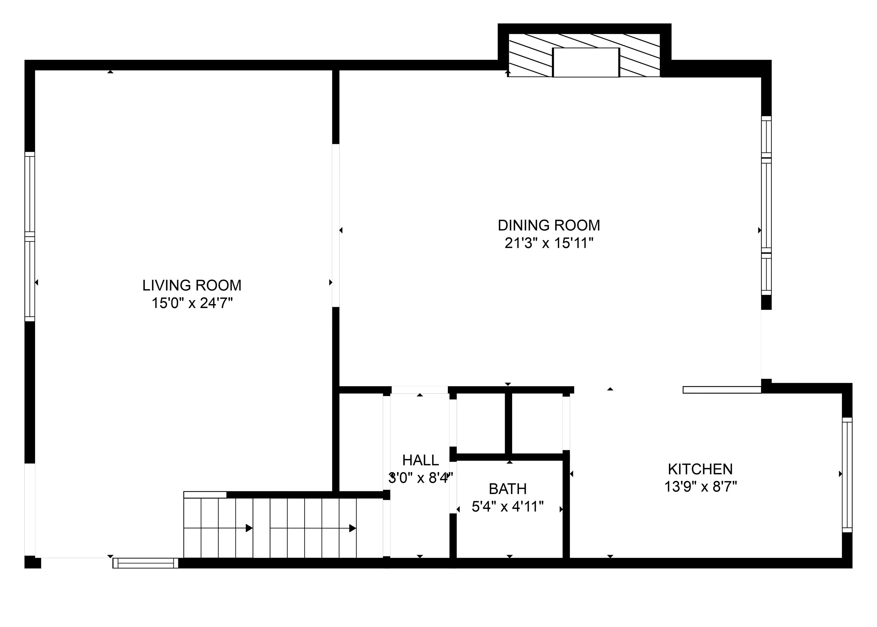
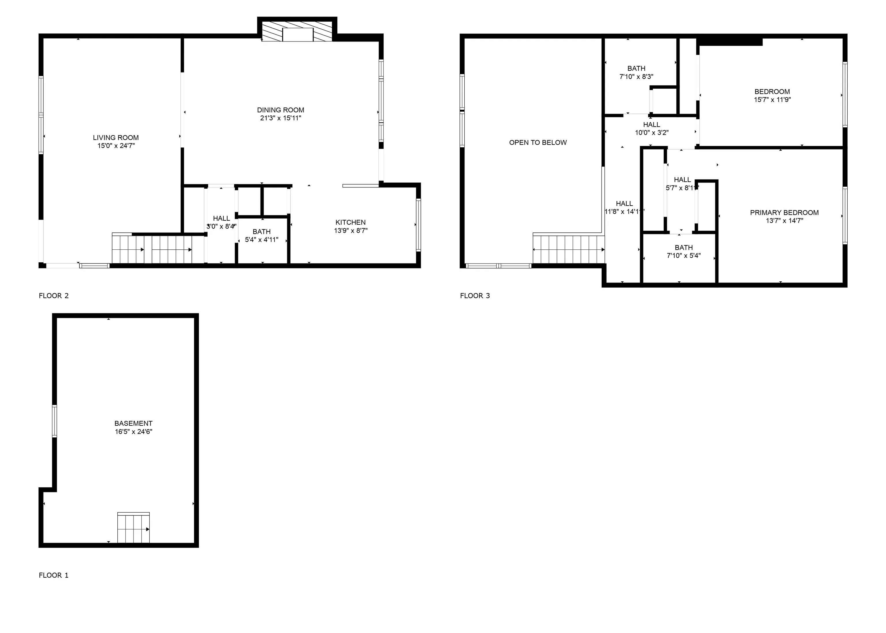
A rare opportunity to own a Mid Century Avriel Shull designed condominium in Ladywood Estates Historic District! This end unit features only one common wall and many of Avriel Shull’s design hallmarks: expansive spaces with vaulted ceilings, hardwood flooring throughout, and stunning iron stair railings, making this multilevel home a great balance of mid-century charm and modern comforts. The floor to ceiling windows let in so much light that the space is open, airy, and inviting. HVAC, water heater, and all appliances have been replaced within the past 2 years. The basement provides the extra storage you need or could be finished out for additional living space. Even more storage space in the two car garage that is exclusive to the unit and included. The good-sized private backyard patio area is perfect for relaxing or enjoying company. Additionally, this sought after community features a newly constructed Gathering Place with pergola and fire pit area. Don’t miss your chance to own a piece of Ladywood!

  • Address: 5208 Nob Lane
  • City: Indianapolis
  • State/county: IN
  • Zip/Postal Code: 46226

Details

Updated on February 12, 2025 at 11:50 pm
  • Property ID 22015098
  • Price $279,000
  • Property Size 2076 Sqft
  • Land Area 0.15 Acres
  • Bedrooms 2
  • Rooms 5
  • Bathrooms 3
  • Garages 2
  • Garage Size x x
  • Year Built 1966
  • Property Type Condominium, Residential
  • Property Status Closed

Additional details

  • Association Fee 339
  • Utilities Electricity Connected,Gas,Sewer Connected,Water Connected
  • Cooling Central Electric
  • Heating Forced Air,Gas
  • County Marion
  • Property Type Residential
  • Parking Assigned,Attached,Garage Door Opener
  • Community Features Street Lights
  • Architectural Style Mid-Century Modern

Features

Mortgage Calculator

Contact Information

View Listings
Preeti Chaggar

Enquire About This Property

0 Review

Sort by:
Leave a Review

Leave a Review

Compare listings

Compare