• Property Type
  • Single Family Residence, Residential
  • 3
  • Bedrooms
  • 2
  • Bathrooms
  • 4
  • Garages
  • 1440 Sqft
  • Area Size
8810 Beechwood Avenue, Indianapolis, IN 46219
  • $259,900
  • $261,900

Description

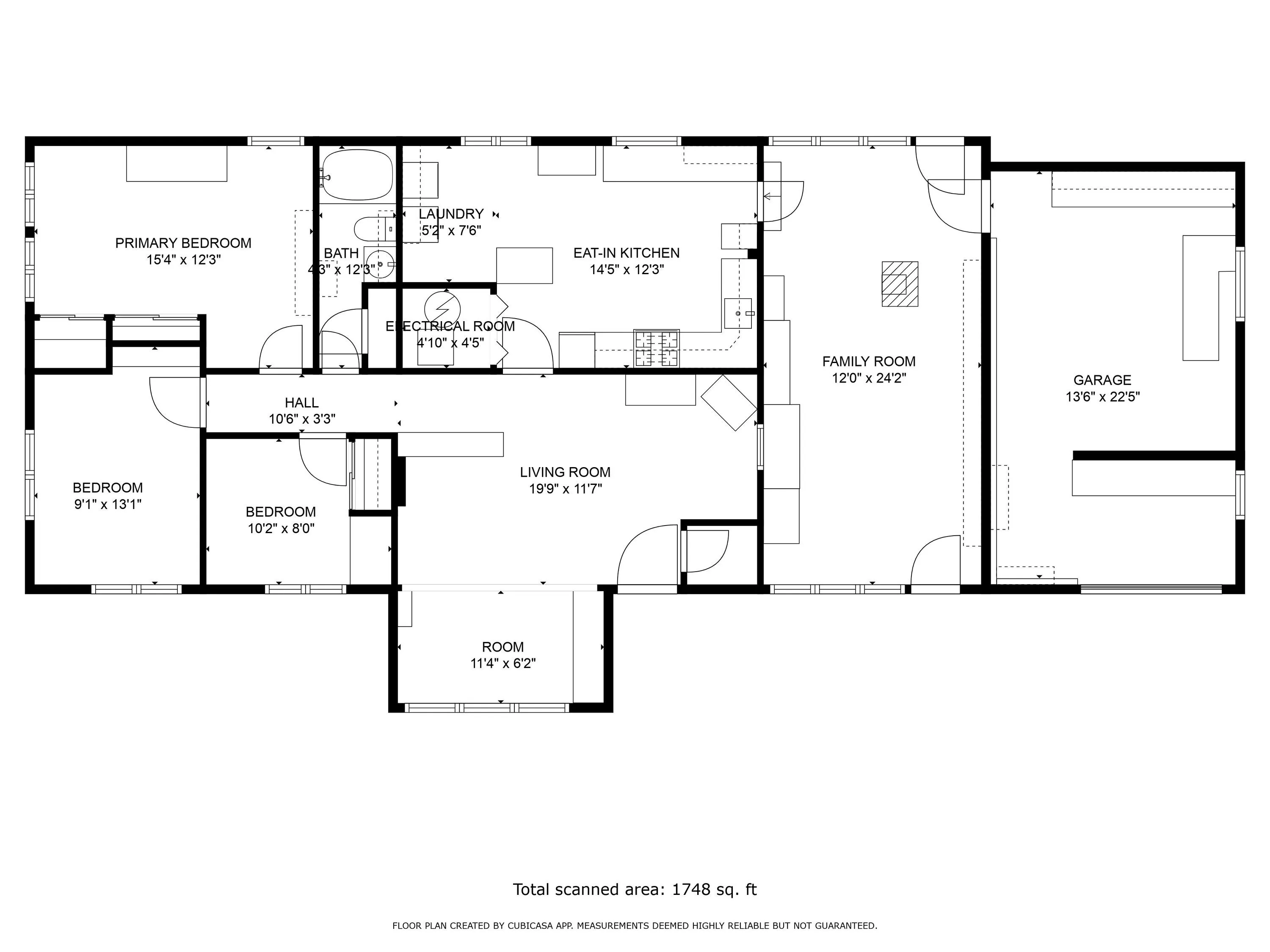
The house is back on the market as the buyer failed to get financing. Welcome to this beautifully renovated ranch home, set on a spacious corner lot of nearly 1 acre! Featuring 3 bedrooms, 2 full bathrooms, and an attached garage, this home offers modern comfort and style. Updates include a new roof, electrical system, HVAC, windows, and appliances. Step inside to an inviting open-concept living space that seamlessly combines the living room, dining area, and a stunning brand-new kitchen. The centerpiece is a large island with granite countertops, perfect for entertaining and everyday living. The dining area is ideal for hosting family and friends. The owner’s suite is thoughtfully designed, providing ample space and comfort. Every bedroom includes stylish modern ceiling fans, while both bathrooms feature elegant, spa-inspired tile finishes for a luxurious feel. Enjoy your morning coffee or unwind on the deck overlooking the fully fenced backyard. Additionally, the property boasts two detached garages and a finished man cave, perfect for hobbies or extra storage. Situated in a private yet convenient location, this home offers tranquility while being just a short drive to the heart of Indianapolis. Don’t miss this one!

  • Address: 8810 Beechwood Avenue
  • City: Indianapolis
  • State/county: IN
  • Zip/Postal Code: 46219
  • Area: No Subdivision

Details

Updated on July 17, 2025 at 5:06 am
  • Property ID 22017254
  • Price $259,900
  • Property Size 1440 Sqft
  • Land Area 0.7 Acres
  • Bedrooms 3
  • Rooms 5
  • Bathrooms 2
  • Garages 4
  • Garage Size x x
  • Year Built 1955
  • Property Type Single Family Residence, Residential
  • Property Status Expired

Additional details

  • Cooling Central Air
  • Heating Forced Air,Natural Gas
  • County Marion
  • Property Type Residential
  • Parking Attached
  • Architectural Style Ranch

Features

Mortgage Calculator

Contact Information

View Listings
Preeti Chaggar

Enquire About This Property

0 Review

Sort by:
Leave a Review

Leave a Review

Compare listings

Compare