6557 Eagles Nest Lane, Mc Cordsville, IN 46055
  • $532,500
  • $535,000

Description

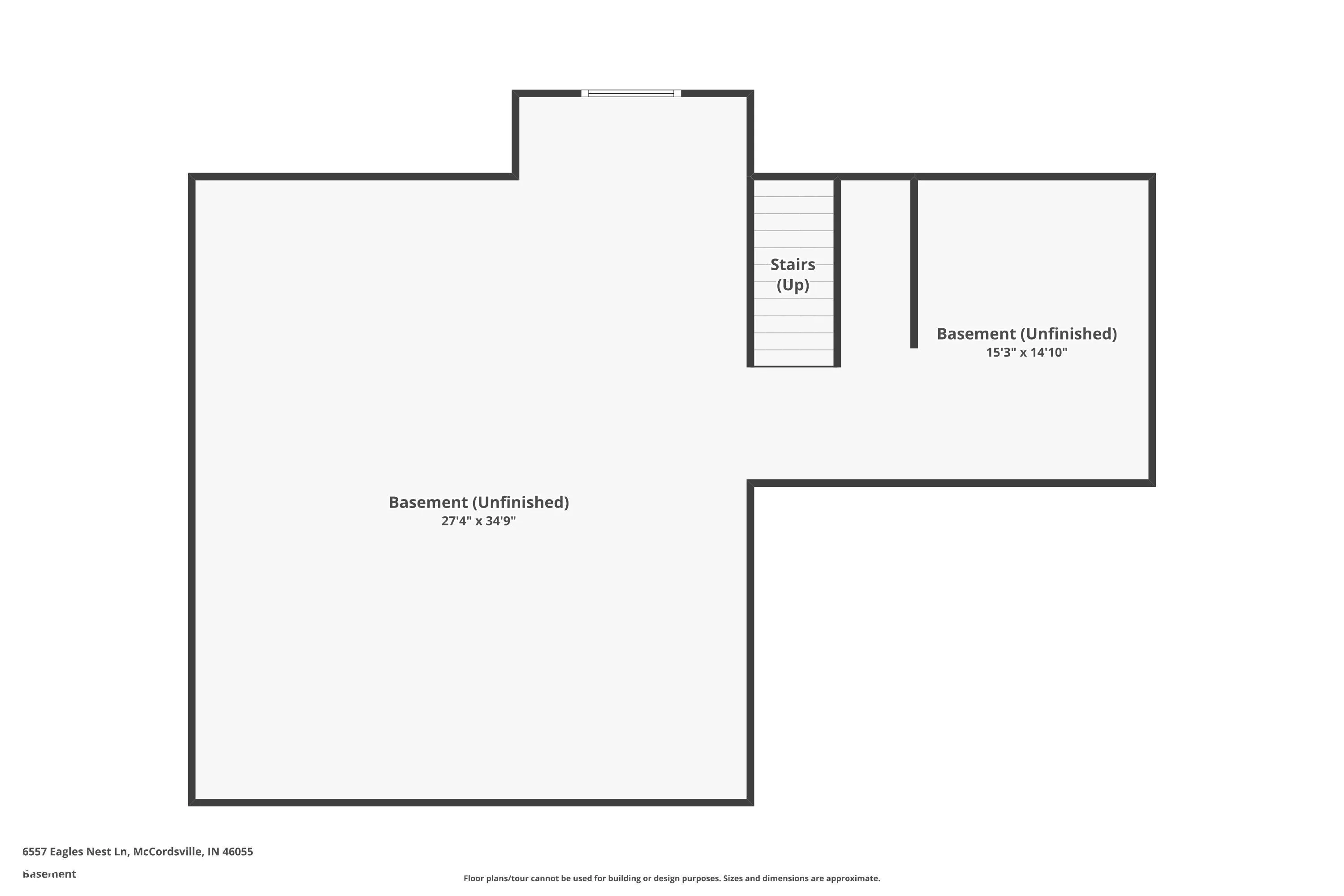
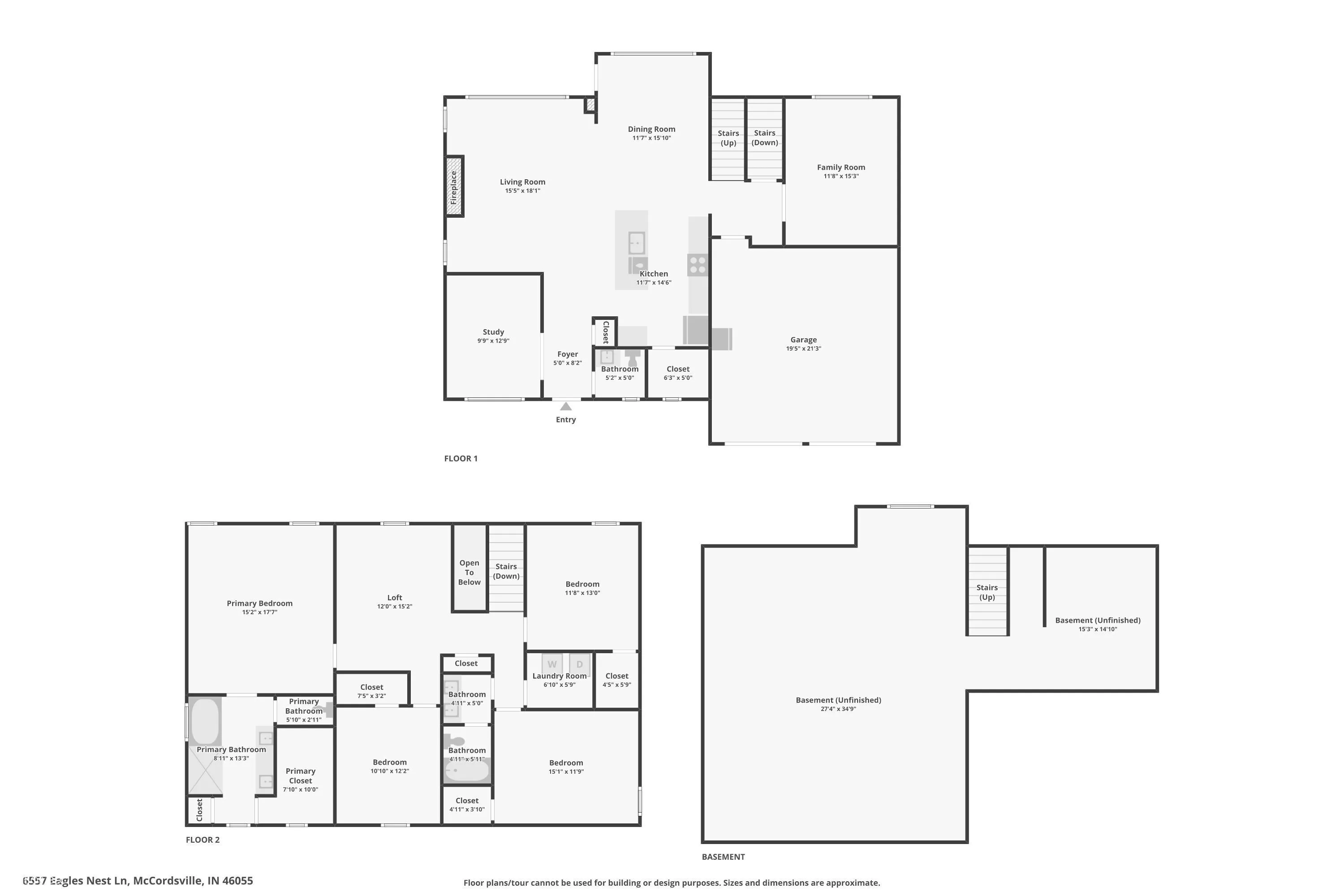
Beautifully Maintained 4-Bedroom Home with Loft, Basement & Private Backyard. This 4-bed, 2.5-bath home with a spacious loft and full basement is complete with rough-in plumbing and an egress window, a perfect setup to add a 5th bedroom & bathroom. Built in 2022 and boasting over 4,000 sq ft, this home is naturally sunny with a welcoming covered front porch, large foyer, private office, guest half bath, and a bright great room with a cozy fireplace. The gourmet kitchen impresses with quartz countertops, stainless steel appliances, gas range, upgraded cabinetry, a walk-in pantry, and a large center island with seating-ideal for hosting and everyday living. Just off the kitchen, a flexible bonus room can serve as a playroom, guest room, or second office. The mudroom/drop zone conveniently connects to the attached garage. Upstairs, you’ll find a spacious primary suite with a walk-in closet and private ensuite bath, plus three additional bedrooms, a laundry room, and an oversized loft-perfect for a secondary living area, game room, or study space. The fully fenced backyard features mature trees, a large patio, privacy fencing, and serene field views-perfect for entertaining or relaxing in your own oasis. The home is located in a community with sidewalks, a neighborhood pool, playground, and basketball courts, close to top-rated schools, shopping, McCord Square, Geist Reservoir, and Daniels Vineyard-just 30 minutes from downtown Indianapolis and Eli Lilly.

  • Address: 6557 Eagles Nest Lane
  • City: Mc Cordsville
  • State/county: IN
  • Zip/Postal Code: 46055
  • Area: Villages At Brookside

Details

Updated on June 18, 2025 at 10:05 pm
  • Property ID 22031141
  • Price $532,500
  • Property Size 4064 Sqft
  • Land Area 0.22 Acres
  • Bedrooms 4
  • Rooms 10
  • Bathrooms 3
  • Garages 2
  • Garage Size x x
  • Year Built 2022
  • Property Type Single Family Residence, Residential
  • Property Status Closed

Additional details

  • Association Fee 700
  • Utilities Cable Available,Water Connected
  • Heating Forced Air,Natural Gas
  • County Hancock
  • Property Type Residential
  • Parking Attached
  • Elementary School McCordsville Elementary School
  • Middle School Mt Vernon Middle School
  • High School Mt Vernon High School
  • Architectural Style TraditonalAmerican

Features

Mortgage Calculator

Video

360° Virtual Tour

Contact Information

View Listings
Preeti Chaggar

Enquire About This Property

0 Review

Sort by:
Leave a Review

Leave a Review

Compare listings

Compare