6990 Old Hunt Club Road, Zionsville, IN 46077
  • $1,900,000
  • $1,900,000

Description

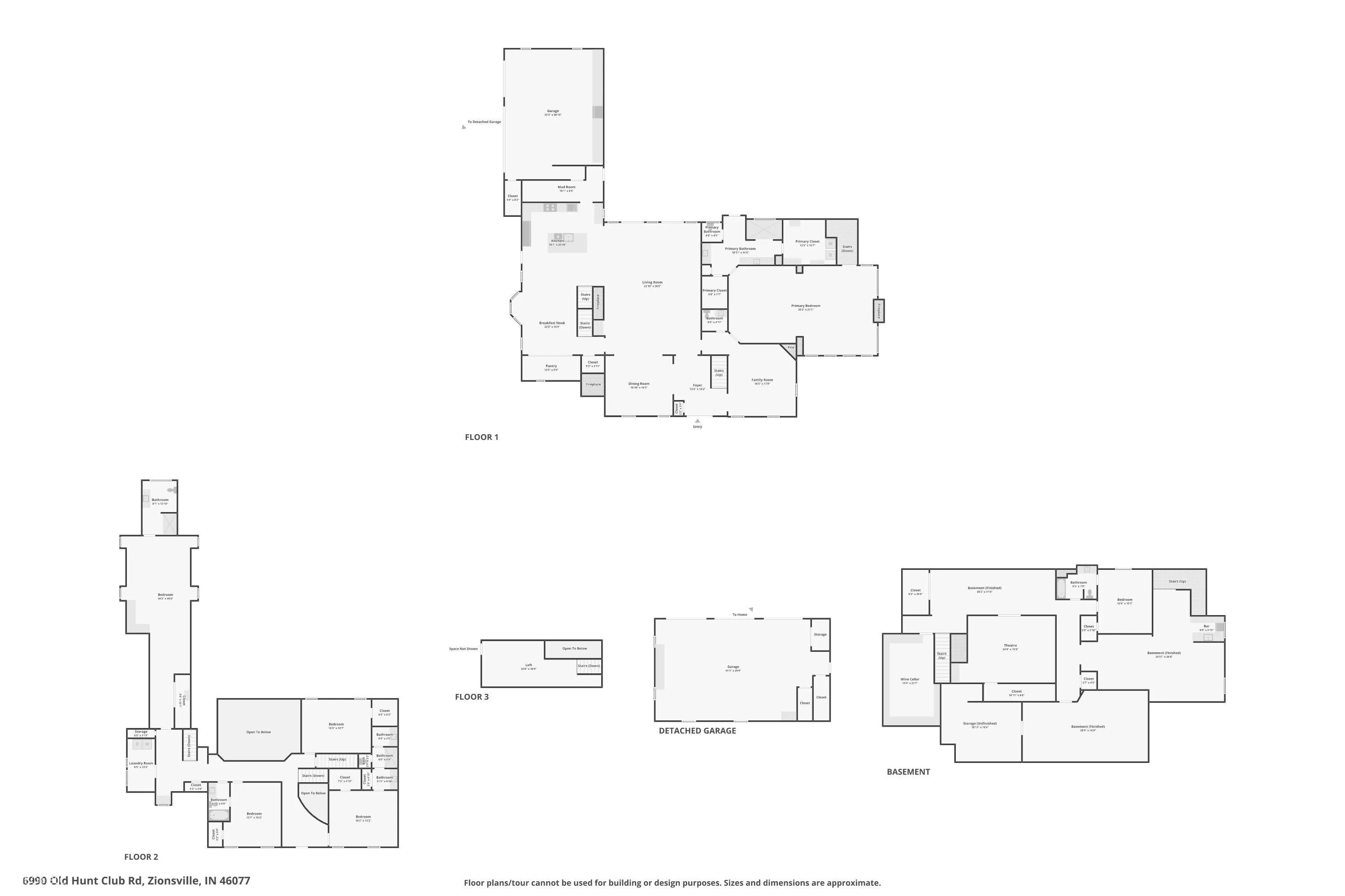
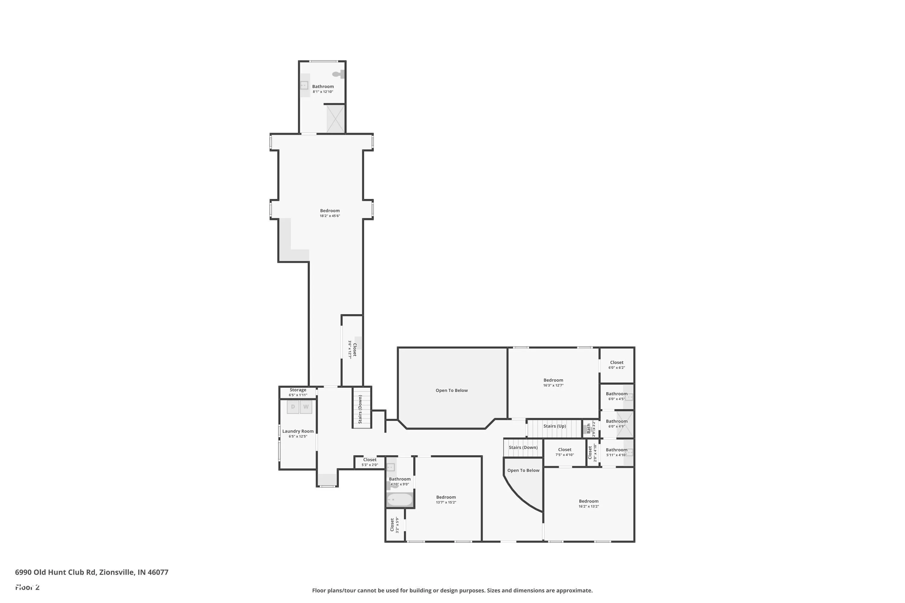
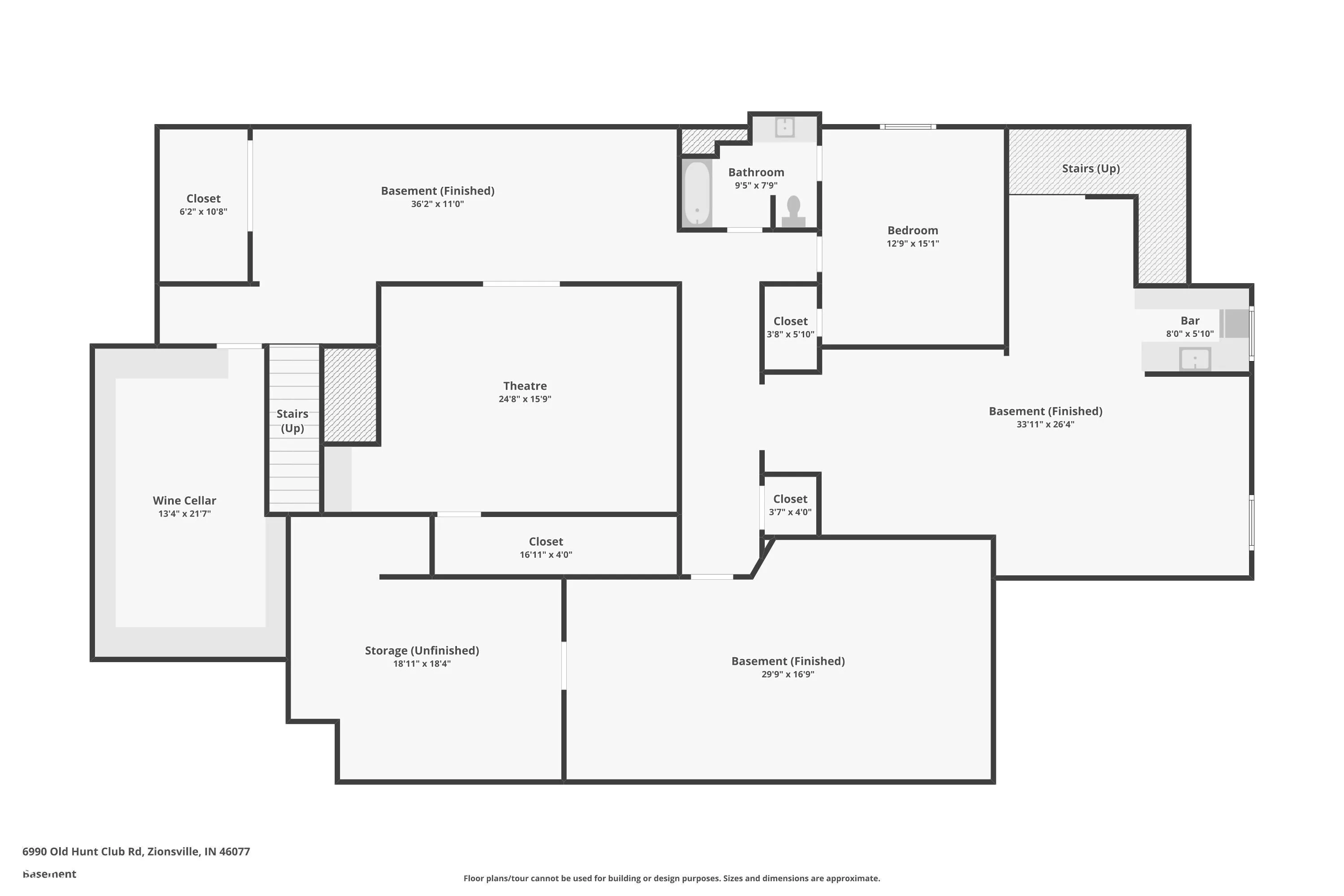
Luxury meets nature on a breathtaking 2.5 plus-acre estate in the heart of Zionsville’s equestrian district on prestigious Hunt Club Road. This exceptional property is designed for those who value space, serenity, and unforgettable outdoor living.Step into your private oasis where a sparkling pool, hot tub, and fully equipped outdoor kitchen invite you to relax and entertain under the open sky. The expansive grounds offer lush landscaping, mature trees, and ample space to roam, play, and enjoy the beauty of the outdoors. The main residence, remodeled just 8 years ago, seamlessly combines timeless elegance with modern comfort. Inside, you’ll find a high-end kitchen with double dishwashers, pot filler, double built-in fridges and freezers, and premium appliances-all framed by rich hardwood floors and freshly painted interiors (2025). The main-level primary suite is a peaceful haven with its own fireplace, sitting room, spa-like en-suite, and private access to the pool and patio. Upstairs, a private suite with ensuite and sitting area complements two additional bedrooms joined by a Jack-and-Jill bath. A fifth bedroom and full bath round out the upper level. The finished basement is an entertainer’s dream, complete with a wine cellar, home theater, wet bar, exercise room, and bonus space. Car lovers and hobbyists will appreciate the heated 3-car attached garage, plus an additional heated 3-car detached garage with a carriage house above-ideal for guests or in-laws, featuring a bedroom, bath, kitchenette, living space, and laundry. Come experience the unmatched charm, privacy, and outdoor luxury of this extraordinary Hunt Club estate.

  • Address: 6990 Old Hunt Club Road
  • City: Zionsville
  • State/county: IN
  • Zip/Postal Code: 46077

Details

Updated on August 4, 2025 at 6:43 pm
  • Property ID 22035005
  • Price $1,900,000
  • Property Size 9744 Sqft
  • Land Area 2.5 Acres
  • Bedrooms 6
  • Rooms 20
  • Bathrooms 6
  • Garages 4
  • Garage Size x x
  • Year Built 1996
  • Property Type Single Family Residence, Residential
  • Property Status Closed

Additional details

  • Cooling Central Air
  • Heating Zoned,Natural Gas
  • County Boone
  • Property Type Residential
  • Pool In Ground
  • Parking Attached
  • Elementary School Stonegate Elementary
  • Middle School Zionsville West Middle School
  • High School Zionsville Community High School
  • Architectural Style Georgian

Mortgage Calculator

Video

Contact Information

View Listings
Preeti Chaggar

Enquire About This Property

0 Review

Sort by:
Leave a Review

Leave a Review

Compare listings

Compare