8855 Banner Drive, Brownsburg, IN 46112
  • $405,000
  • $405,000

Description

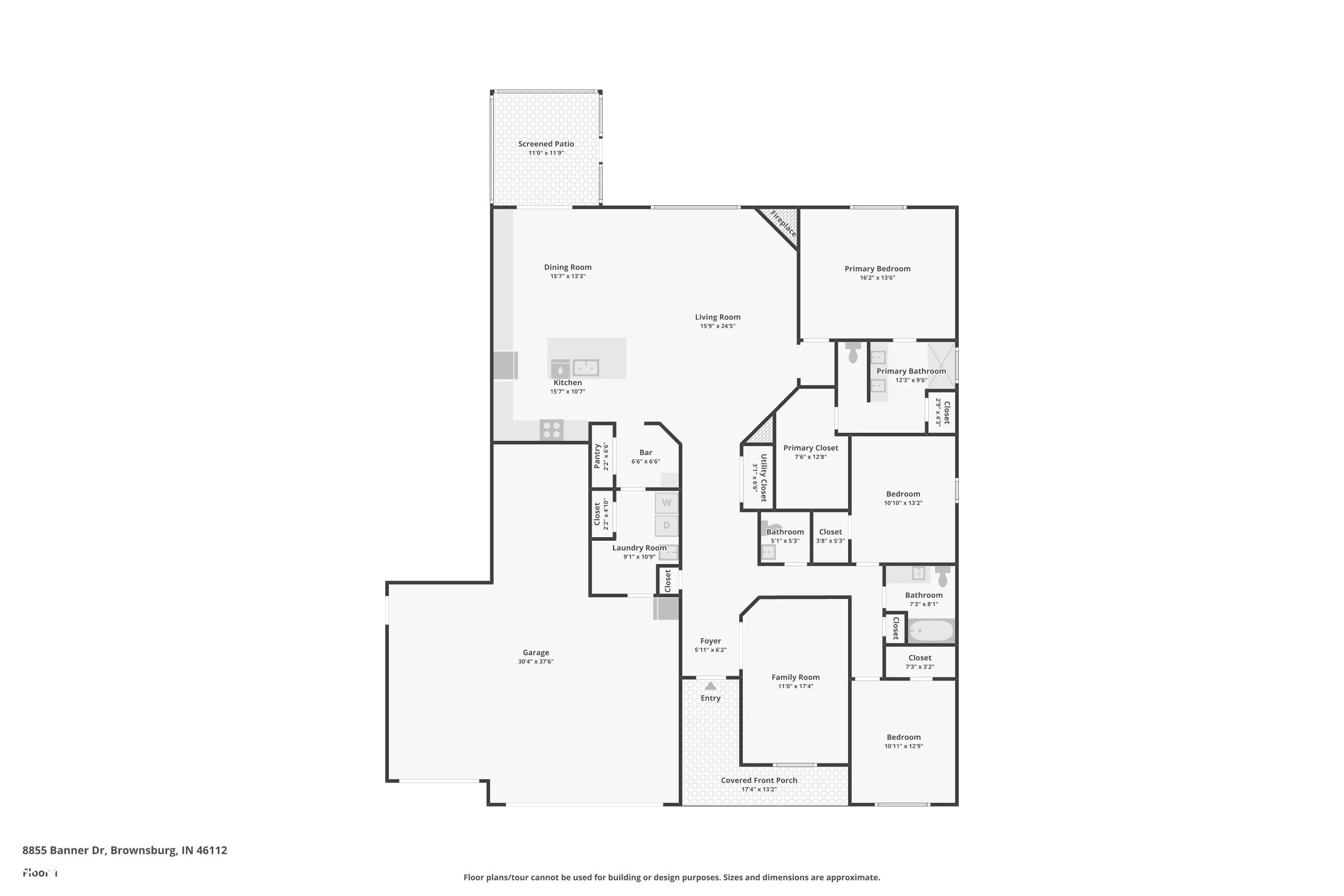
Wonderful Ranch Style Home, this spacious property boasts 9-foot ceilings throughout and features a very open floor plan. The Great Room is enhanced by a gas log fireplace and seamlessly connects to the Dining Room & Kitchen. You’ll find an abundance of counter-height cabinets in the dining area, many with convenient pull-outs, all complemented by granite countertops. The Kitchen also offers granite countertops and pull-out shelving in the cabinets, along with a kitchen island. Just off the large entry is a sizable Den/Office, providing a great workspace. The Owner’s Suite is a true retreat, featuring a generous shower, double sinks, and an enormous walk-in closet. Additionally, there’s a practical Work Nook with a built-in desk and cabinets for storage. For those with vehicles and outdoor equipment, the property includes a huge 4-car garage, approximately 30×21 and 16×10, offering plenty of space for trucks and boats. The outdoor living area is equally impressive, with both a 12×11 screened patio and a 12×12 open patio perfect for enjoying the outdoors.

  • Address: 8855 Banner Drive
  • City: Brownsburg
  • State/county: IN
  • Zip/Postal Code: 46112

Details

Updated on June 20, 2025 at 4:17 pm
  • Property ID 22035279
  • Price $405,000
  • Property Size 2326 Sqft
  • Land Area 0.24 Acres
  • Bedrooms 3
  • Rooms 9
  • Bathrooms 3
  • Garages 4
  • Garage Size x x
  • Year Built 2014
  • Property Type Single Family Residence, Residential
  • Property Status Closed

Additional details

  • Association Fee 635
  • Utilities Cable Connected,Sewer Connected
  • Heating Forced Air,Natural Gas
  • County Hendricks
  • Property Type Residential
  • Parking Attached
  • Architectural Style Ranch

Mortgage Calculator

Video

360° Virtual Tour

Contact Information

View Listings
Preeti Chaggar

Enquire About This Property

0 Review

Sort by:
Leave a Review

Leave a Review

Compare listings

Compare