• Property Type
  • Single Family Residence, Residential
  • 3
  • Bedrooms
  • 2
  • Bathrooms
  • 2
  • Garages
  • 1618 Sqft
  • Area Size
4209 Switchgrass Way, Indianapolis, IN 46237
  • $274,900
  • $274,900

Description

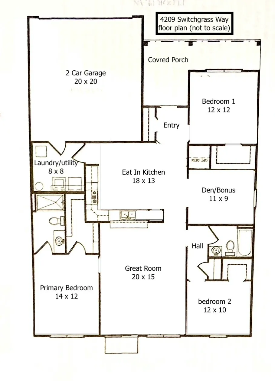
Welcome to this inviting 3-bedroom, 2-bath paired home in the sought-after Epler Trace community. Enjoy an open-concept layout featuring a welcoming entry that flows seamlessly into a spacious eat-in kitchen. The kitchen offers generous cabinetry, space for a large dining table, and an open counter view into the great room-highlighted by 9-foot ceilings and abundant natural light throughout its 1,618 square feet. The sink overlooks both the great room and large windows with views of the patio and pond, creating a warm and connected atmosphere. A versatile den/library provides the perfect space for a formal dining area, TV room, or home office. The expansive primary suite features a walk-in closet and a private bath with a large shower. Two additional bedrooms are thoughtfully positioned on the opposite side of the living area, offering a desirable split floor plan and a shared full bathroom-ideal for guests. Enjoy outdoor living on the patio/deck, perfect for grilling and entertaining. Nestled in a quiet neighborhood, this home is conveniently located near shopping, dining, parks, and major interstates.

  • Address: 4209 Switchgrass Way
  • City: Indianapolis
  • State/county: IN
  • Zip/Postal Code: 46237

Details

Updated on July 2, 2025 at 10:30 pm
  • Property ID 22041304
  • Price $274,900
  • Property Size 1618 Sqft
  • Land Area 0.12 Acres
  • Bedrooms 3
  • Rooms 7
  • Bathrooms 2
  • Garages 2
  • Garage Size x x
  • Year Built 2018
  • Property Type Single Family Residence, Residential
  • Property Status Closed

Additional details

  • Association Fee 425
  • Utilities Sewer Connected,Water Connected
  • Heating Forced Air,Natural Gas
  • County Marion
  • Property Type Residential
  • Parking Attached
  • Elementary School Mary Bryan Elementary School
  • Middle School Southport Middle School
  • High School Southport High School
  • Community Features Curbs
  • Waterfront Pond
  • Architectural Style Ranch

Mortgage Calculator

Contact Information

View Listings
Preeti Chaggar

Enquire About This Property

0 Review

Sort by:
Leave a Review

Leave a Review

Compare listings

Compare