1510 Dominion Drive, Zionsville, IN 46077
  • $334,900
  • $334,900

Description

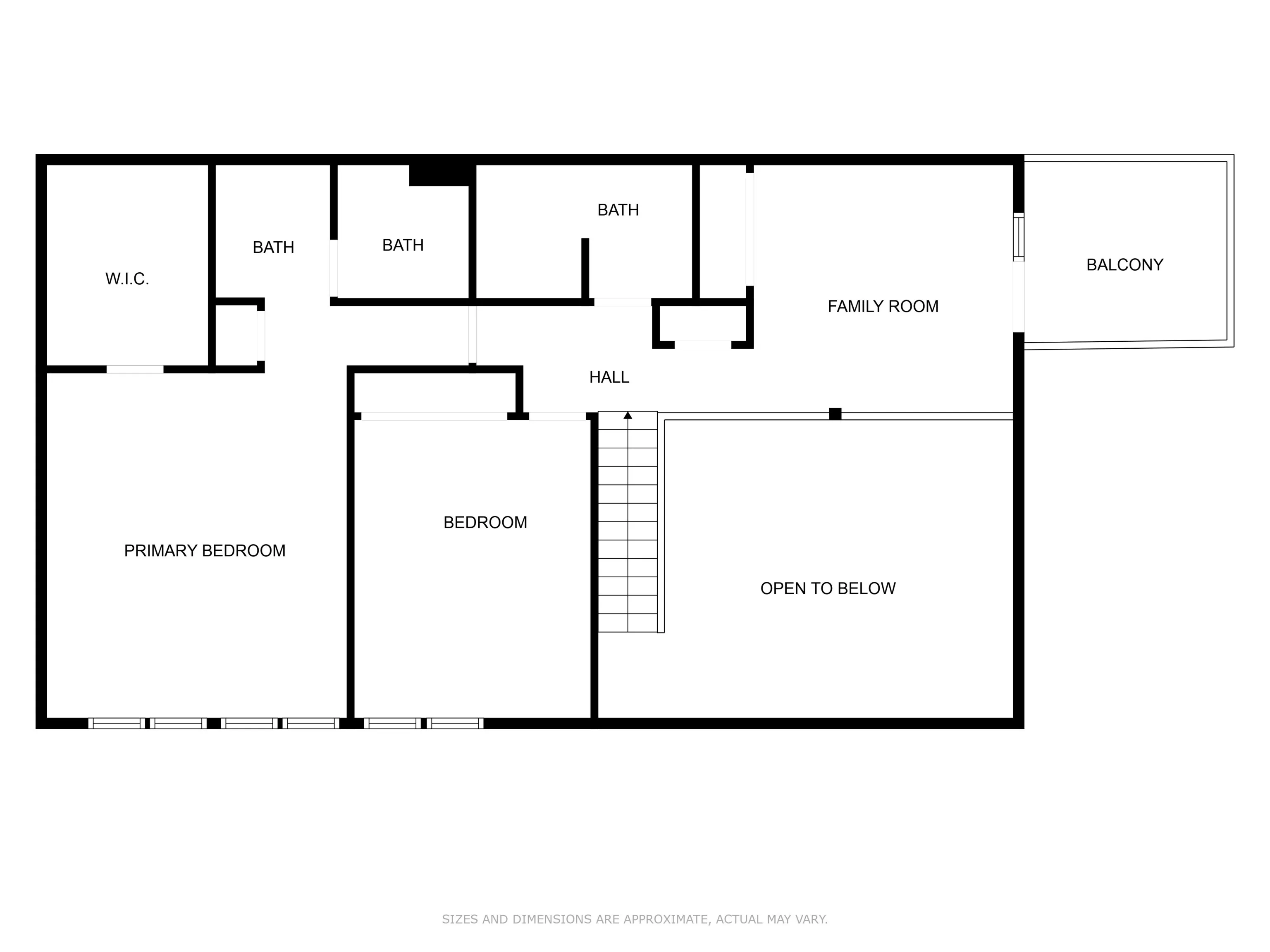
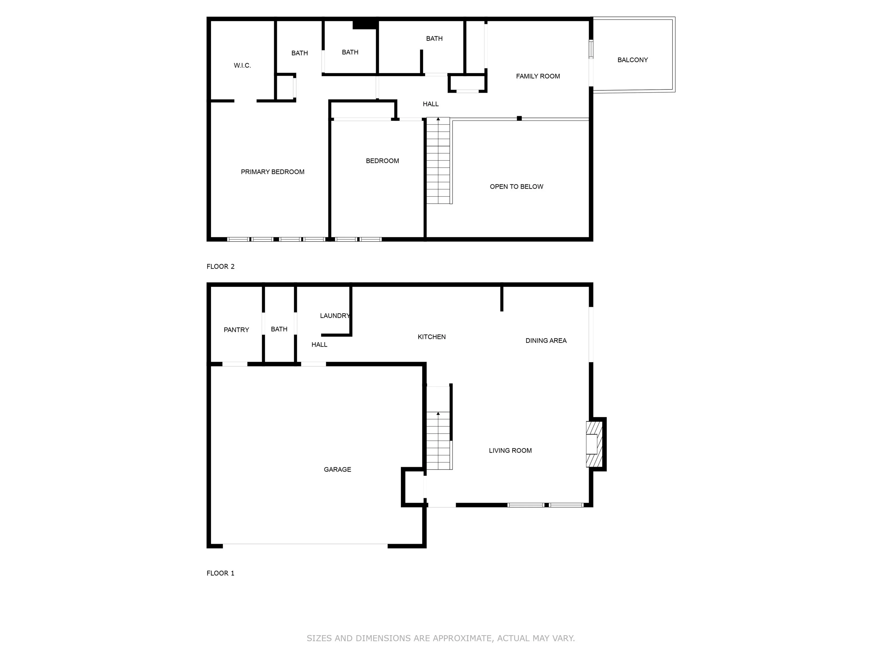
Welcome to your new home where an inviting floor plan greets you the moment you step inside. Beautiful refinished original hardwood flooring flows throughout the main living area complimented by a stylish new gas fireplace surround perfect for cozy gatherings. The seamless layout connects the kitchen, dining and living rooms making entertaining effortless and enjoyable. Remodeled kitchen boasts exquisite upgrades including granite countertops. New island allows for functionality and perfect for entertaining. Kitchen features a new large sink, fixtures, garbage disposal and ample cabinetry with new tile ceramic flooring throughout. Just steps away your private patio offers a serene spot to savor your morning coffee or relax and unwind after a busy day. Upstairs discover the spacious living area loft, bedrooms and baths enhanced by new oak stairs and sleek modern hand railing. All new ceiling fans in each room add comfort and style. Enjoy the views from the only second floor balcony in the entire complex. Your home also provides peace of mind with updates including new HVAC, water heater, windows, doors (2018)and storm door. The crawl space has been fully encapsulated and insulated with sump pump installed. Please refer to the complete list of updates for full details on the care and improvement made in this wonderful home. Enjoy low maintenance living with an HOA that covers all lawn care, landscaping and snow removal. HOA also includes periodic roof replacement and exterior painting. Enjoy common amenities including clubhouse, swimming pool, playground and tennis/pickleball courts. This home truly has it all. Your next chapter begins here-Welcome home!

  • Address: 1510 Dominion Drive
  • City: Zionsville
  • State/county: IN
  • Zip/Postal Code: 46077

Details

Updated on July 30, 2025 at 6:11 pm
  • Property ID 22043306
  • Price $334,900
  • Property Size 1502 Sqft
  • Land Area 0.05 Acres
  • Bedrooms 2
  • Rooms 10
  • Bathrooms 3
  • Garages 2
  • Garage Size x x
  • Year Built 1984
  • Property Type Condominium, Residential
  • Property Status Closed

Additional details

  • Association Fee 374
  • Utilities Natural Gas Connected
  • Cooling Central Air
  • Heating Natural Gas
  • County Boone
  • Property Type Residential
  • Parking Attached
  • Community Features Clubhouse,Playground,Pool,Tennis Court(s)
  • Architectural Style Traditional

Features

Mortgage Calculator

Video

360° Virtual Tour

Contact Information

View Listings
Preeti Chaggar

Enquire About This Property

0 Review

Sort by:
Leave a Review

Leave a Review

Compare listings

Compare