15934 Meadow Frost Court, Fishers, IN 46037
  • $389,999
  • $397,999

Description

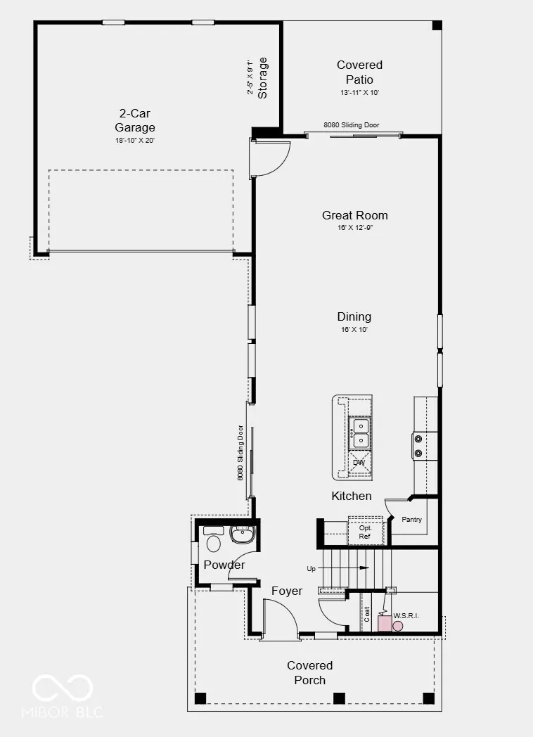
What’s Special: No Rear Neighbors | Backs to Greenbelt | Understairs Storage | Large Kitchen Island – New Construction – Ready Now! Built by Taylor Morrison, America’s Most Trusted Home Builder. Welcome to the Tribeca at 15934 Meadow Frost Court in Cyntheanne Woods! Step into the welcoming foyer to find an open-concept layout with plenty of natural light. The heart of the home features a bright great room, modern kitchen, and a large sliding door that flows out to the covered back patio. Head upstairs to find two secondary bedrooms with a shared full bathroom, a cozy loft, and a centrally located laundry room. Escape to the private primary suite with a relaxing bathroom, and walk-in closet. The attached bathroom features a dual sink vanity, shower with a bench, and a linen closet for additional storage. Located in vibrant Fishers, IN, home to top-rated schools, friendly charm, and great dining and shopping at the Fishers District-this home blends comfort and convenience. Additional highlights include: refrigerator, backsplash in kitchen, double doors into the primary suite, a shower with a bench in the primary bathroom, gas line added to the kitchen, and a water softener rough-in located under the stairs. MLS#22044975

  • Address: 15934 Meadow Frost Court
  • City: Fishers
  • State/county: IN
  • Zip/Postal Code: 46037

Details

Updated on April 22, 2026 at 1:23 pm
  • Property ID 22044975
  • Price $389,999
  • Property Size 1900 Sqft
  • Land Area 0.11 Acres
  • Bedrooms 3
  • Rooms 6
  • Bathrooms 3
  • Garages 2
  • Garage Size x x
  • Year Built 2025
  • Property Type Single Family Residence, Residential
  • Property Status Active

Additional details

  • Association Fee 925
  • Cooling Central Air
  • Heating Forced Air
  • County Hamilton
  • Property Type Residential
  • Parking Attached,Concrete
  • Elementary School Southeastern Elementary School
  • Middle School Hamilton SE Int and Jr High Sch
  • High School Hamilton Southeastern HS
  • Architectural Style Farmhouse

Mortgage Calculator

360° Virtual Tour

Contact Information

View Listings
Preeti Chaggar

Enquire About This Property

0 Review

Sort by:
Leave a Review

Leave a Review

Compare listings

Compare