3202 N 650 W , Waynetown, IN 47990
  • $235,000
  • $235,000

Description

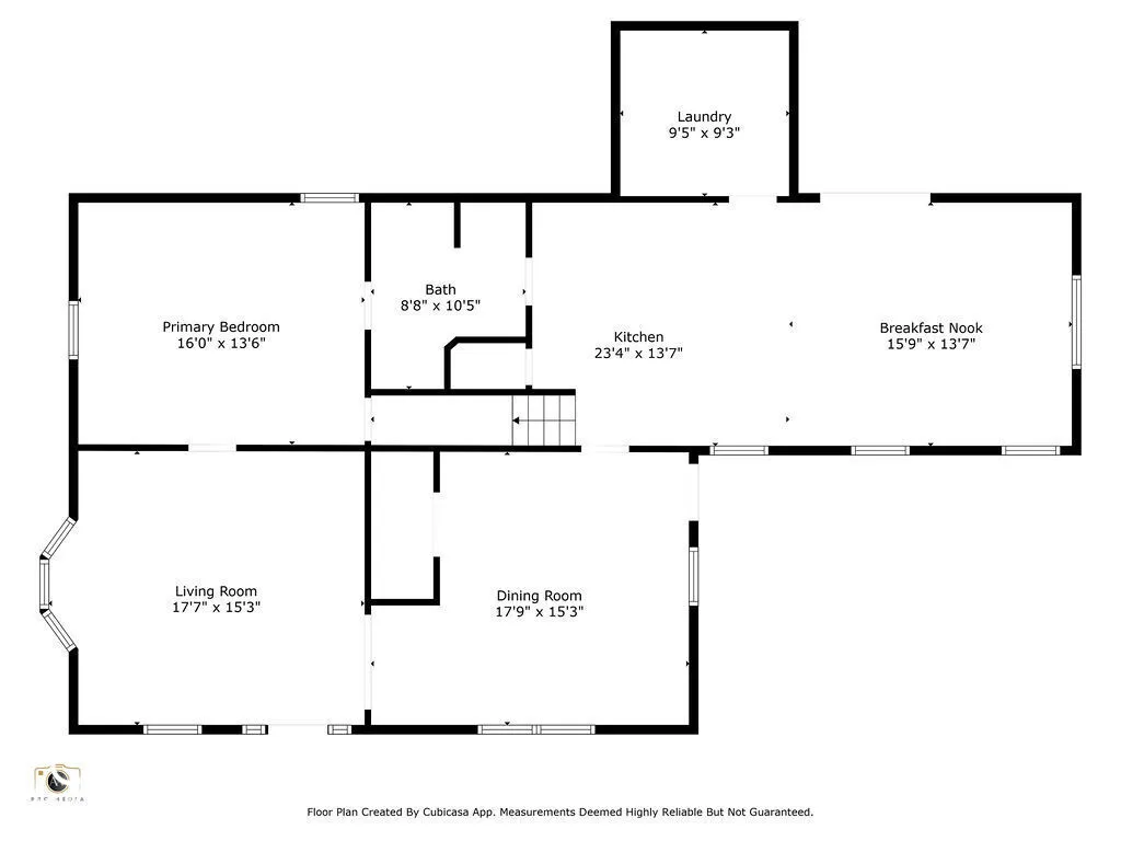
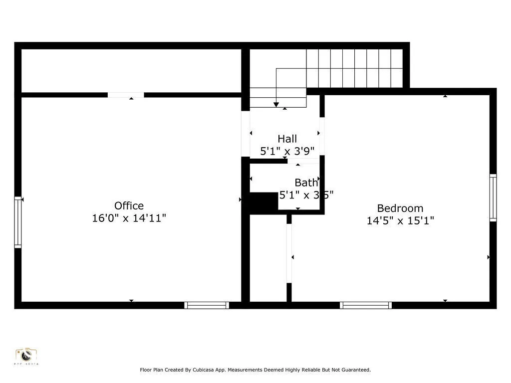
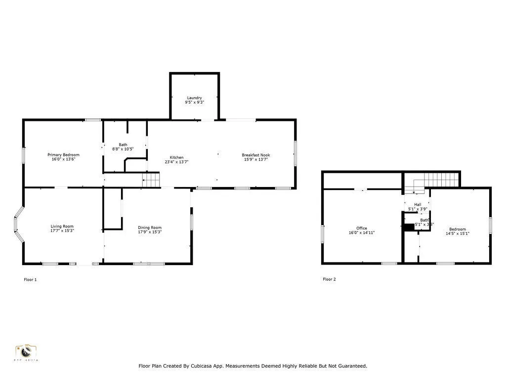
A Country Retreat with Endless Potential! Escape to peace and privacy with this 3-bedroom,2-bath two-story farmhouse, perfectly situated on nearly 6 acres and set far back from the road. This location is fantastic! Surrounded by open fields, this picturesque property offers a serene rural setting with a spacious pasture–ideal for animals, gardening, or simply enjoying the view. The large county kitchen features a sunny breakfast room and flows seamlessly into the main level laundry. The primary bedroom is located on the main floor, while two generously sized bedrooms await upstairs. Additional highlights include a newer roof, vinyl windows throughout, a two-car detached garage, and a separate storage building–perfect for tools, hobbies, or extra space. With a little vision and Tlc, this farmhouse has the potential to become a dream rural retreat or hobby farm. Whether you’re looking to renovate for yourself or invest in a property with great bones and acreage, this is your chance to create something special.

  • Address: 3202 N 650 W
  • City: Waynetown
  • State/county: IN
  • Zip/Postal Code: 47990
  • Area: No Subdivision

Details

Updated on December 24, 2025 at 10:20 pm
  • Property ID 22044993
  • Price $235,000
  • Property Size 2744 Sqft
  • Land Area 5.97 Acres
  • Bedrooms 3
  • Rooms 8
  • Bathrooms 2
  • Garages 3
  • Garage Size x x
  • Year Built 1900
  • Property Type Single Family Residence, Residential
  • Property Status Closed

Additional details

  • Cooling None
  • Heating Forced Air,Propane
  • County Montgomery
  • Property Type Residential
  • Parking Detached
  • Elementary School Lester B Sommer Elementary School
  • Middle School North Montgomery Middle School
  • High School North Montgomery High School
  • Architectural Style Traditional

Features

Mortgage Calculator

Contact Information

View Listings
Preeti Chaggar

Enquire About This Property

0 Review

Sort by:
Leave a Review

Leave a Review

Compare listings

Compare