4955 W County Road 250 N , Greencastle, IN 46135
  • $575,000
  • $575,000

Description

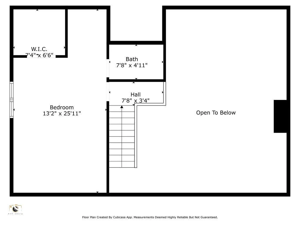
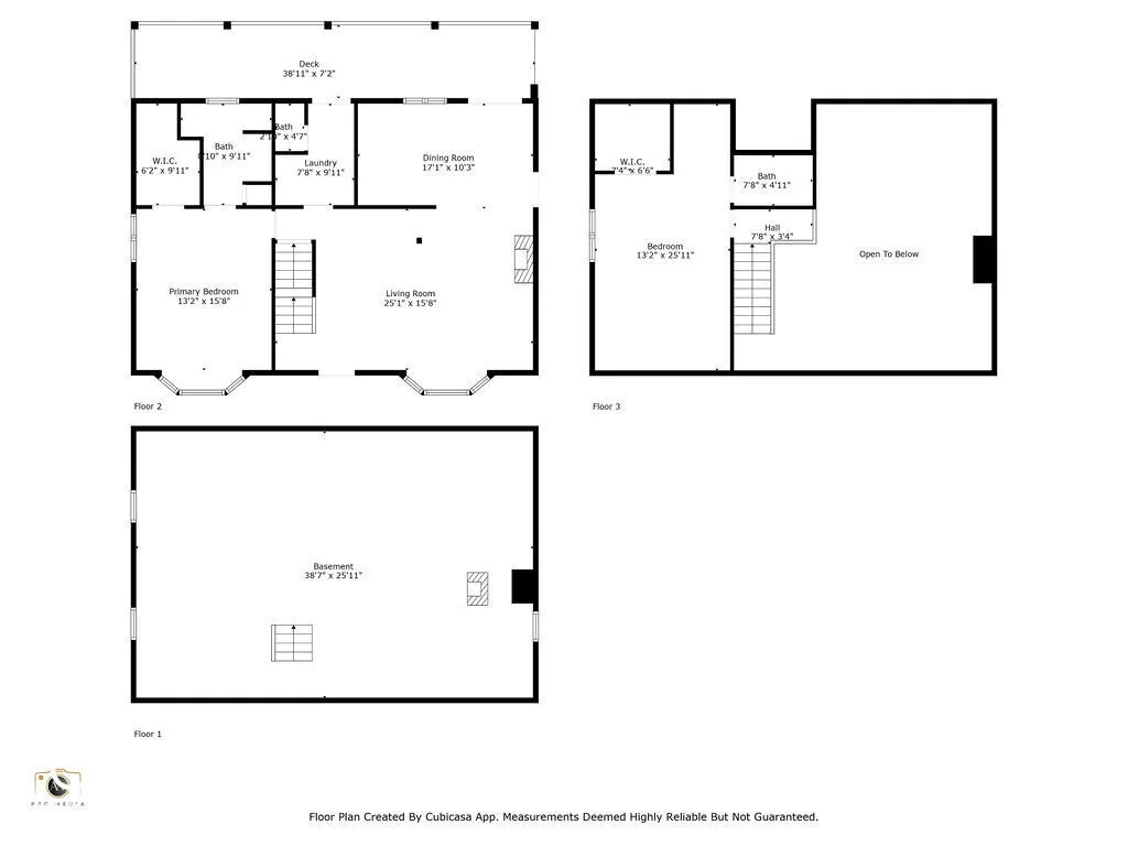
Escape to your own private paradise with this beautifully crafted log cabin nestled on 20 scenic acres of mixed open pasture and mature woodland. Whether you’re looking for a peaceful homestead, a hunter’s getaway, or a nature lover’s dream, this property offers the perfect blend of rustic charm and modern comfort. 2 spacious en-suite bedrooms for privacy and comfort. Gorgeous wooded interior with warm log finishes, vaulted ceilings, and exposed beams. Open-concept living area with cozy fireplace, ideal for relaxing or entertaining. Well-appointed kitchen with ample cabinet space and modern appliances. Covered front and back porches to enjoy stunning views year-round. Unfinished basement with lots of potential. Large 40×60 pole barn for all those outdoor projects.

  • Address: 4955 W County Road 250 N
  • City: Greencastle
  • State/county: IN
  • Zip/Postal Code: 46135
  • Area: No Subdivision

Details

Updated on July 23, 2025 at 10:10 pm
  • Property ID 22045830
  • Price $575,000
  • Property Size 2850 Sqft
  • Land Area 20.53 Acres
  • Bedrooms 2
  • Rooms 5
  • Bathrooms 3
  • Garage 1
  • Garage Size x x
  • Year Built 1991
  • Property Type Single Family Residence, Residential
  • Property Status Closed

Additional details

  • Utilities Electricity Connected,Septic System
  • Cooling Central Air
  • Heating Propane,Wood Stove
  • County Putnam
  • Property Type Residential
  • Parking Attached
  • Middle School Greencastle Middle School
  • High School Greencastle Senior High School
  • Architectural Style Log

Features

Mortgage Calculator

Contact Information

View Listings
Preeti Chaggar

Enquire About This Property

0 Review

Sort by:
Leave a Review

Leave a Review

Compare listings

Compare