7730 Bear Creek Road, Morgantown, IN 46160
  • $560,000
  • $575,000

Description

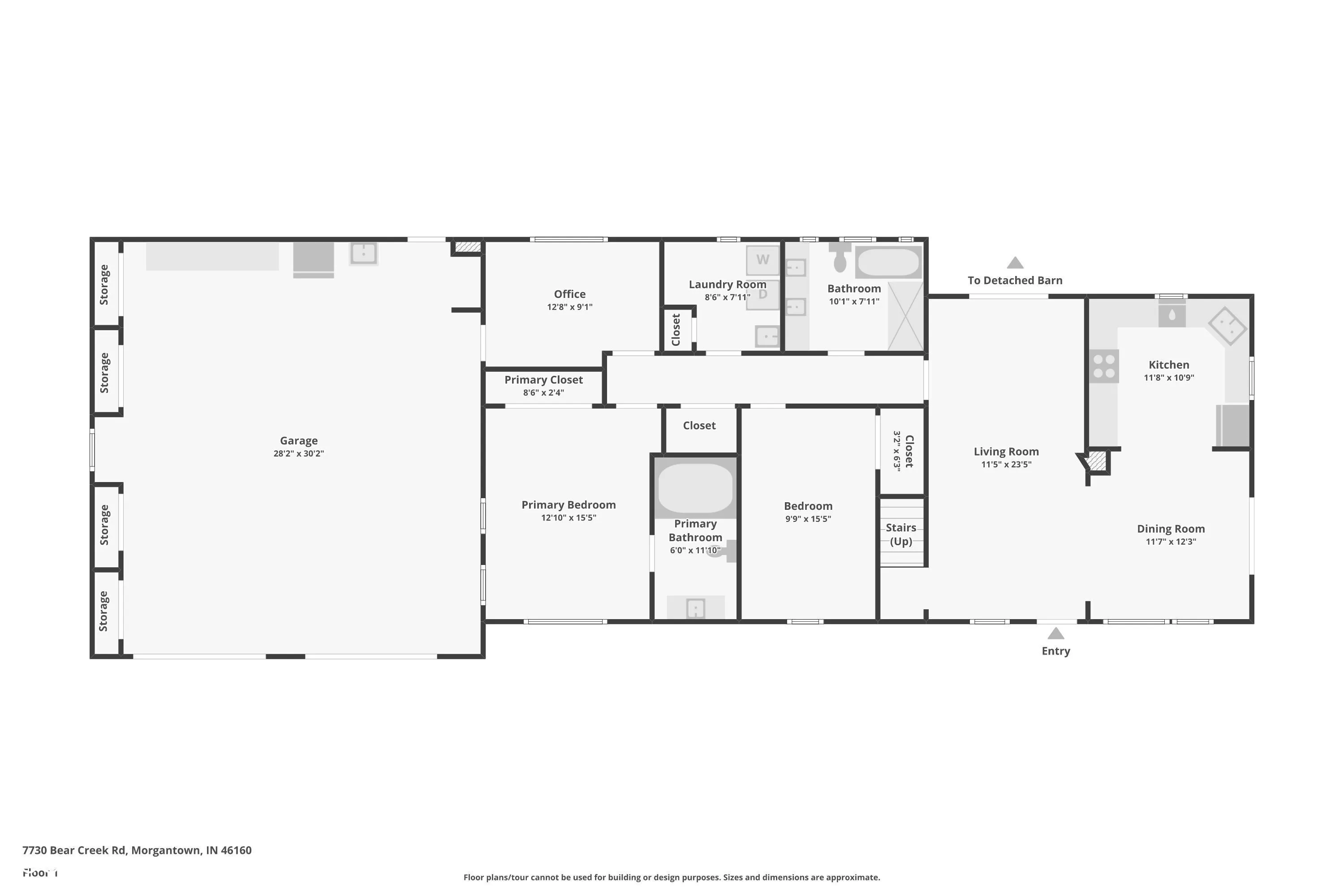
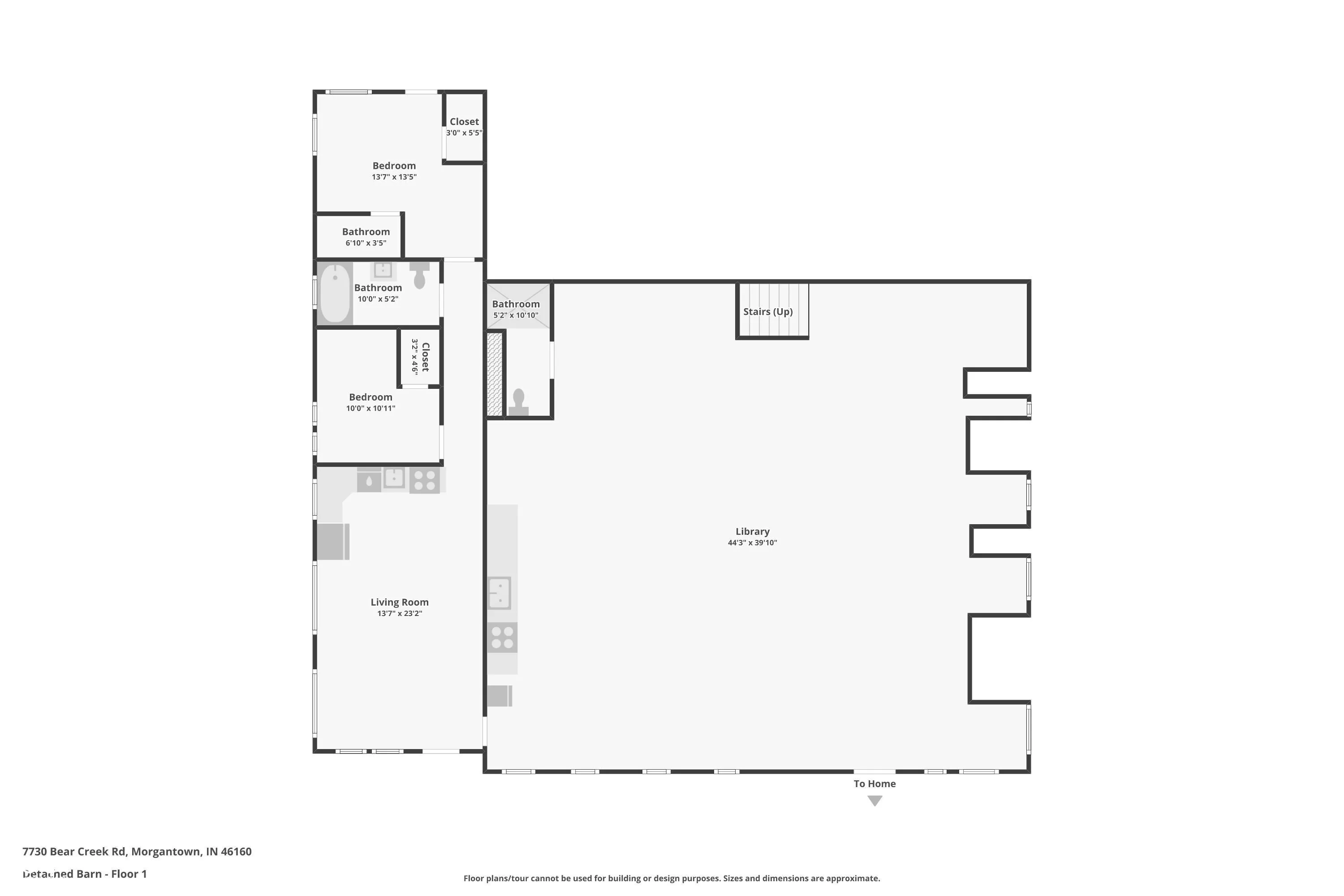
Welcome to Brown County – your 6-acre private retreat and a homesteader’s dream. Just a short walk from popular Bear Lake and the Tecumseh Trail, this property offers endless possibilities for recreation, relaxation, and enterprise. This home was significantly renovated in 2000 with little of the original 1940 home remaining. The main residence is a spacious 3-bedroom home with an additional upper-level great room, providing versatility for gatherings, hobbies, or extended living. One of the standout features is the massive 50×50 finished barn, complete with its own septic system and water access – ideal for entertaining, events, or a wide variety of business ventures. Currently outfitted as a dog kennel with secure fencing and horse amenities, it’s ready for animal lovers, but can be adapted to suit almost any vision. The barn also includes a finished 2-bedroom, 2-bath apartment, perfect for staff housing, rental income, or guest accommodations. Above the main barn space, a large flex area offers potential for an office, studio, or lounge. Surrounded by protected state land, this property combines privacy with breathtaking natural beauty – a place where you can breathe deeply, live fully, and make your dreams a reality.

  • Address: 7730 Bear Creek Road
  • City: Morgantown
  • State/county: IN
  • Zip/Postal Code: 46160
  • Area: No Subdivision

Details

Updated on October 22, 2025 at 11:02 pm
  • Property ID 22056031
  • Price $560,000
  • Property Size 2516 Sqft
  • Land Area 5.53 Acres
  • Bedrooms 3
  • Rooms 8
  • Bathrooms 3
  • Garages 3
  • Garage Size x x
  • Year Built 1940
  • Property Type Single Family Residence, Residential
  • Property Status Withdrawn

Additional details

  • Cooling Central Air
  • Heating Natural Gas
  • County Brown
  • Property Type Residential
  • Parking Attached,Garage Door Opener
  • Middle School Brown County Junior High
  • High School Brown County High School
  • Community Features Lake
  • Architectural Style Traditional

Features

Mortgage Calculator

Contact Information

View Listings
Preeti Chaggar

Enquire About This Property

0 Review

Sort by:
Leave a Review

Leave a Review

Compare listings

Compare