6888 E County Road 800 N , Bainbridge, IN 46105
  • $599,999
  • $599,999

Description

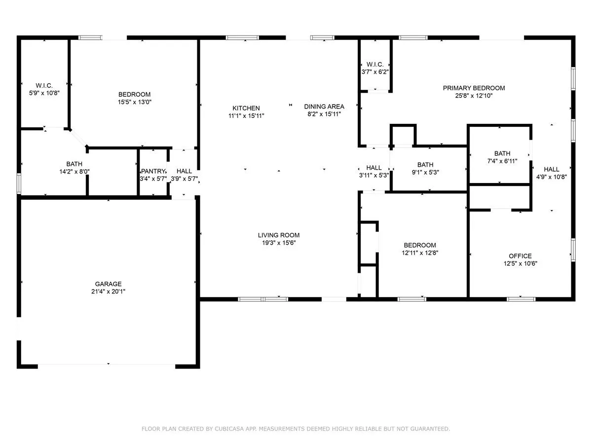
Escape to peace and privacy with this stunning brick ranch style retreat nestled on nearly 14 wooded acres-complete with an in-ground pool, a serene pond, and a fully equipped in-law quarters. Whether you’re looking for a multi-generational home or a private countryside getaway, this property has it all. The newly added in-law/guest quarters includes a kitchenette, stand up shower and private sitting room. The custom kitchen features soft close cabinets, granite counters, a large island with electricity and storage, SS appliances and a walk-in pantry. The open concept kitchen easily connects to the family and dining areas. The primary suite features a huge walk-in tiled shower, walk-in closet plus access to the patio. This property features an insulated 36×48 pole barn with 200 amp service, LED lighting, concrete floor and a wood burning stove and two sheds (one is a large Amish shed). The in-ground pool is salt water and heated. The pond, trees, and pasture could easily accommodate small livestock and a huge garden. Make this dream home yours today!

  • Address: 6888 E County Road 800 N
  • City: Bainbridge
  • State/county: IN
  • Zip/Postal Code: 46105
  • Area: No Subdivision

Details

Updated on October 15, 2025 at 10:07 pm
  • Property ID 22057090
  • Price $599,999
  • Property Size 1917 Sqft
  • Land Area 13.99 Acres
  • Bedrooms 3
  • Rooms 7
  • Bathrooms 3
  • Garages 4
  • Garage Size x x
  • Year Built 1998
  • Property Type Single Family Residence, Residential
  • Property Status Closed

Additional details

  • Cooling Central Air
  • Heating Propane
  • County Putnam
  • Property Type Residential
  • Pool Heated,In Ground
  • Parking Attached,Detached,Gravel,Garage Door Opener
  • Middle School North Putnam Middle School
  • High School North Putnam Sr High School
  • Waterfront Creek,Pond,Water Access,Water View,Waterfront
  • Architectural Style Ranch

Mortgage Calculator

Contact Information

View Listings
Preeti Chaggar

Enquire About This Property

0 Review

Sort by:
Leave a Review

Leave a Review

Compare listings

Compare