1133 S Illinois Street, Indianapolis, IN 46225
  • $49,900
  • $49,900

Description

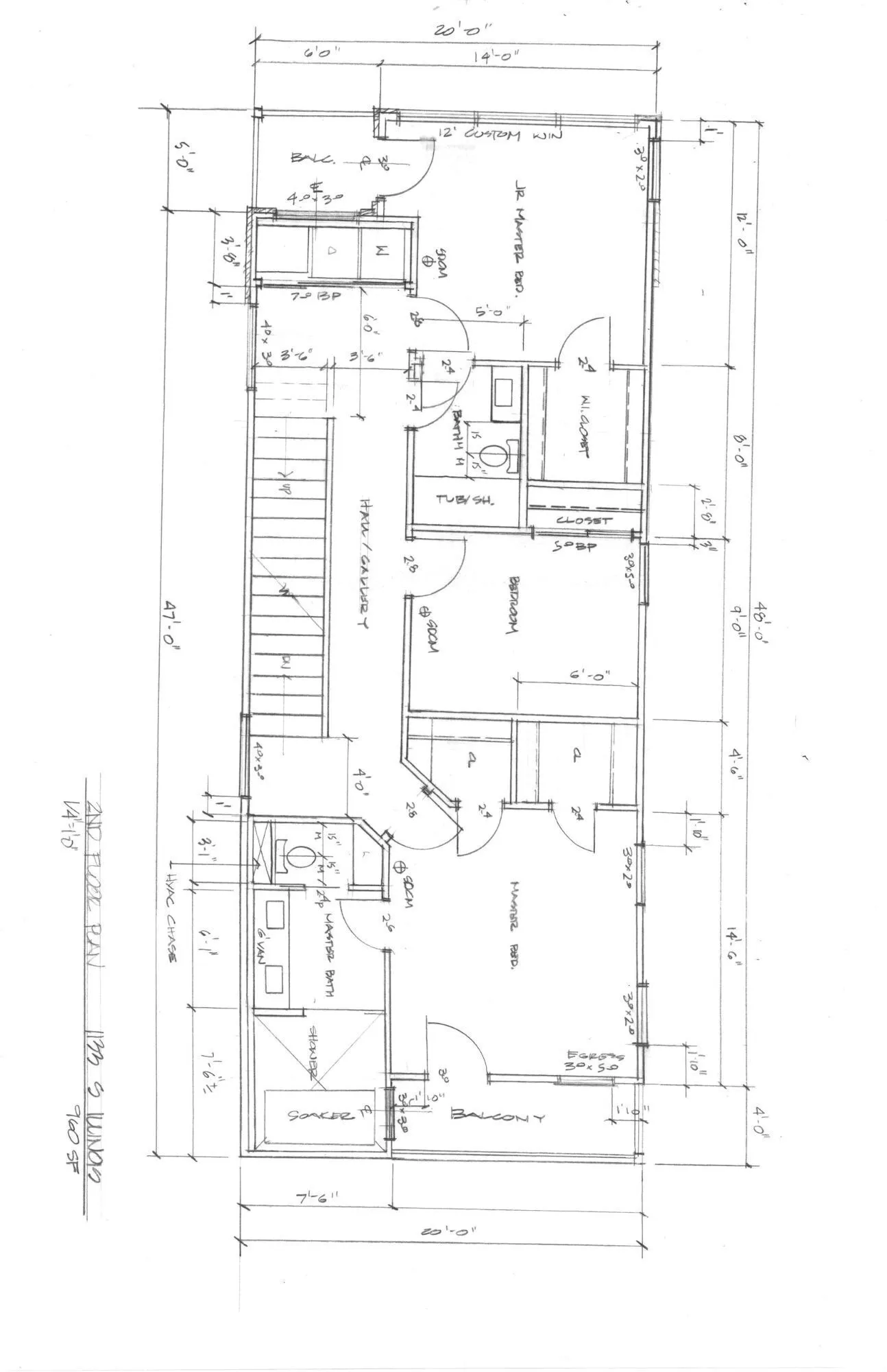
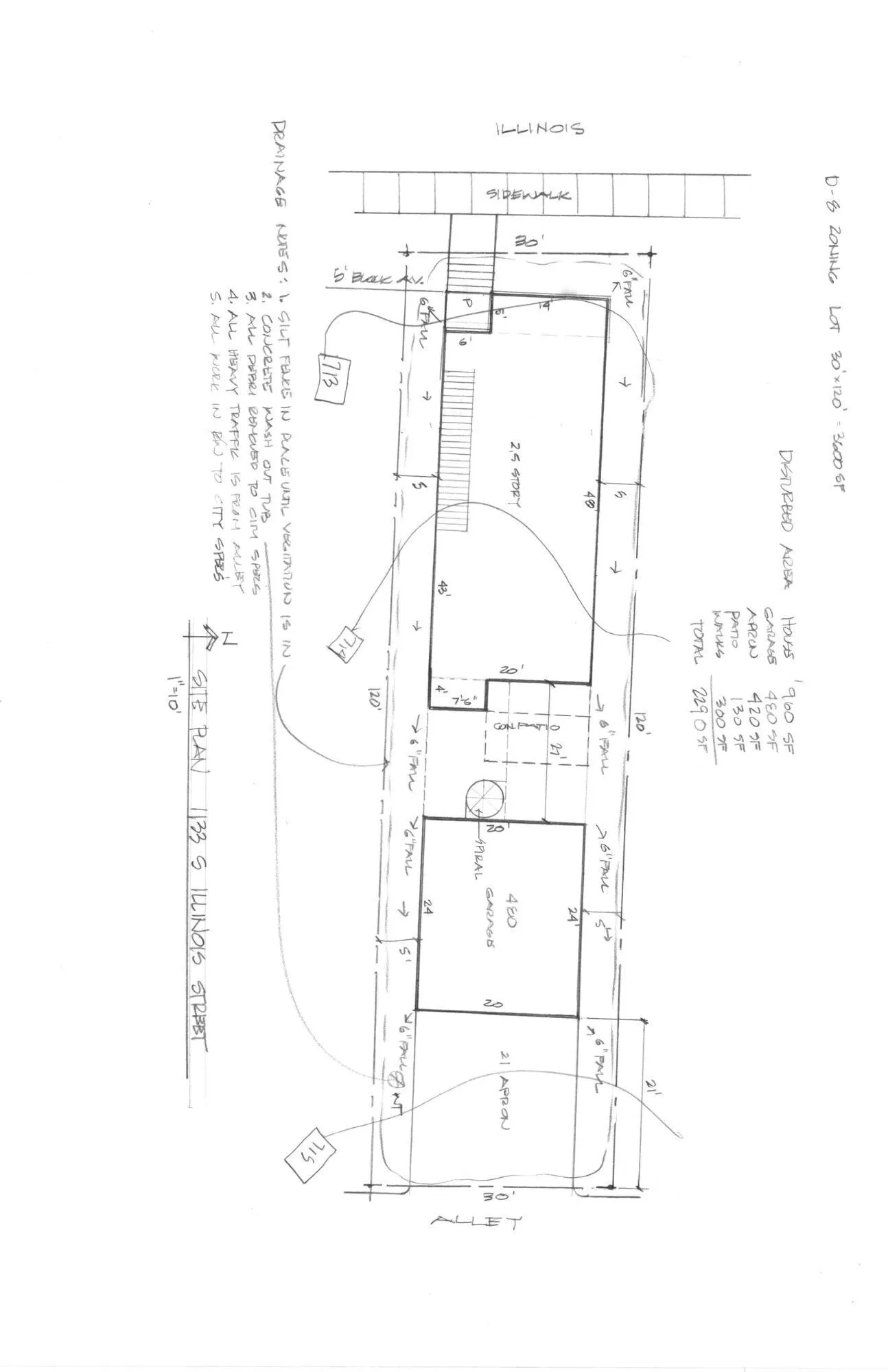
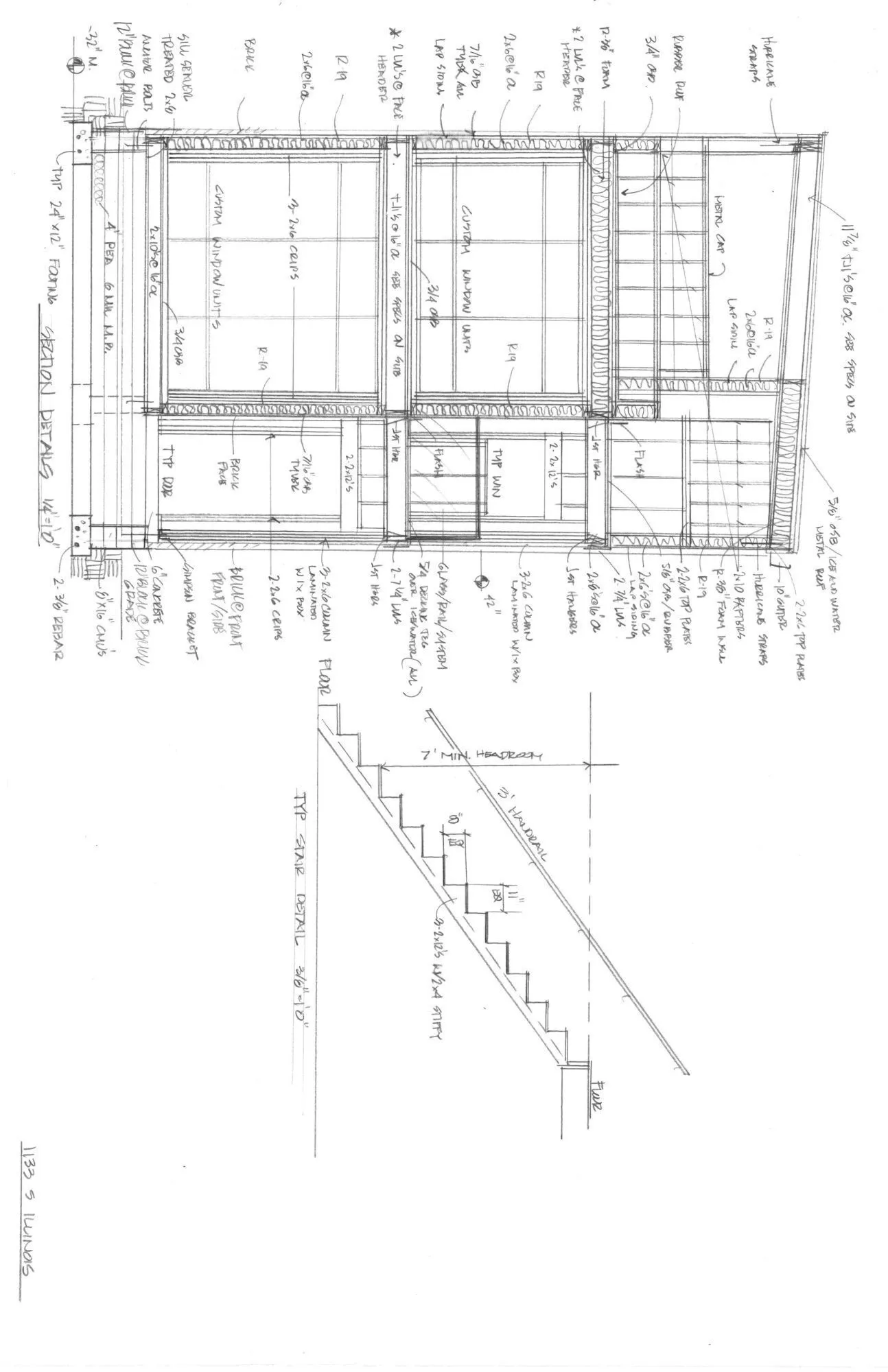
Opportunity is knocking in the heart of Indy! This 30′ x 120′ lot is perfectly positioned on the outer edge of downtown-just minutes from Lucas Oil Stadium, major highways, and all the energy of the city. The site already offers electric and water hookups, with existing utility connections from a previous home-making your build simpler and more cost-efficient. Included are architectural plans, city-reviewed renderings, and pre-approved designs for a rooftop deck, offering stunning east-to-west skyline views once completed. The city has already reviewed the plans and requested no revisions, streamlining your path from concept to construction. Whether you’re an investor, builder, or dreamer looking to create a modern home or income-producing property, this lot delivers a rare combination of location, readiness, and potential in one of Indianapolis’s most dynamic growth areas. Your vision starts here. Don’t miss this chance to bring it to life. *Please see attached architectural rendurings and plans that are included with the lot*

  • Address: 1133 S Illinois Street
  • City: Indianapolis
  • State/county: IN
  • Zip/Postal Code: 46225

Details

Updated on November 28, 2025 at 10:38 pm
  • Property ID 22067070
  • Price $49,900
  • Land Area 0.08 Acres
  • Garage Size x x
  • Property Type Residential Lots, Land
  • Property Status Closed

Additional details

  • Listing Terms Not Applic
  • Sewer Public Sewer
  • County Marion
  • Property Type Land

Mortgage Calculator

Contact Information

View Listings
Preeti Chaggar

Enquire About This Property

0 Review

Sort by:
Leave a Review

Leave a Review

Compare listings

Compare