3850 Glenview Drive, Indianapolis, IN 46240
  • $785,000
  • $795,000

Description

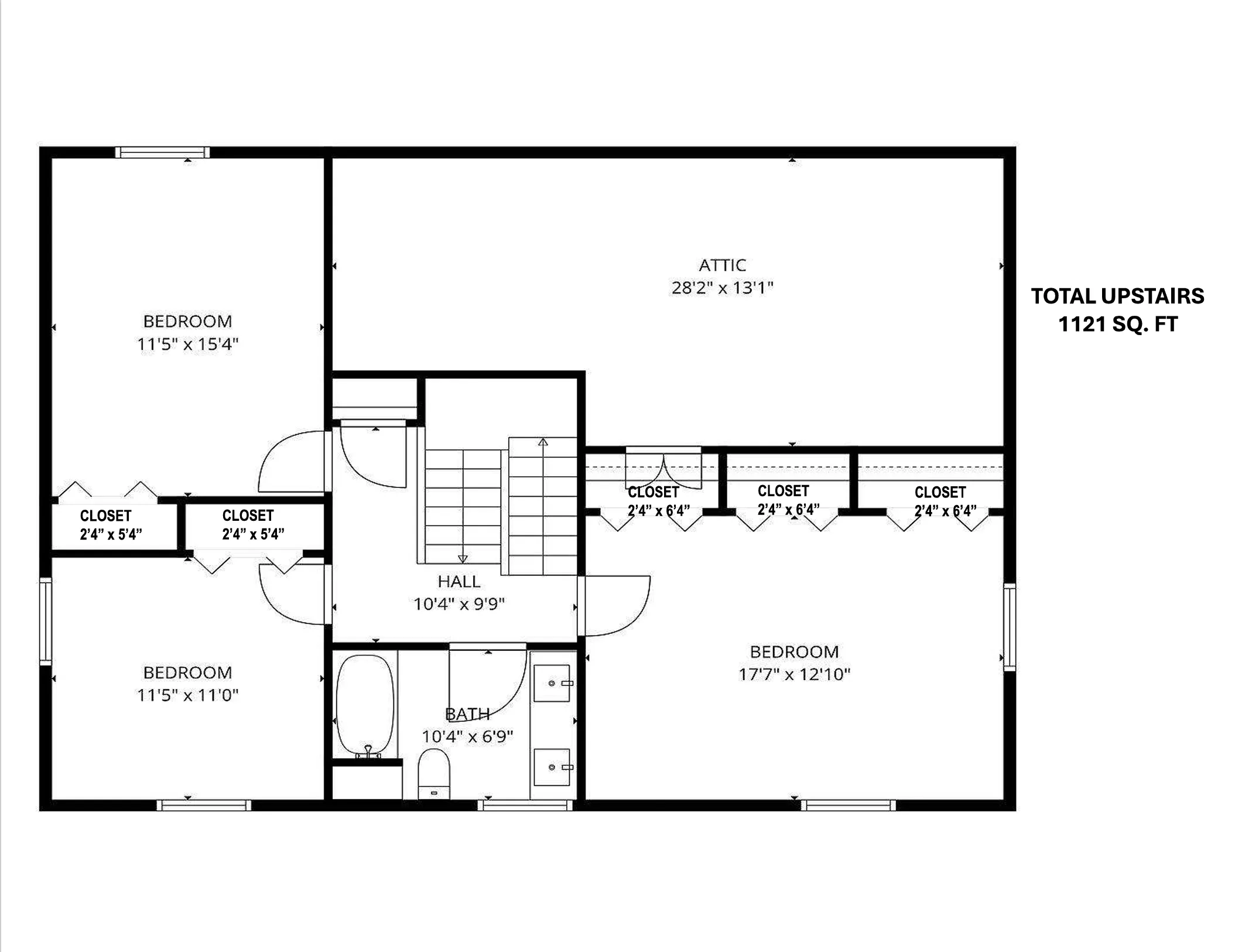
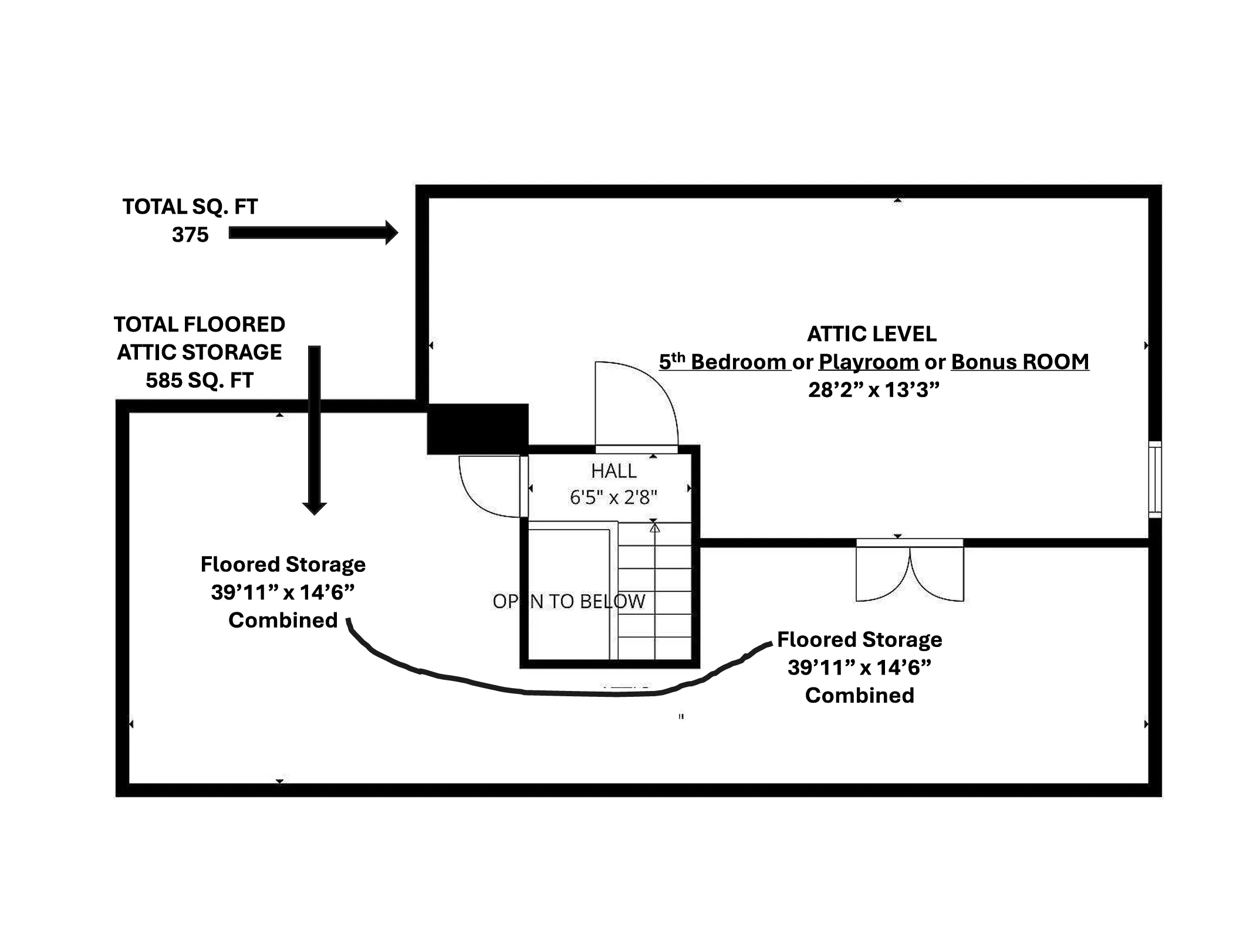
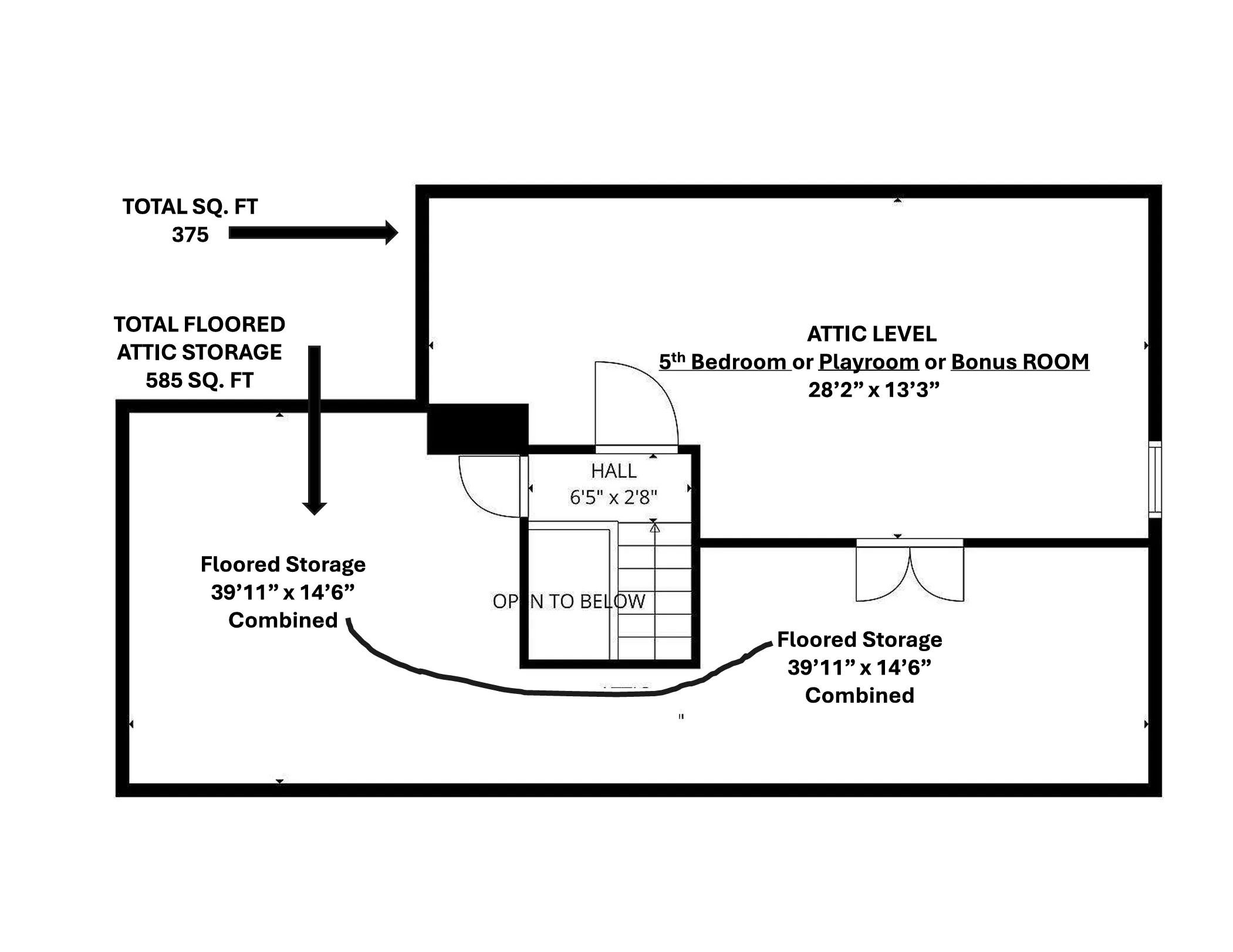
Nestled in the coveted Sweetwater Estates neighborhood, this renovated American traditional home has been transformed into a stylish, move-in-ready modern residence. Taken down to the studs, almost every detail has been thoughtfully re-imagined, expanding the home to over 2,700 finished square feet. The open floor plan features 5 bedrooms, 2.5 bathrooms, and abundant storage throughout. The main level showcases a spacious living and dining area flowing seamlessly into a stunning chef’s kitchen-complete with a large island, quartz countertops, custom cabinetry, designer lighting, and all-new appliances. Adjacent to the kitchen is a convenient mudroom area with built-in storage cubbies and separate laundry room. The private primary suite occupies its own level, featuring a generous bedroom, walk-in shower, and double-sink powder area. The upper floor includes three additional bedrooms, a full bath, and a versatile fifth bedroom or bonus room/playroom. The lower level offers a cozy family room with custom built-ins, a fireplace, and sliding glass doors leading to a covered patio and spacious backyard-perfect for relaxing or entertaining. Located in one of Washington Township’s most desirable, tree-lined neighborhoods, this home combines modern comfort with timeless charm.

  • Address: 3850 Glenview Drive
  • City: Indianapolis
  • State/county: IN
  • Zip/Postal Code: 46240

Details

Updated on April 27, 2026 at 3:36 pm
  • Property ID 22072585
  • Price $785,000
  • Property Size 4227 Sqft
  • Land Area 0.47 Acres
  • Bedrooms 5
  • Rooms 10
  • Bathrooms 3
  • Garages 2
  • Garage Size x x
  • Year Built 1960
  • Property Type Single Family Residence, Residential
  • Property Status Active

Additional details

  • Cooling Central Air
  • Heating Natural Gas
  • County Marion
  • Property Type Residential
  • Parking Attached
  • Architectural Style Traditional

Mortgage Calculator

Contact Information

View Listings
Preeti Chaggar

Enquire About This Property

0 Review

Sort by:
Leave a Review

Leave a Review

Compare listings

Compare