• Property Type
  • Single Family Residence, Residential
  • 3
  • Bedrooms
  • 2
  • Bathrooms
  • 1
  • Garage
  • 1440 Sqft
  • Area Size
2959 N Lasalle Street, Indianapolis, IN 46218
  • $225,000
  • $225,000

Description

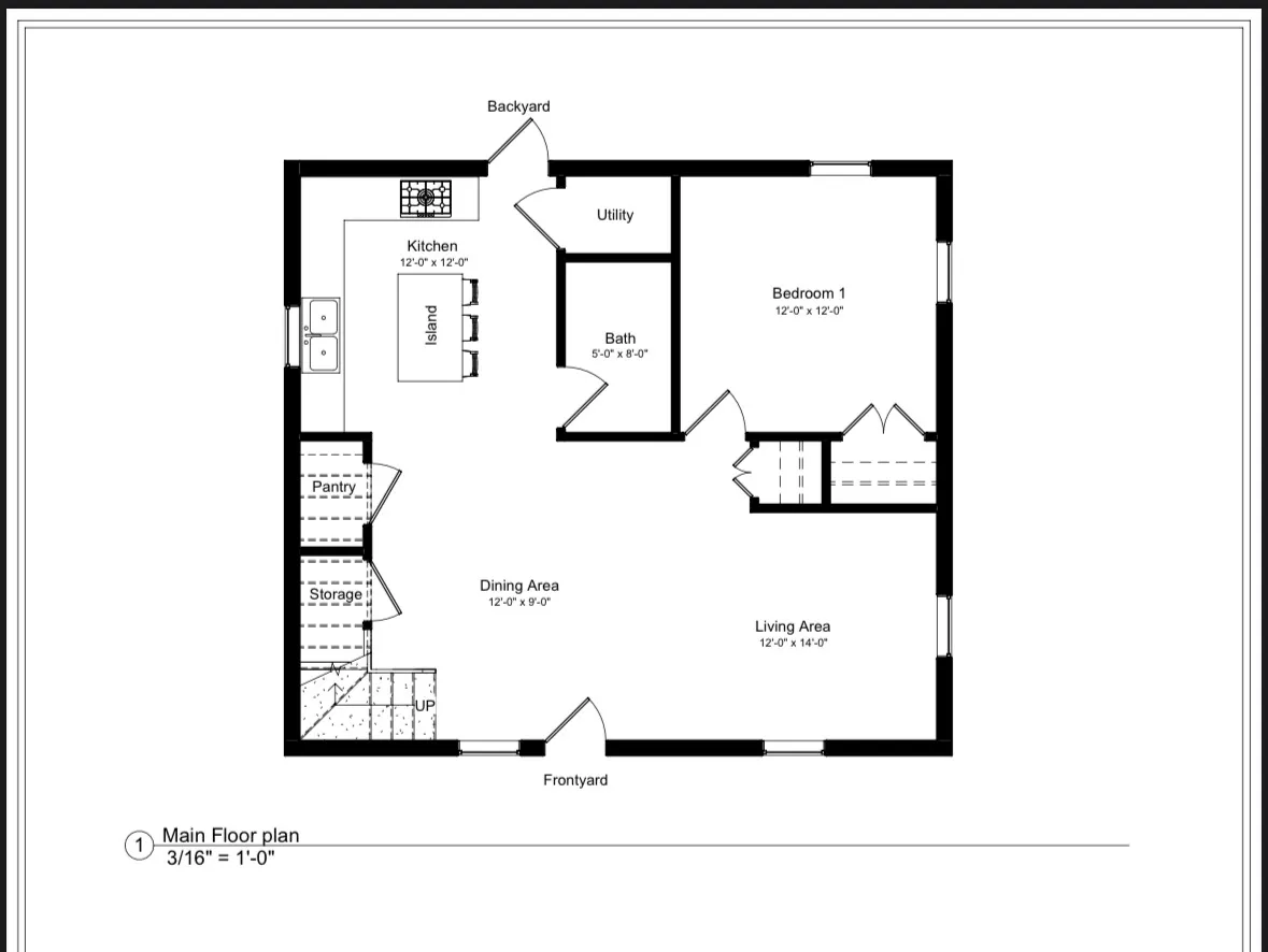
Experience the benefits of brand-new construction with this home featuring 3 bedrooms, 2 full baths, and a versatile loft with approximately 1,440 square feet of living space. The floor plan is thoughtfully designed to maximize space and functionality. The primary bedroom is located on the main level, with two additional bedrooms, a spacious loft, and an upstairs laundry room offering added convenience. The main level offers an open-concept layout with a kitchen that includes an island, ideal for everyday living and entertaining. Exterior features include a covered front porch, expansive rear patio, detached garage, and fully fenced front and back yard. Conveniently located minutes from downtown, restaurants, parks, and public transportation. Home is walkable to the newly renovated Washington Park and situated on the bus line. Home is currently under construction. Photos are renderings and virtually staged to illustrate proposed finishes and design. Some finishes may vary. Room sizes are approximate. Estimated completion date is January 31.

  • Address: 2959 N Lasalle Street
  • City: Indianapolis
  • State/county: IN
  • Zip/Postal Code: 46218

Details

Updated on February 4, 2026 at 4:18 pm
  • Property ID 22077234
  • Price $225,000
  • Property Size 1440 Sqft
  • Land Area 0.12 Acres
  • Bedrooms 3
  • Rooms 8
  • Bathrooms 2
  • Garage 1
  • Garage Size x x
  • Year Built 1951
  • Property Type Single Family Residence, Residential
  • Property Status Hold

Additional details

  • Cooling Central Air
  • Heating Forced Air
  • County Marion
  • Property Type Residential
  • Parking Detached
  • Architectural Style Traditional

Mortgage Calculator

Contact Information

View Listings
Preeti Chaggar

Enquire About This Property

0 Review

Sort by:
Leave a Review

Leave a Review

Compare listings

Compare