12214 Ridgeside Road, Indianapolis, IN 46256
  • $800,000
  • $825,000

Description

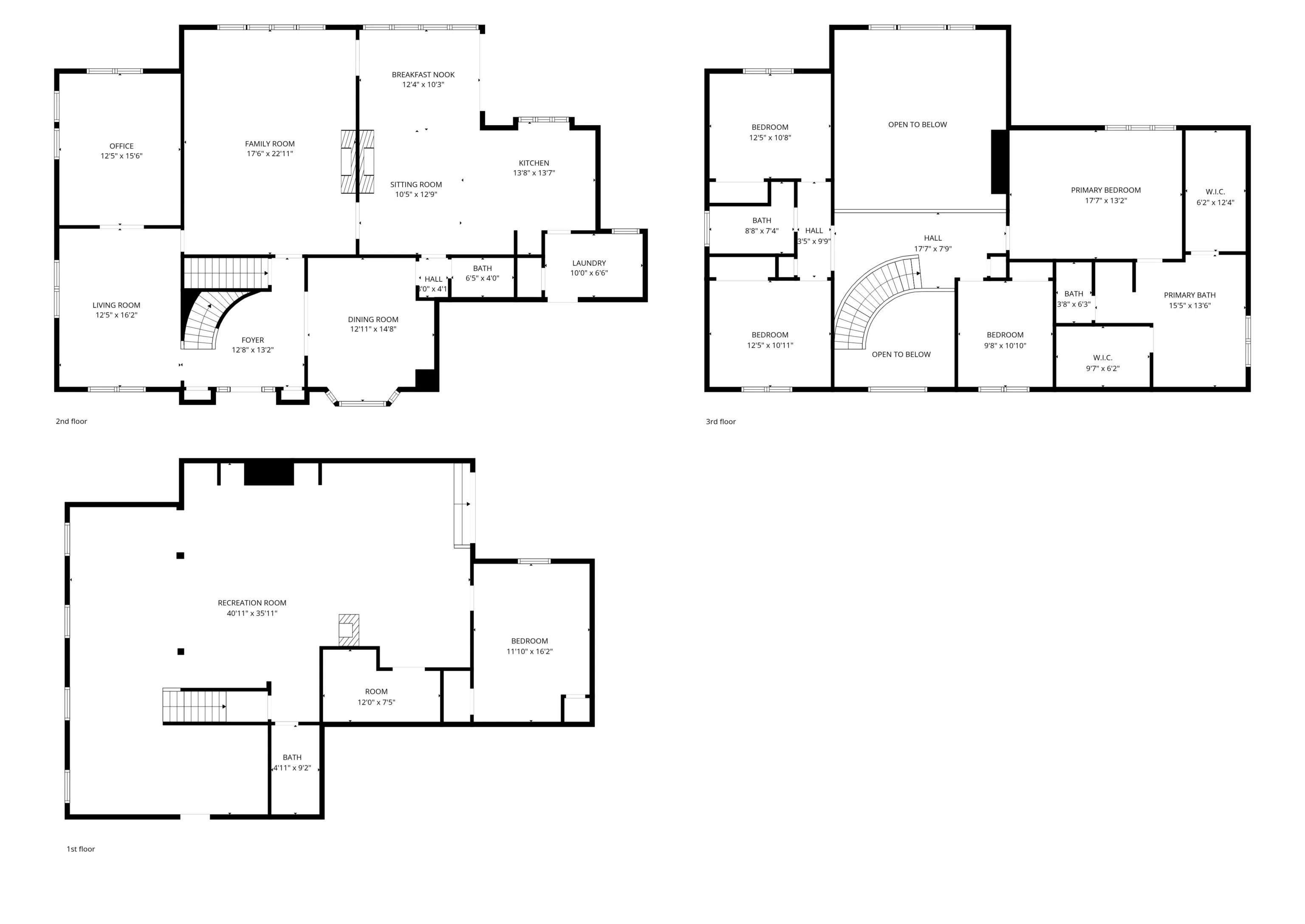
Welcome home! HSE Schools! Set on a private, wooded half-acre, this refined two-story residence offers an exceptional blend of elegance, comfort, and location. The thoughtfully designed floor plan features 5 bedrooms, 3.5 baths, and a fully finished walk-out basement-ideal for both sophisticated entertaining and everyday living. A grand foyer opens to a sun-filled main level with formal dining, an open-concept kitchen anchored by a striking dual-sided fireplace, multiple living areas, and a custom-built office or flex space. Expansive windows frame serene backyard views, enhancing the home’s light-filled, upscale ambiance. The upper level hosts four bedrooms, including a luxurious primary suite with dual walk-in closets, double vanities, and an oversized soaking tub. The walk-out basement extends the living experience with a fifth bedroom, full bath, and a stylish bar/media area. Recent updates include a new roof and gutters, updated appliances, fresh interior paint, basement flooring, and a new sump pump. Just steps from Geist Marina, dining, and waterfront amenities, this home delivers privacy, luxury, and lifestyle in one exceptional offering.

  • Address: 12214 Ridgeside Road
  • City: Indianapolis
  • State/county: IN
  • Zip/Postal Code: 46256

Details

Updated on April 2, 2026 at 12:48 pm
  • Property ID 22079072
  • Price $800,000
  • Property Size 4845 Sqft
  • Land Area 0.51 Acres
  • Bedrooms 5
  • Rooms 13
  • Bathrooms 4
  • Garages 3
  • Garage Size x x
  • Year Built 1995
  • Property Type Single Family Residence, Residential
  • Property Status Closed

Additional details

  • Association Fee 841
  • Utilities Cable Connected
  • Cooling Central Air
  • Heating Forced Air,Natural Gas
  • County Hamilton
  • Property Type Residential
  • Parking Attached
  • Elementary School Geist Elementary School
  • Middle School Fall Creek Junior High
  • High School Hamilton Southeastern HS
  • Architectural Style Contemporary

Mortgage Calculator

Video

360° Virtual Tour

Contact Information

View Listings
Preeti Chaggar

Enquire About This Property

0 Review

Sort by:
Leave a Review

Leave a Review

Compare listings

Compare