15588 E 136th Street, Fishers, IN 46037
  • $345,000
  • $345,000

Description

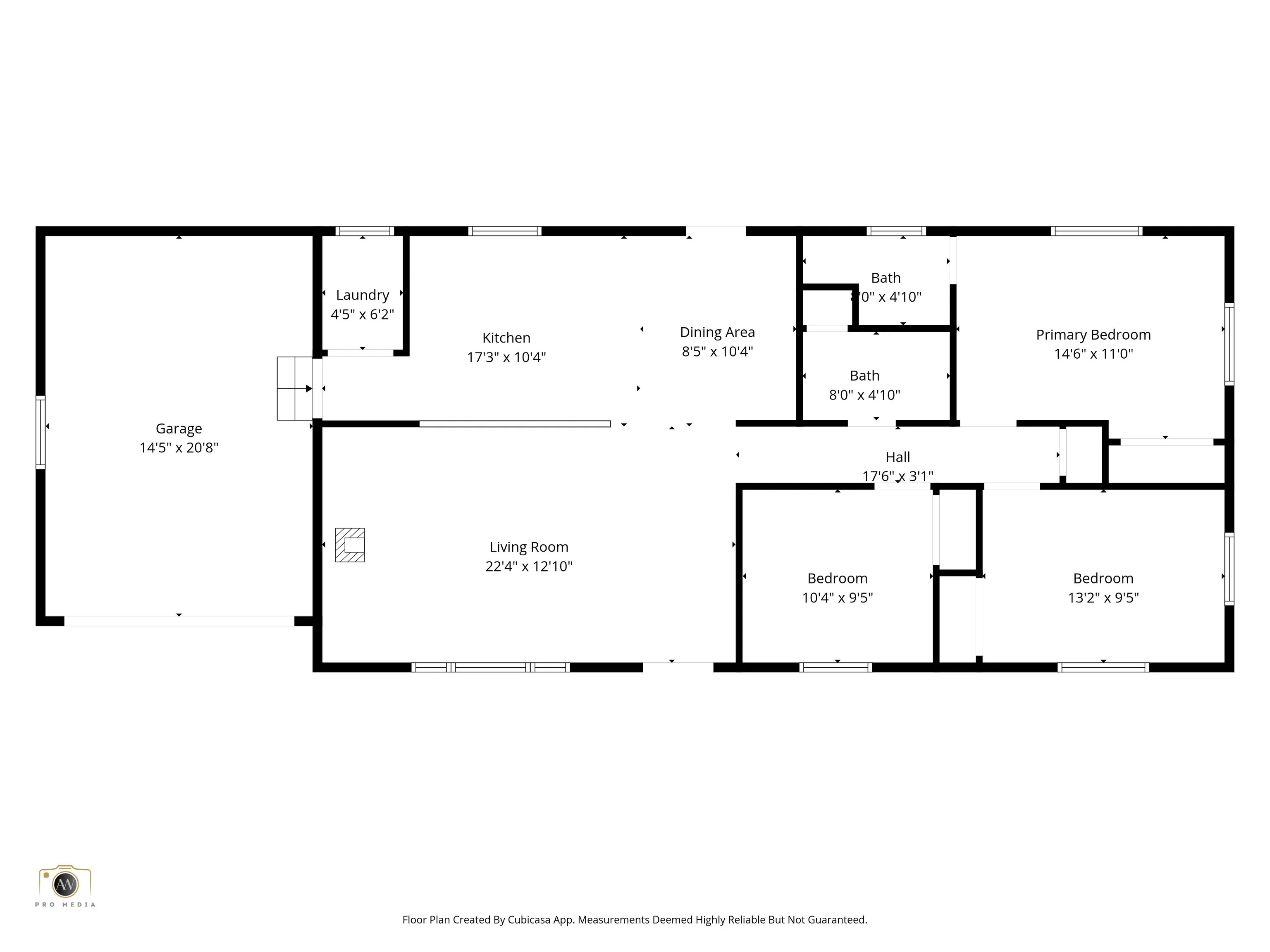
Don’t miss this 3 bedroom brick ranch on a huge lot in Fishers with no HOA! Step inside to a large living room with a picture window that floods the space with natural light. The cozy kitchen affords space for a dining area at one end, and opens onto the deck in the backyard. The full bathroom has been tastefully updated with new fixtures and shower enclosure. In recent years, an air handler and ductwork were added to the attic and a heat pump was installed to provide central heating and cooling. The water heater, softener, and well pressure tank have all been replaced within the last 5-6 years so you have peace of mind when it comes to the mechanicals. The backyard is truly an oasis with a large deck in the center of a fenced in area, perfect for pets. The property extends beyond the fence and into the woods, allowing plenty of space for gardening, recreation, or an additional structure. Bring your vision and make this home yours today.

  • Address: 15588 E 136th Street
  • City: Fishers
  • State/county: IN
  • Zip/Postal Code: 46037
  • Area: No Subdivision

Details

Updated on April 2, 2026 at 1:01 am
  • Property ID 22086084
  • Price $345,000
  • Property Size 1250 Sqft
  • Land Area 1.35 Acres
  • Bedrooms 3
  • Rooms 6
  • Bathrooms 2
  • Garage 1
  • Garage Size x x
  • Year Built 1976
  • Property Type Single Family Residence, Residential
  • Property Status Closed

Additional details

  • Cooling Heat Pump
  • Heating Forced Air,Heat Pump
  • County Hamilton
  • Property Type Residential
  • Parking Attached
  • Elementary School Fall Creek Elementary School
  • Middle School Fall Creek Junior High
  • High School Hamilton Southeastern HS
  • Architectural Style Ranch

Mortgage Calculator

Contact Information

View Listings
Preeti Chaggar

Enquire About This Property

0 Review

Sort by:
Leave a Review

Leave a Review

Compare listings

Compare