11141 Craycroft Court, Fishers, IN 46038
  • $500,000
  • $500,000

Description

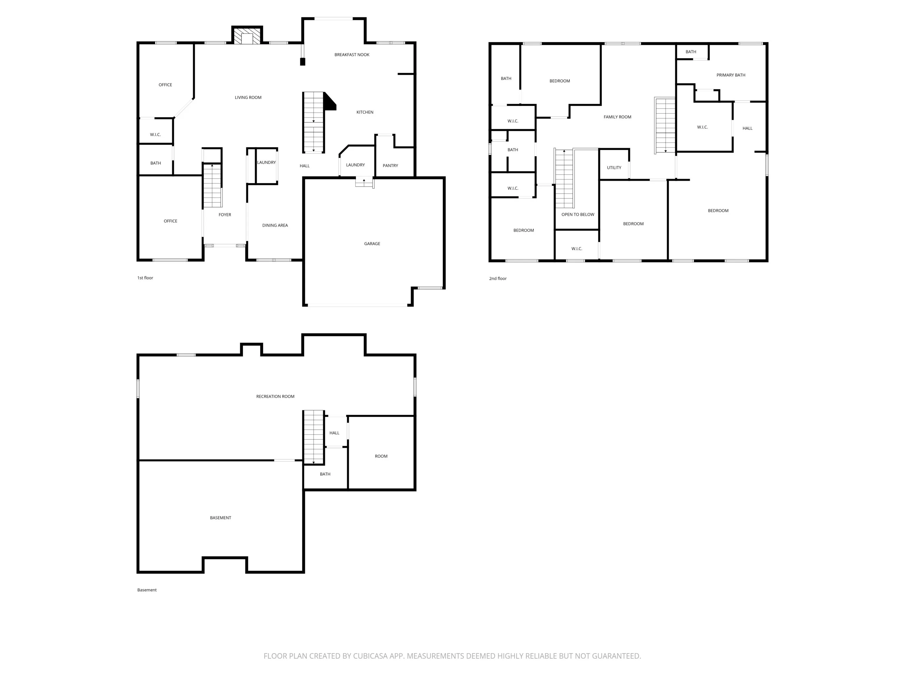
Welcome to this spacious home in one of Fishers’ most convenient locations, offering easy access to shopping, dining, parks, schools, and everyday amenities. Tucked into the desirable Sedona neighborhood, this home combines a great location with the room and flexibility today’s buyers are looking for. Inside, the main level features multiple living spaces, including a large family room with fireplace, formal dining room, and flexible office or sitting areas, giving everyone space to spread out. The kitchen offers white cabinetry, stainless steel appliances, a center island, walk-in pantry, and breakfast area with access to the back deck and patio. Upstairs, the oversized loft creates yet another versatile living space, perfect for a homework zone, media area, or playroom. The spacious primary suite includes a large walk-in closet with dressing area and en-suite bath with dual vanities, garden tub, and separate shower. There is a second bedroom with private en-suite on the second floor as well making it a great option for guests. The finished basement adds even more usable square footage, including a bonus room that could easily function as a 6th bedroom, guest space, workout room, or hobby area. Outside, enjoy the beautifully landscaped backyard with deck, patio, and fire pit, ideal for relaxing or entertaining.

  • Address: 11141 Craycroft Court
  • City: Fishers
  • State/county: IN
  • Zip/Postal Code: 46038

Details

Updated on April 17, 2026 at 10:33 pm
  • Property ID 22093433
  • Price $500,000
  • Property Size 5553 Sqft
  • Land Area 0.27 Acres
  • Bedrooms 5
  • Rooms 14
  • Bathrooms 5
  • Garages 2
  • Garage Size x x
  • Year Built 2005
  • Property Type Single Family Residence, Residential
  • Property Status Active

Additional details

  • Association Fee 712
  • Utilities Cable Available,Natural Gas Available,Sewer Connected,Water Connected
  • Cooling Central Air
  • Heating Forced Air,Natural Gas
  • County Hamilton
  • Property Type Residential
  • Parking Attached
  • Elementary School Sand Creek Elementary
  • High School Fishers High School
  • Architectural Style Traditional

Features

Mortgage Calculator

Video

360° Virtual Tour

Contact Information

View Listings
Preeti Chaggar

Enquire About This Property

0 Review

Sort by:
Leave a Review

Leave a Review

Compare listings

Compare