14386 Sherbrooke Drive, Mc Cordsville, IN 46055
  • $450,000
  • $450,000

Description

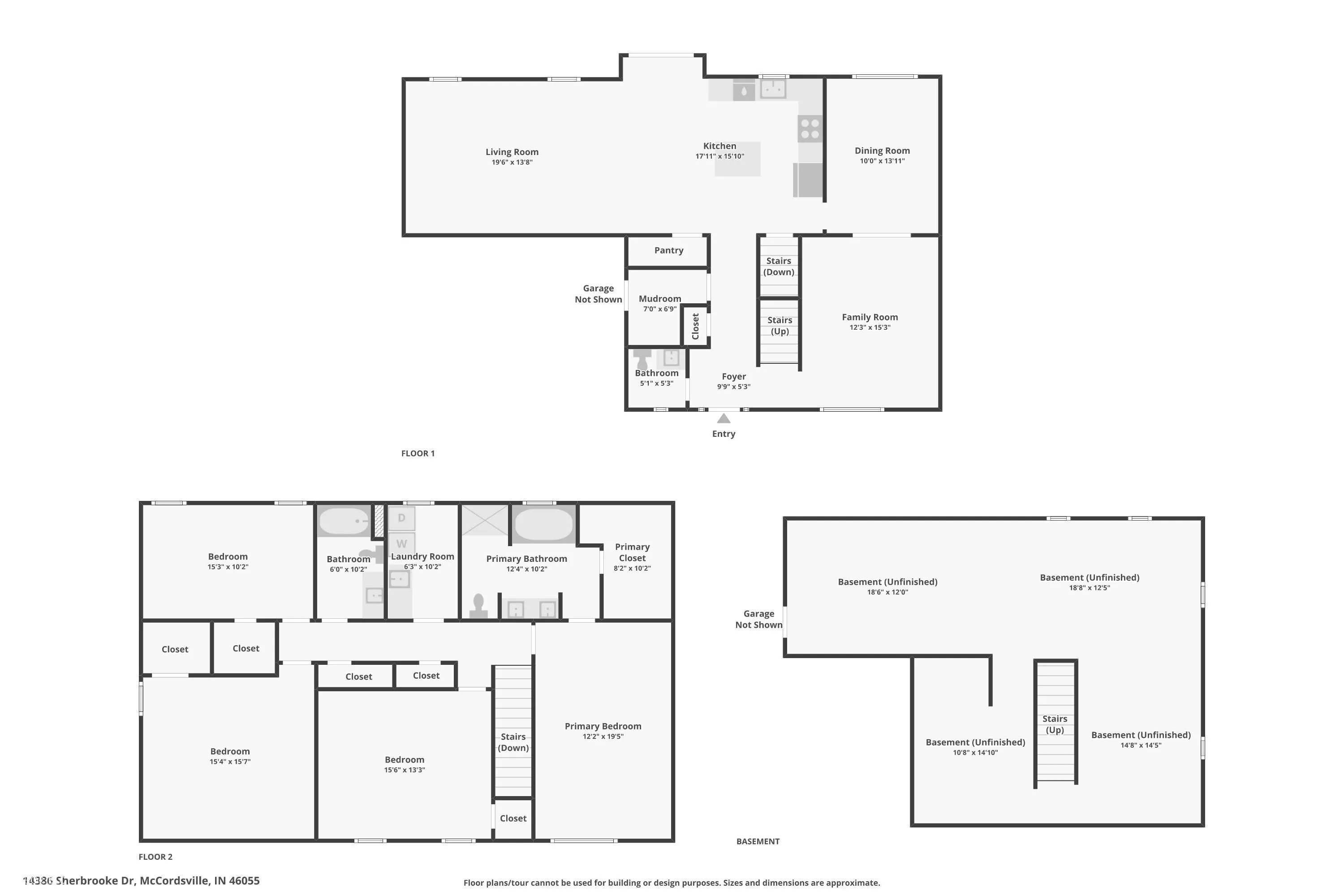
If you’re looking for a move in ready home, look no further! This two story home features a full basement and 3 car garage. Step inside the home from the covered front porch to find to find LVP floors and a dramatic staircase with wrought iron spindles. Main level features 9 foot ceilings, a carpeted family room on the front of the home and large family room with gas fireplace overlooking the backyard. Kitchen has solid surface countertops, tile backsplash, pantry with plenty of storage and a large center island. Two dining options are nearby with the breakfast room and formal dining. Also on this level is a half bath conveniently located for guests. Head upstairs to find 4 nicely sized bedrooms all with walk in closets. Primary bath features a double sink vanity, glass door shower and soaking tub. Second full bath is located near the other bedrooms. Laundry room is also centrally located on the second floor near the bedrooms. The basement on this house offers a world of possibilities. It features soaring ceilings, roughed in plumbing for a full bath and a partially finished bonus room. Updated concrete patio overlooks the fenced backyard. 3 car garage offers plenty of room for parking, toys and storage. All of this in a convenient location near all that the Geist area has to offer and award winning HSE schools. Come take a look today!

  • Address: 14386 Sherbrooke Drive
  • City: Mc Cordsville
  • State/county: IN
  • Zip/Postal Code: 46055

Details

Updated on April 18, 2026 at 4:39 pm
  • Property ID 22095811
  • Price $450,000
  • Property Size 3896 Sqft
  • Land Area 0.24 Acres
  • Bedrooms 4
  • Rooms 11
  • Bathrooms 3
  • Garages 3
  • Garage Size x x
  • Year Built 2007
  • Property Type Single Family Residence, Residential
  • Property Status Active

Additional details

  • Association Fee 350
  • Utilities Cable Available,Natural Gas Connected
  • Cooling Central Air
  • Heating Forced Air,Natural Gas
  • County Hamilton
  • Property Type Residential
  • Parking Attached
  • Elementary School Geist Elementary School
  • Middle School Fall Creek Junior High
  • High School Hamilton Southeastern HS
  • Architectural Style Traditional

Mortgage Calculator

Video

360° Virtual Tour

Contact Information

View Listings
Preeti Chaggar

Enquire About This Property

0 Review

Sort by:
Leave a Review

Leave a Review

Compare listings

Compare