200 E South Street, Winchester, IN 47394
  • $234,999
  • $234,999

Description

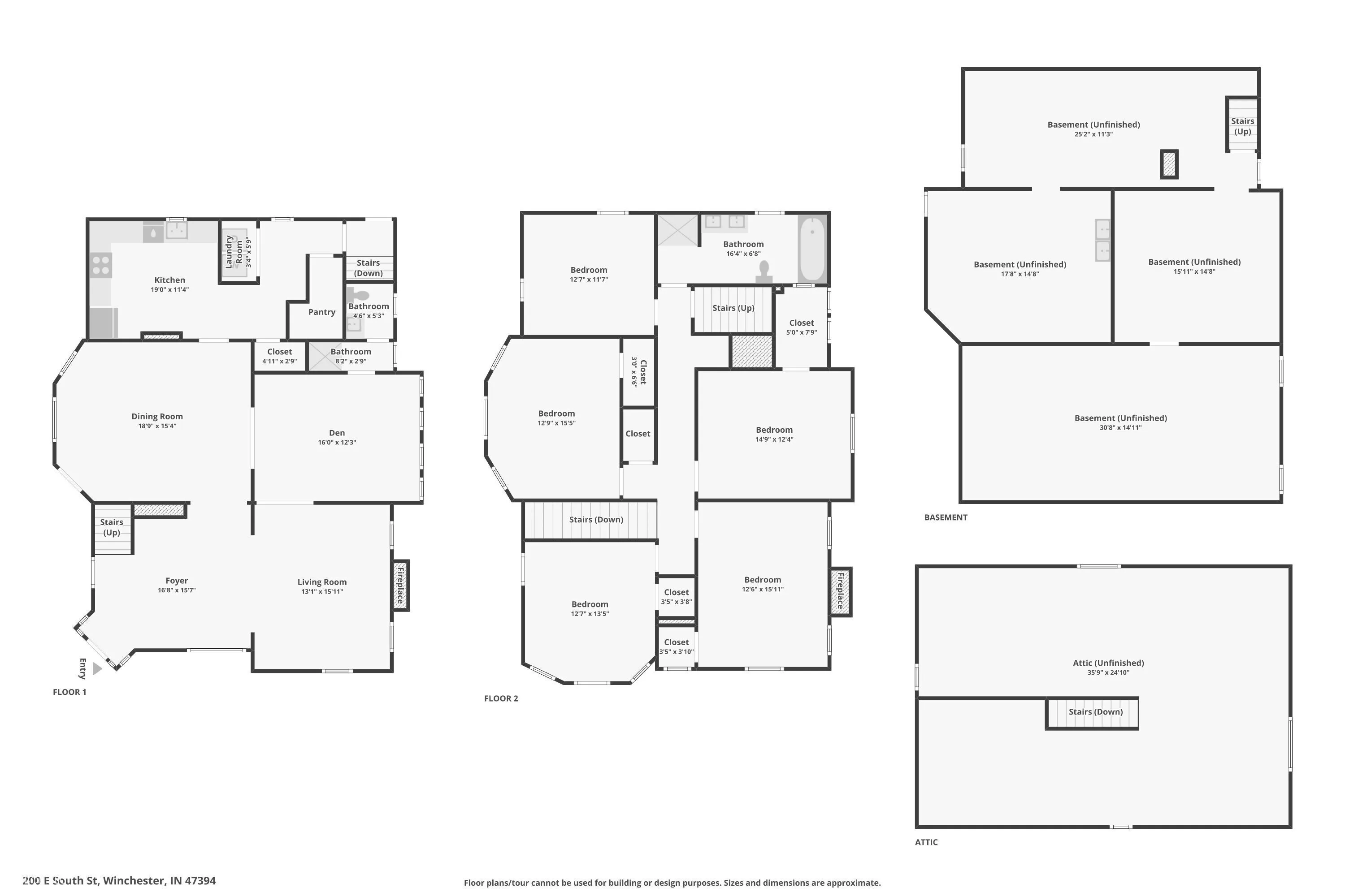
Make the discovery! Looking for all the character of an older home with all the newer updates? This is the one! You won’t find another one like it! This 5 Bed, 2 Bath home has a full unfinished basement and unfinished attic with a permanent staircase offering a blank canvas to significantly increase your square footage, over 5,000 total sqft! Multiple updates have been done, and care taken to restore this home back to its original beauty while adding the updates to truly make it a functional beauty! Home sits on a corner lot with a stairway entrance to the front gate where you will walk up to the gorgeous wrap around porch. Walk into the front door you are greeted by the stunning foyer with original hardwood floors, pristine quarter-sawn millwork and a grand staircase. The hardwood floors are featured throughout the home, kitchen and bathrooms have been updated with new flooring. Lead glass windows beam with character throughout this home as well. Home features two original fireplaces with gorgeous mirror mantles. Built in hutch in dining room and original pocket doors as well! There are two staircases that lead to the second level. Plenty of closet space including pantry in kitchen. This home was renovated to be lived in, not just sold. This is your opportunity to own a beautiful piece of history with room for everyone!

  • Address: 200 E South Street
  • City: Winchester
  • State/county: IN
  • Zip/Postal Code: 47394
  • Area: 106 North

Details

Updated on April 23, 2026 at 1:27 pm
  • Property ID 22097104
  • Price $234,999
  • Property Size 4280 Sqft
  • Land Area 0.18 Acres
  • Bedrooms 5
  • Rooms 3
  • Bathrooms 2
  • Garages 2
  • Garage Size x x
  • Year Built 1908
  • Property Type Single Family Residence, Residential
  • Property Status Active

Additional details

  • Cooling Central Air
  • Heating Forced Air
  • County Randolph
  • Property Type Residential
  • Parking Detached
  • Elementary School O R Baker Elementary School
  • Middle School Lee L Driver Middle School
  • High School Winchester Community High School
  • Architectural Style Victorian

Mortgage Calculator

360° Virtual Tour

Contact Information

View Listings
Preeti Chaggar

Enquire About This Property

0 Review

Sort by:
Leave a Review

Leave a Review

Compare listings

Compare