9278 E Cooper Road, Morgantown, IN 46160
  • $585,000
  • $585,000

Description

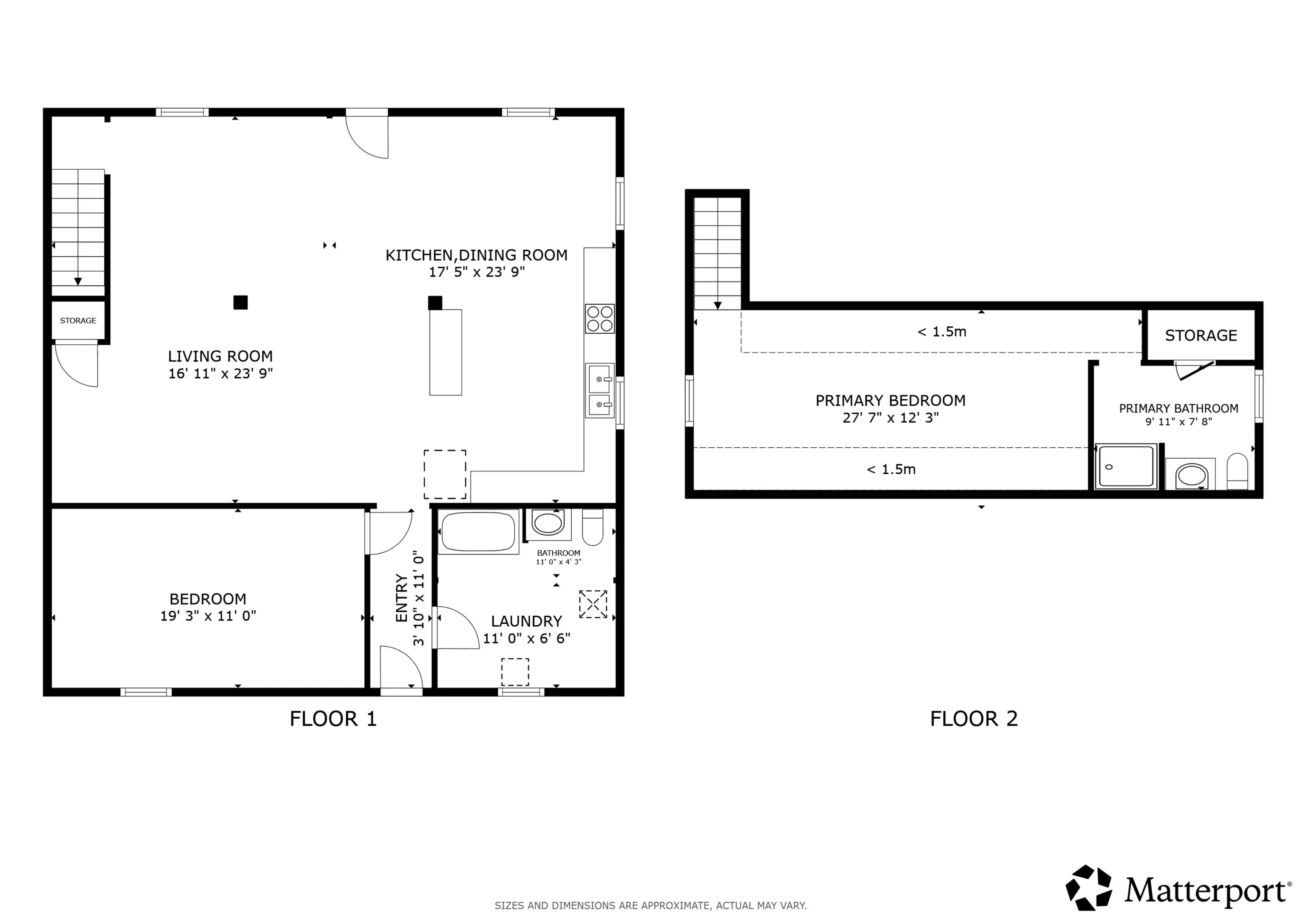
Escape to peaceful country living with this unique pole barn-style home set on 10 scenic acres featuring wooded areas, a small pond, and a creek with a tractor-access bridge. Built with quality craftsmanship, this energy-efficient home offers exceptionally low utility costs thanks to spray foam-insulated walls and 4″ foam in the rafters. Stay cozy year-round with a wood stove. Inside, you’ll find an inviting open floor plan with a spacious main-level bedroom and a private primary suite upstairs complete with an en-suite bath. Relax and take in the surroundings from the large front porch. This property is ideal for those seeking a farm or homestead lifestyle. Equestrian and agricultural features include a 30×40 pole barn for storage, a 3-stall horse barn with hay loft and tack area, multiple fenced pastures (including approximately 1/2-acre, 1/4-acre, and 2-acre sections), a round pen for training, a run-in shelter, and a turnout area attached to the barn. A charming chicken coop makes raising fresh eggs easy, while the livestock barn-constructed with beautifully milled Amish wood-adds both function and character. Approximately one acre is tillable, and four acres include a creek, providing diverse land use opportunities. The property also features established fruit plantings, including a Golden Cling peach tree, Honeycrisp apple tree, and two blueberry bushes. Whether you’re looking to start a hobby farm, enjoy equestrian pursuits, or simply unwind in a private rural setting, this versatile property offers endless possibilities.

  • Address: 9278 E Cooper Road
  • City: Morgantown
  • State/county: IN
  • Zip/Postal Code: 46160
  • Area: No Subdivision

Details

Updated on April 29, 2026 at 8:01 pm
  • Property ID 22097942
  • Price $585,000
  • Property Size 2592 Sqft
  • Land Area 10 Acres
  • Bedrooms 2
  • Rooms 5
  • Bathrooms 2
  • Garages 4
  • Garage Size x x
  • Year Built 2020
  • Property Type Single Family Residence, Residential
  • Property Status Active

Additional details

  • Cooling Wall Unit(s)
  • Heating Radiant Floor,Wood
  • County Morgan
  • Property Type Residential
  • Parking Detached
  • Elementary School Indian Creek Elementary School
  • Middle School Indian Creek Middle School
  • High School Indian Creek Sr High School
  • Architectural Style Traditional

Mortgage Calculator

360° Virtual Tour

Contact Information

View Listings
Preeti Chaggar

Enquire About This Property

0 Review

Sort by:
Leave a Review

Leave a Review

Compare listings

Compare