2
  • Property Type
  • Single Family Residence, Residential
  • 3
  • Bedrooms
  • 4
  • Bathrooms
  • 1
  • Garage
  • 2642 Sqft
  • Area Size
7839 E Tc Steele Vista , Waveland, IN 47989
  • $690,000

Description

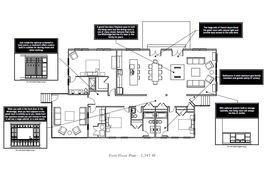
New construction at the Lakeside Village of Byron, a renowned development with luxury lakeside homes constructed in the modern farmhouse architectural style and modern features throughout. The “Whittredge B” model features over 2,000 sq. ft., 3 bedroom 3 1/2 bathroom open-concept living area with soaring ceilings. Family room features custom-built fireplace and kitchen has a beautiful center island. Master suite on main level. Large back porch can be screened. Take advantage of all the community amenities-fire pit, boat dock, walking trails, beach, swimming, water skiing, kayaking, fishing, & more-aswell as the nature just outside your door. Enjoy your home full-time or as a weekend retreat. Choose from many desirable lots.

  • Address: 7839 E Tc Steele Vista
  • City: Waveland
  • State/county: IN
  • Zip/Postal Code: 47989

Details

Updated on May 7, 2025 at 10:18 pm
  • Property ID 21637787
  • Price $690,000
  • Property Size 2642 Sqft
  • Land Area 0.21 Acres
  • Bedrooms 3
  • Rooms 10
  • Bathrooms 4
  • Garage 1
  • Garage Size x x
  • Year Built 2019
  • Property Type Single Family Residence, Residential
  • Property Status Expired

Additional details

  • Association Fee 915
  • Heating Forced Air,Natural Gas
  • County Parke
  • Property Type Residential
  • Parking Detached
  • High School Riverton Parke Jr-Sr High School
  • Waterfront Water View
  • Architectural Style Farmhouse

Mortgage Calculator

Contact Information

View Listings
Preeti Chaggar

Enquire About This Property

0 Review

Sort by:
Leave a Review

Leave a Review

Compare listings

Compare