2803 E 56th Street, Indianapolis, IN 46220
  • $349,990
  • $349,990

Description

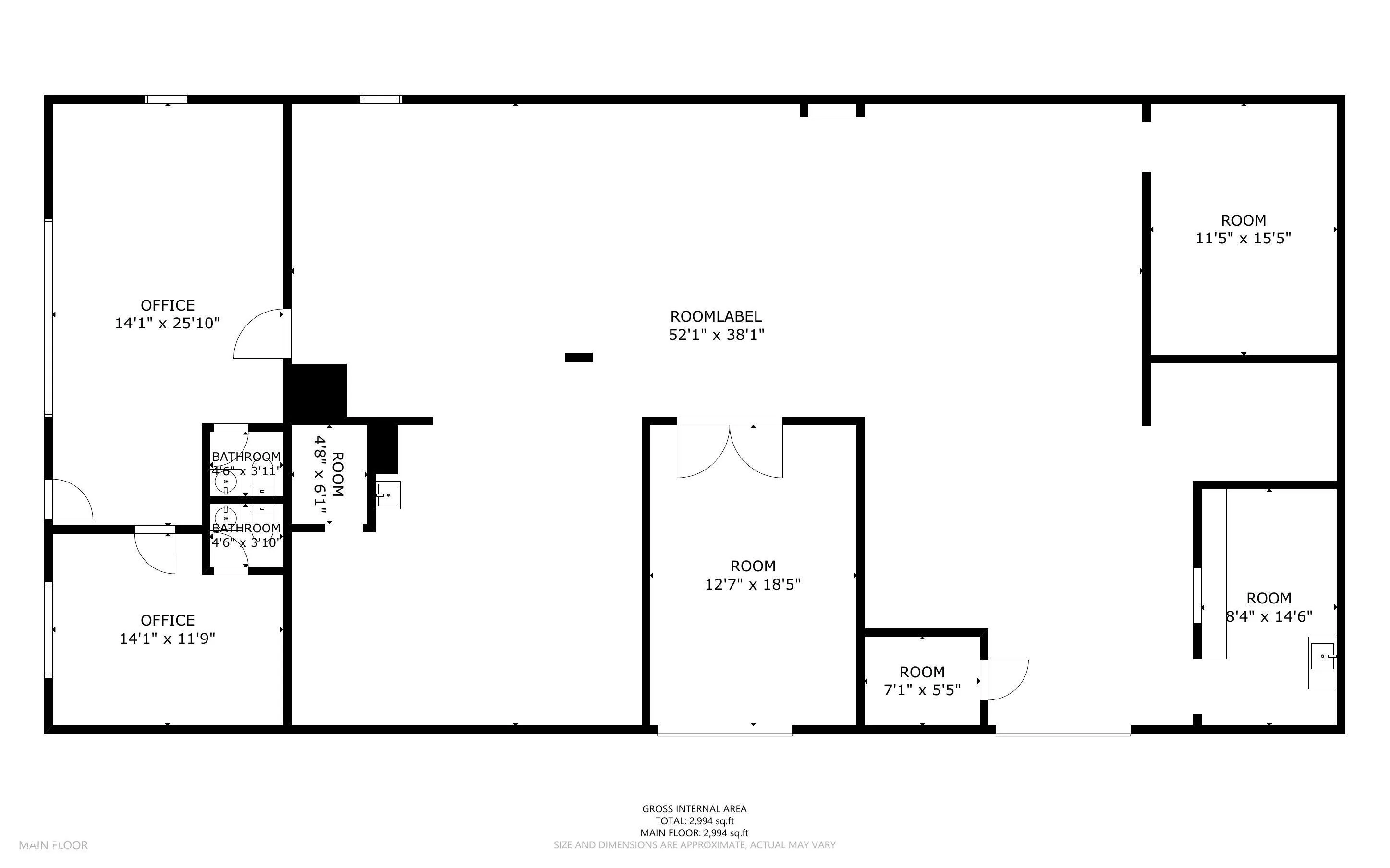
Discover the perfect commercial property in the vibrant Broad Ripple area of Indianapolis! This versatile 3,200 sq. ft. building offers endless possibilities for warehouse, retail, or office use. Previously utilized by an auction business for shipping, the property features a well-designed layout with a small office space at the front and a spacious back area ideal for storage, operations, or expansion. A key highlight is the existing loading dock, with the potential to add a second dock, providing enhanced logistical capabilities for businesses requiring shipping and receiving functionality. The property also boasts a secure, fenced-in area spanning 1,800 sq. ft., perfect for outdoor storage, parking, or additional workspace. Furthermore, both the Flat roof and all the window have been newly updated in the building. Situated near N Keystone Avenue, this prime location offers excellent accessibility and visibility, ensuring easy connections to key transportation routes and a steady flow of potential customers. Whether you’re looking to expand your operations, establish a retail presence, or create a hybrid office-warehouse solution, this Broad Ripple gem offers the ideal blend of location, functionality, and flexibility. Don’t miss out on this prime commercial opportunity!

  • Address: 2803 E 56th Street
  • City: Indianapolis
  • State/county: IN
  • Zip/Postal Code: 46220

Details

Updated on November 5, 2025 at 3:11 am
  • Property ID 22016020
  • Price $349,990
  • Property Size 3200 Sqft
  • Land Area 0.28 Acres
  • Garage Size x x
  • Year Built 1956
  • Property Type Warehouse, Commercial Sale
  • Property Status Closed

Additional details

  • Roof Asphalt,Flat
  • Utilities Electricity Connected,Natural Gas Connected,Sewer Connected,Water Connected
  • Cooling Central Air
  • Heating Natural Gas
  • County Marion
  • Property Type Commercial Sale
  • Parking Alley Access,Garage Faces Side
  • High School Riverside High School

Mortgage Calculator

Contact Information

View Listings
Preeti Chaggar

Enquire About This Property

0 Review

Sort by:
Leave a Review

Leave a Review

Compare listings

Compare