2501 Madison Avenue, Indianapolis, IN 46225
  • $659,000
  • $659,000

Description

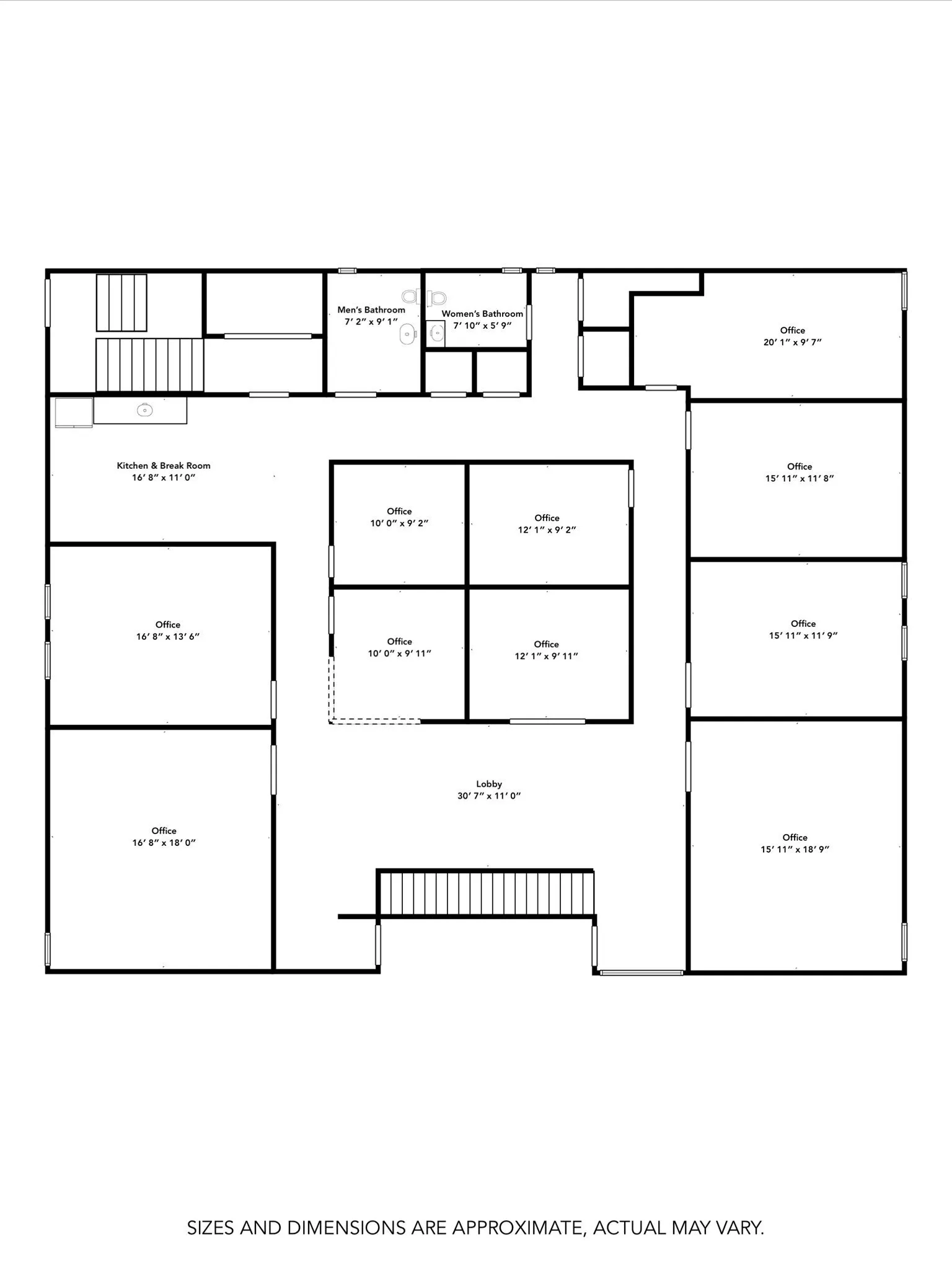
Turnkey 6,982 SF freestanding Office Building. Multiple Entrances, Numerous Amenities, Private Parking Lot, and Recent Renovations. Rare opportunity in the revitalizing Garfield Park South neighborhood- just off Madison Avenue, where major infrastructure improvements are underway as part of a $45.2 million redevelopment plan stretching from Ray Street to Hanna Avenue. Offered at an Investor-friendly 8% CAP RATE! Built in 1962, the building underwent full interior renovations between 2018-2020, including full office build-outs, updated flooring, interior paint, mechanicals, and roofing. Flexible and functional layout. D5 zoning with a commercial variance. Ideal for owner-users or investors seeking multi-tenant potential. The building features a split-level floor plan with approximately 3,446 SF on each level. The main level includes: 9 private offices, a Reception desk and waiting area with 2 public entrances, 2 restrooms, Conference room, 2 secure equipment/storage rooms for security, cabling, or IT infrastructure. The lower level features 7.5-foot drop ceilings, and includes: 5 offices, Large open workroom and conference area, 1 restroom. Multiple CoWorking Offices/Areas throughout. The building has 3 separate entrances and 2 electric meters, making it easily divisible for 2-3 tenants. The main and lower levels are organized for a single occupant but could be reconfigured to accommodate multiple suites. Additional features include: Newer roof (2020), New gas furnaces (2019), High-tech security and camera system, Secure entry points throughout, 15 parking spaces onsite. Well-maintained, updated, move-in-ready asset in a fast-improving corridor-just minutes from downtown and surrounded by ongoing investment and development. Location Advantages: Approx- 6,818 AADT, Minutes from downtown Indianapolis – Close proximity to major commuter routes, 1.3mi to nearest I-65 exit, and easy access anywhere downtown and metro areas.

  • Address: 2501 Madison Avenue
  • City: Indianapolis
  • State/county: IN
  • Zip/Postal Code: 46225

Details

Updated on November 5, 2025 at 3:12 am
  • Property ID 22050885
  • Price $659,000
  • Property Size 6982 Sqft
  • Land Area 0.32 Acres
  • Garage Size x x
  • Year Built 1962
  • Property Type Office, Commercial Sale
  • Property Status Closed

Additional details

  • Roof Flat,Membrane
  • Utilities Cable Available,Electricity Connected,Sep Electric Meter,Sewer Connected,Water Connected
  • Cooling Central Air
  • Heating Forced Air,Natural Gas
  • County Marion
  • Property Type Commercial Sale
  • Parking Common

Mortgage Calculator

Contact Information

View Listings
Preeti Chaggar

Enquire About This Property

0 Review

Sort by:
Leave a Review

Leave a Review

Compare listings

Compare