3247 W Morris Street, Indianapolis, IN 46241
  • $219,000
  • $235,000

Description

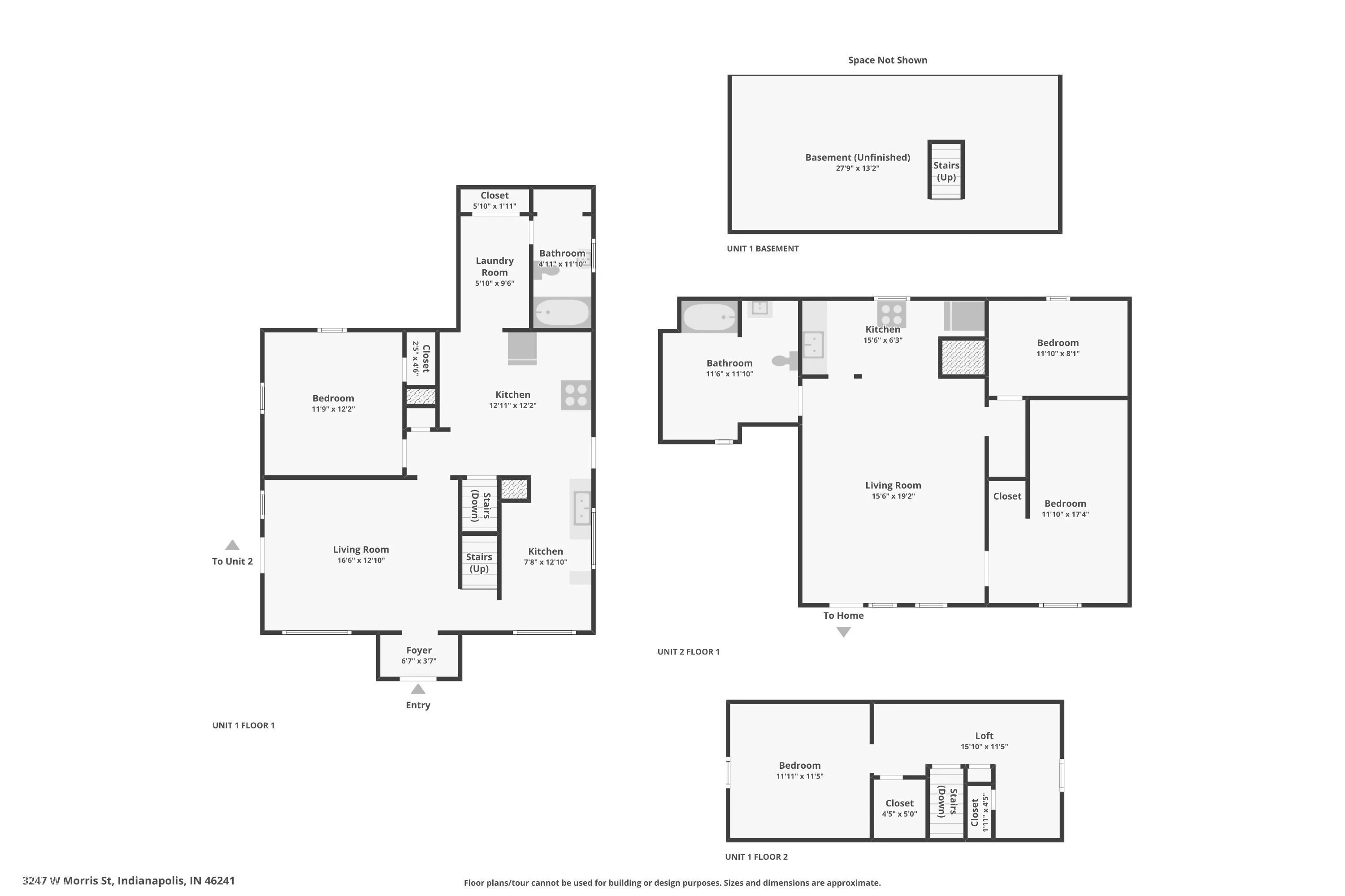
Back on market at no fault of the units. Buyer unable to secure financing. Calling All Investors! Rare opportunity to expand your portfolio or secure a high-performing property. This unique lot includes two single-family homes and a pole barn, all situated on one parcel. Each unit is fully leased, including the pole barn, for guaranteed maximum cash flow! Each home features 2 bedrooms, 1 bath, and a comfortable living area, ensuring consistent tenant demand. The back home has been upgraded with a new metal roof and a 2-year-old furnace, reducing future maintenance expenses. This property checks all the boxes for investors looking for stability, strong returns, and long-term growth potential. See supplements for additional details.

  • Address: 3247 W Morris Street
  • City: Indianapolis
  • State/county: IN
  • Zip/Postal Code: 46241

Details

Updated on April 13, 2026 at 8:16 pm
  • Property ID 22065228
  • Price $219,000
  • Land Area 0.29 Acres
  • Garage Size x x
  • Year Built 1945
  • Property Type Duplex, Residential Income
  • Property Status Active

Additional details

  • County Marion
  • Property Type Residential Income

Mortgage Calculator

Video

360° Virtual Tour

Contact Information

View Listings
Preeti Chaggar

Enquire About This Property

0 Review

Sort by:
Leave a Review

Leave a Review

Compare listings

Compare