• Property Type
  • Mixed Use, Commercial Sale
  • 1848 Sqft
  • Area Size
929 S Bell Street, Kokomo, IN 46901
  • $169,900
  • $179,900

Description

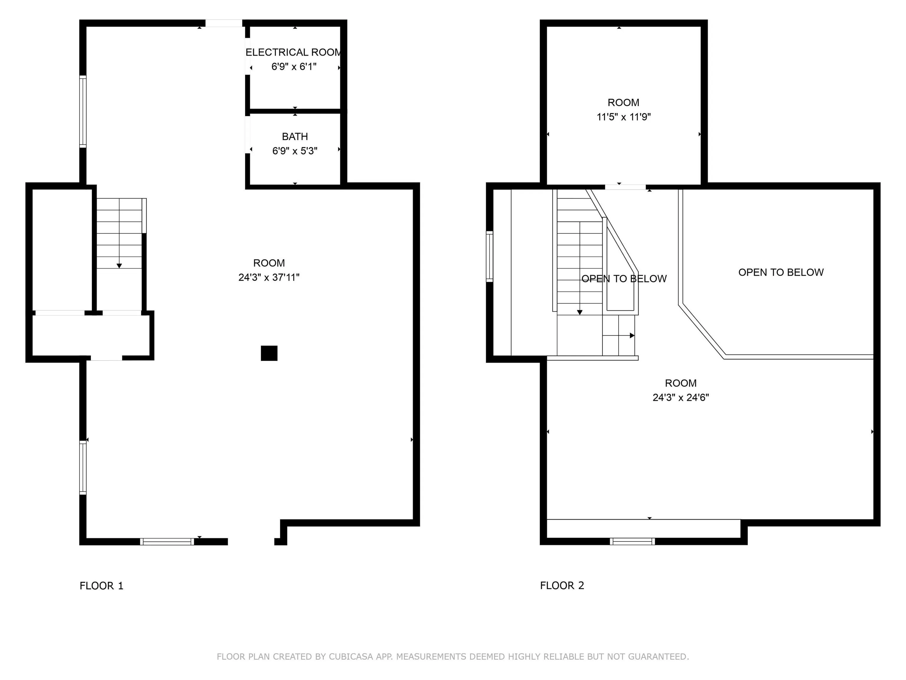
Over 10,000 per day traffic count!! Prime Retail Space for sale or rent on the corner of Markland Avenue & S. Bell St. Welcome to a stunning remodeled commercial property, perfectly situated on a high-traffic corner at the intersection of Markland Avenue & S. Bell St. This exceptional 1,800+ sq. ft. space is designed with an open concept, enhancing visibility & promoting a sense of connectivity for any business venture. The property has undergone a total refurbishment, boasting sleek, contemporary finishes that create an inviting atmosphere for clients & customers alike. The unique open second-level space offers additional flexibility, ideal for offices, creative studios, or retail displays-endless possibilities! Generous storage options ensure that your operational needs are met without compromising on the aesthetics or usage of the main floor. A large parking area provides convenience for both employees & customers, alleviating any concerns about accessibility. – **High Traffic Count:** Located on a busy road, this prime property benefits from excellent visibility & foot traffic, ensuring that your business captures the attention it deserves. Whether you’re looking to establish a retail presence, an office space, or a unique venue, this property offers everything you need to thrive in a bustling commercial environment.

  • Address: 929 S Bell Street
  • City: Kokomo
  • State/county: IN
  • Zip/Postal Code: 46901

Details

Updated on November 24, 2025 at 2:37 pm
  • Property ID 22069704
  • Price $169,900
  • Property Size 1848 Sqft
  • Land Area 0.12 Acres
  • Garage Size x x
  • Year Built 1915
  • Property Type Mixed Use, Commercial Sale
  • Property Status Active

Additional details

  • Roof Shingle
  • Utilities Electricity Connected,Natural Gas Connected,Sewer Connected,Water Connected
  • Cooling Central Air
  • Heating Forced Air
  • County Howard
  • Property Type Commercial Sale
  • Parking Attached

Mortgage Calculator

Contact Information

View Listings
Preeti Chaggar

Enquire About This Property

0 Review

Sort by:
Leave a Review

Leave a Review

Compare listings

Compare