814 E Washington Street, Greencastle, IN 46135
  • $295,000
  • $295,000

Description

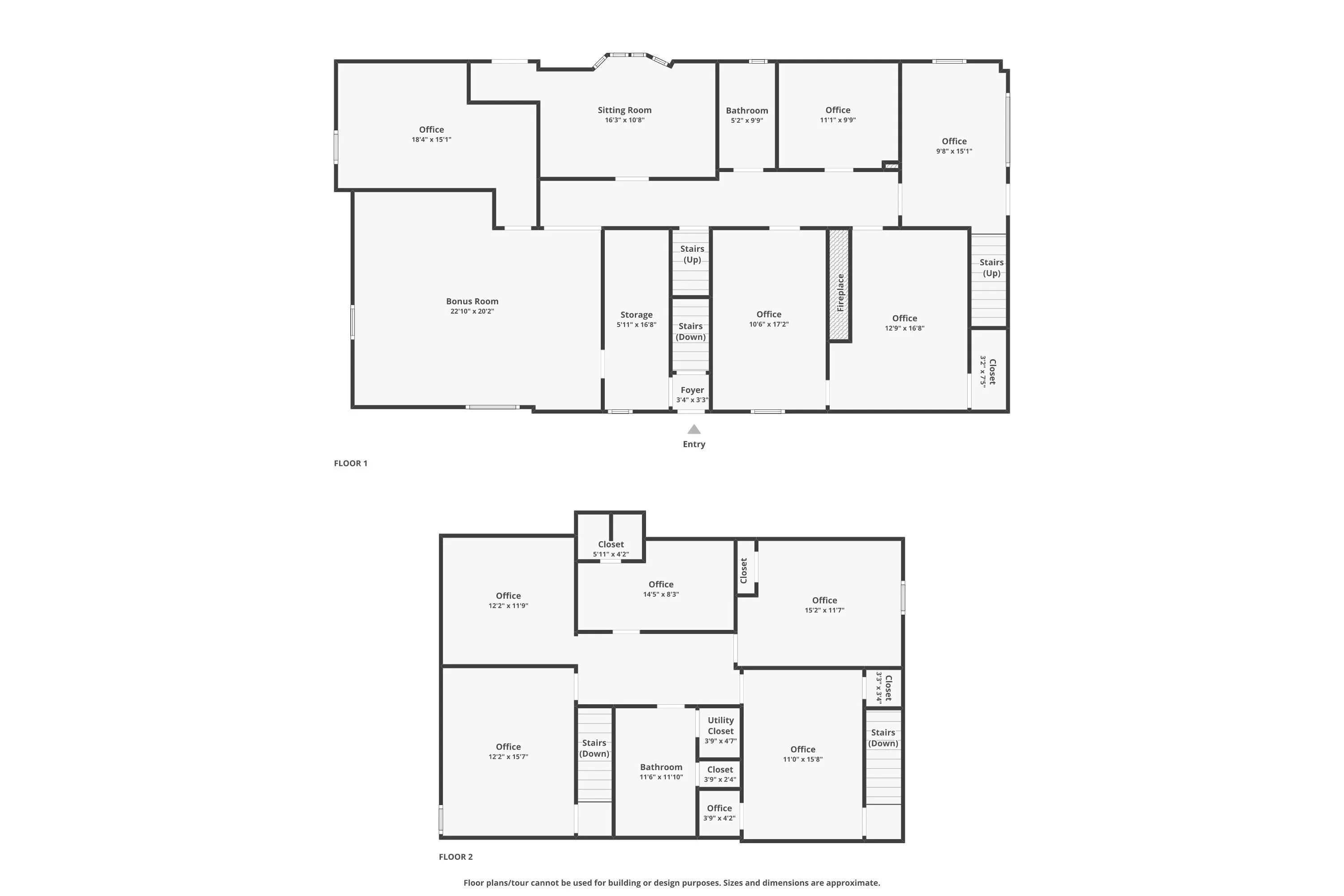
Opportunity awaits with this versatile commercial property offering over 3,500 sq. ft. of office, showroom, and multipurpose space on a generous 1.12-acre lot in a highly visible area of Greencastle. With abundant possibilities for business, investment, or redevelopment, this property is ideal for a wide range of uses. A large asphalt parking lot provides ample parking for both employees and customers. The main level is handicapped accessible and features a welcoming lobby and reception area, a spacious showroom, and numerous smaller rooms perfectly suited for offices, patient rooms, or storage-allowing your business to configure the space to its exact needs. Previously utilized as a duplex, the building offers flexibility for mixed-use, multifamily conversion, or further commercial development, thanks to the layout and size of the lot. Whether you’re expanding an existing business, launching a new venture, or considering redevelopment, the potential here is substantial. With immediate possession available, you can put your plans into action right away. Don’t miss this exceptional opportunity in a prime Greencastle location-schedule your tour today.

  • Address: 814 E Washington Street
  • City: Greencastle
  • State/county: IN
  • Zip/Postal Code: 46135

Details

Updated on December 10, 2025 at 6:29 pm
  • Property ID 22075584
  • Price $295,000
  • Property Size 4389 Sqft
  • Land Area 1.12 Acres
  • Garage Size x x
  • Property Type Office, Commercial Sale
  • Property Status Active

Additional details

  • Roof Asphalt
  • Utilities Electricity Connected,Natural Gas Connected,Sewer Connected,Water Connected
  • Cooling Central Air
  • Heating Forced Air,Natural Gas,Other
  • County Putnam
  • Property Type Commercial Sale
  • Parking Asphalt,Other
  • Elementary School Deer Meadow Primary School
  • Middle School Greencastle Middle School
  • High School Greencastle Senior High School

Mortgage Calculator

Contact Information

View Listings
Preeti Chaggar

Enquire About This Property

0 Review

Sort by:
Leave a Review

Leave a Review

Compare listings

Compare